Kuća smeštena unutar starih kamenih zidova štale
Vođeni idejom očuvanja arhitektonskog nasleđa ali i kružne ekonomije, sa starog imanja ništa nije bačeno od materijala.
U češkom planinskom mestu Stara Červena Voda, izveden je projekat simboličnog naziva Kuća za roditelje (House for Parents). Ona je izgrađena za stariji bračni par, odnosno roditelje s četvoro odrasle dece, koji su nakon godina provedenih u gradskom stanu želeli da ispune svoj san o životu u kući sa baštom. U ostvarivanju tog sna pomogli su im arhitekte iz biroa TRI.ŠTRNÁSŤ architekti koji su na imanju zatekli kuću s poljoprivrednim objektima. Rezultat je veoma zanimljiv.
Nova samostojeća kuća od drveta postavljena je unutar starih granitnih zidova štale.
Vođeni idejom očuvanja arhitektonskog nasleđa ali i kružne ekonomije, odlučeno je da se stari kameni zidovi štale očuvaju kao spomen na minula vremena, dok je samostojeća kuća bila znatno devastirana i nije se mogla obnoviti. Ipak, većina materijala iz srušenog objekta nije odneta na deponiju, već je recikliran i iskorišćen kao ispuna za ogradu, pišu arhitekte za ArchDaily.
Zanimljivo rešenje je da je nova samostojeća kuća od drveta postavljena je unutar starih granitnih zidova štale, a između nove i prostojeće strukture ostavljen je manji slobodan prostor kako bi se obezbedila ventilisanost objekta.
Multifunkcionalni kvadrati
Neposredno uz kuću izgrađena je garaža/studio, takođe od drveta, a slobodan prostor između dva objekta je u funkciji „multifunkcionalnog kvadrata“ koji je centar parcele i može se koristiti za rad, okupljanje porodice, igru unuka ili sušenje veša.
Većina materijala iz srušenog objekta nije odneta na deponiju, već je recikliran i iskorišćen kao ispuna za ogradu.
Na ovaj način celokupni vrt je suptilno podeljen na dva funkcionalna dela. „Radni“ vrt sa izdignutim cvetnim lejama nalazi se iza kuće, dok je rezidencijalni deo sa terasom i dečijim bazenom na prednjoj strani
Širom parcele vlasnici postepeno sade različite sorte drveća, a korak po korak, bašti se dodaju manji objekti poput šupe za drva, alat ili pećnica za hleb.
Unutar kuće
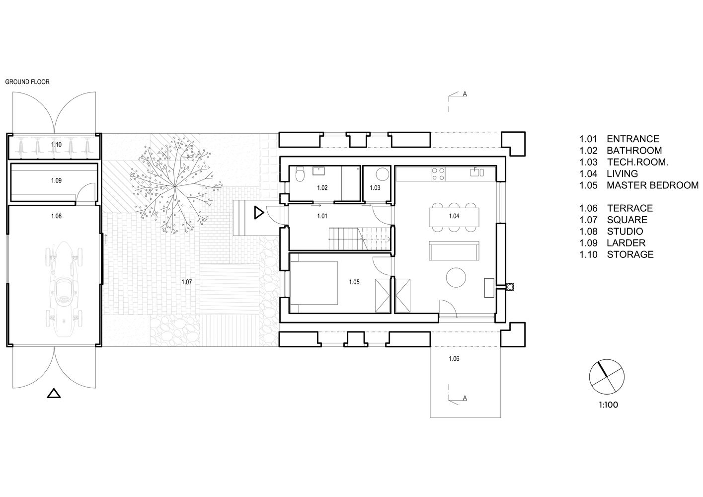
U organizacijom i konstruktivnom smislu kuća površine 66 kvadrata se može okarakterisati kao prizemni objekat s potkrovljem.
Kuća bez pragova
Prizemlje je organizovano za život starijeg bračnog para, te se prostor dizajnirao uz pretpostavku o ograničenom kretanju ukućana u budućnosti. Čitav nivo je bez pragova, a kupatilo je projektovano u skladu sa potrebama korišćenja invalidskih kolica.
Na prizemlju je smeštena ulazna zona, kupatilo, ostava, dnevna soba sa kuhinjom i trpezarijom i spavaća soba.
Stepenište smešteno u ulaznoj zoni vodi do potkrovlja, koje je predviđeno za smeštaj dece i unuka prilikom njihovih poseta.
I mesto za skije
S obzirom na to da se u neposrednoj blizini kuće nalazi skijalište Ramzova, na potkrovlju je organizovan i prostor za odlaganje ski opreme.
Optimalna vlaga vazduha
Konstrukcija kuće izvedena je od drvene građe, a izolovana je takozvanom duvanom izolacijom napravljenom od celuloze. Da bi se poboljšala svojstva akumulacije, obodni zodovi su obloženi nepečenom opekom, a u unutrašnjosti malterisani glinenim malterom. Naime, glineni malteri imaju veliku sposobnost upijanja vlage iz vazduha, koja se potom postepeno oslobađa. Zahvaljujući ovakvom sistemu, vlažnost vazduha u kući je optimalna i znatno bolja od one u gradskim stanovima.
Konstrukcija kuće je od drvene građe, a izolovana je takozvanom duvanom izolacijom napravljenom od celuloze.
Finalna zaštita objekta obezbeđena je primenom japanske tradicionalne metode, te je završni sloj fasade izveden od ugljenisanog smrekovog drveta. Nagorela površina drveta štiti ga od vremenskih uslova, ali i od raznih gljivica i mikroba.
Pećka za grejanje
Prozori na kući su drveni sa trostrukim izolovanim zastakljenjem, dok je krov izveden od crnog profilisanog lima. Dominantna karakteristika istočne strane kuće je dimnjak od nerđajućeg čelika.
Za grejanje objekat koristi se pećka na čvrsto gorivo, dok se električno grejanje koristi kao dopuna. U budućnosti se planira i postavljanje solarnih panela.
Kuća je na jugu dopunjena kamenom terasom, koja se može zakloniti tekstilnom ceradom.
Grafički prilozi
Foto: Lukáš Ildža
























fantastično! bravo!! to je to, to je arhitektura u skladu sa ambijentom,prirodom, da ne kažem jezivu srpsku izmišljenu reč “ kontekst“,materijali, pozicija, život,očuvanje prirode,balans …sve! svaka čast braćo česi! srbija kaska 30 godina! u srbiji je neko rekao da su ravni krovovi IN čak i za planine, ne verujem, al ne verujem dokle glupost ide!