U Mirijevu planirana stambena četvorospratnica sa podzemnom garažom
U objektu je projektovana 21 stambena jedinica, u rasponu od garsonjera do trosobnih stanova, kao i ukupno 23 mesta za parkiranje pod zemljom i na parceli.
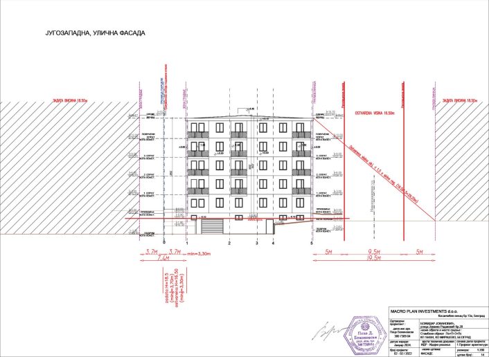
Beogradski Sekretarijat za urbanizam i građevinske poslove oglasio je u petak javnu prezentaciju urbanističkog projekta za izgradnju stambenog objekta spratnosti Po+P+3+Ps, na GP1 koja se formira od KP 1648/4 u KO Mirijevo.
Nosilac izrade urbanističkog projekta i idejnog rešenja projekta arhitekture je beogradsko preduzeće Macro Plan Investments, kao odgovorni projektant potpisan je Peco Božinovski, dia, dok je investitor privatno lice iz Beograda.
Pročitajte još na Gradnja.rs:

Razrada prve od pet građevinskih parcela
Površina obuhvaćena urbanističkim projektom deo je KP 1648/4 u KO Mirijevo i iznosi 733 m², što predstavlja GP1 koja je formirana Planom parcelacije potvrđenim 31. maja 2023. godine.
Navedenim Planom formirano je 5 građevinskih parcela, ali ovim UP-om razrađuje se samo GP1. Na parceli nema izgrađenih objekata, kao ni na parcelama predviđenog bloka.
Idejnim rešenjem na osnovu kog će se izdati lokacijski uslovi, predviđena je izgradnja stambenog objekta, spratnosti Po+P+3+Ps, sa 21 stambenom jedinicom.
Glavni ulaz u objekat predviđen je iz novoplanirane ulice, a ulaz u garažu iz ulice Kapetana Miloša Žunića.

U zajedničkoj garaži planirano je 17 parking mesta, a u okviru parcele još šest parking mesta.
Podrumska etaža, realne BGRP od 488 m², planirana je većim delom za garažu, manjim delom za pomoćni prostor.
U zajedničkoj garaži planirano je 17 parking mesta, od čega je jedno PM namenjeno licima sa posebnim potrebama.
U okviru parcele planirano je još 6 PM, čime dolazimo do ukupnog broja od 23 parking mesta.

Od garsonjera do trosobnih stanova
Planirano je i pet nadzemnih etaža – prizemlje, tri sprata i povučeni sprat. Sve nadzemne etaže su stambene sa ukupno 21 stanom različitih struktura – od garsonjera do trosobnih stanova.
Na prizemlju i prvom spratu formirano je po 5 stambenih jedinica. Na drugom i trećem spratu formirane su po 4 stambene jedinice, a na povučenom spratu 3 stambene jedinice.
Ukupna BGRP nadzemnih etaža je 1.466 m², dok ukupna BGRP objekta (podzemno i nadzemno) iznosi 1.954 metara kvadratnih.

Objekat je u oblikovnom smislu pravougaonik, delom sa zadnje strane povučen u odnosu na minimalnu udaljenost od bočne granice parcele.
Ulaz u prizemlje objekta ostvaren je preko predprostora, ulaza iz kog je ostvarena vertikalna komunikacija preko dvokrakog stepeništa koje vodi od podruma do povučenog sprata.
Objekat je u oblikovnom smislu pravougaonik, delom sa zadnje strane povučen u odnosu na minimalnu udaljenost od bočne granice katastarske parcele.
Obrada same fasade predviđa se od ekstrudiranog polistirena završno obrađena fasadnom bojom u tonu po izboru investitora, navodi se u UP-u koji se do 1. avgusta nalazi na javnom uvidu.
Grafički prilozi












