Moderna badža: Primer uspešne nadogradnje
Nadogradnje su izuzetno popularne na našim prostorima ali ove se uglavnom rade bez projekta i bez ikakvog smisla. Ovo je jedan svetli primer… ali u Škotskoj.
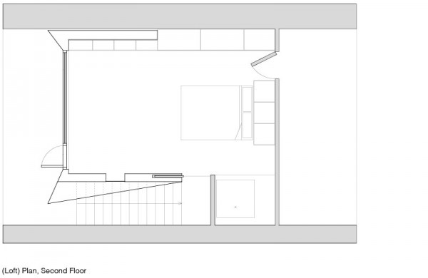
Tavan stare dvospratne kuće u Edinburgu pretvoren je u spavaću sobu dodavanjem badže veoma zanimljivog izgleda. Konstrukcija napravljena od čelika s pocinkovanim pokrivačem pod malim nagibom duplirala je koristan prostor na tavanu.
Boja pokrivača je pažljivo odabrana tako da se što bliže uklopi sa bojom crepa na postojećem objektu pa je rezultat skladna i prijatna nadogradnja.
Projekat potpisuje biro Konishi Gaffney kojeg predvode škotski arhitekti Kieran Gaffney i japanski dizajner Makiko Konishi.
Saznajte koliko košta pravljenje badže.









E sto mu je dizajnersko resenje, ja bih za ovo odmah izdao nalog za rusenje, sve od kamena a on napravio badzu od metalnih panela, mogao je imitacijom kamena nastojati da se sto vise uklopi u postojecu konstrunkciju.
perfektno