Moderna džamija u Osijeku: Pogledajte pobedničko rešenje
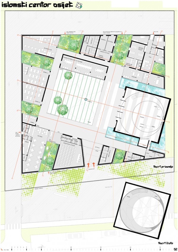
Islamski centar u Osijeku gradiće se prema idejnom rešenju arhitektonskog biroa PROARH Mateković iz Zagreba.
Od 33 pristigla rada jednoglasno je izabrano savremeno oblikovano recentno arhitektonsko delo koje posmatra društveni aspekt centra sa sakralnom tematikom, piše Jutarnji.
Između više sjajnih radova na kraju je presudio nivo celog kompleksa, pri čemu se vodilo računa i o kvaliteti, arhitektonskom oblikovanju, konceptu građevinskog dela, ali i racionalnosti, naravno s profesionalnom notom – kaže predsednik žirija arhitekta Denis Ambruš.
Slično je reako i predstavnik Medžlisa Islamske zajednice u Osijeku, likovni umetnik Enver Rečica, koji je bio član žirija.
– Tražili smo modernistički pristup sakralnom objektu, dali smo autorima potpunu slobodu izražavanja i dobili smo ono što smo hteli – istaknuo je Enver Rečica.
Osijek će na taj način postati četvrti grad u Hrvatskoj, nakon Zagreba, Rijeke i Gunje, koji ima džamiju.
Izgradnja Islamskog centra koštaće 3 miliona evra.





