Modularna kuća sa zaobljenim krovovima: Nova vizija gradnje na Zlataru
Na obroncima planine Zlatara, zamišljena je modularna kuća koja spaja savremeni arhitektonski izraz sa toplinom prirodnih materijala i neposrednim dodirom sa pejzažem.
Sastavljena od tri međusobno povezana modula, ova kuća koju su arhitekte Kemal Hasanagić i Alma Dacić osmislili za Gradnjin konkurs za modularni prefabrikovani objekat, nudi dinamičan raspored i mogućnost prilagođavanja životnog prostora različitim potrebama domaćina.
Po svojoj formi, ona odmiče od klišea planinske arhitekture. Otvorene vizure, obilje prirodnog svetla i sklad sa okruženjem čine je prikladnim odgovorom na savremeno stanovanje, ujedno nudeći drugačiju viziju gradnje na planini.
Srodni članci na portalu Gradnja:

U oblikovanju kuće posebno dolaze do izražaja zaobljeni krovovi koji unose dinamiku u celokupnu formu.
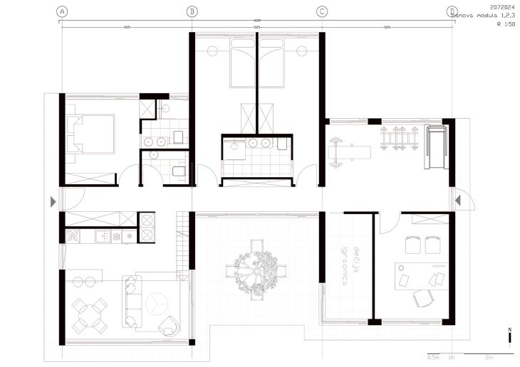
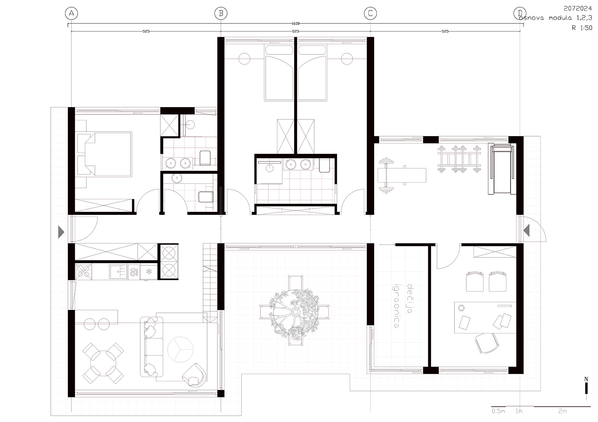
Osnova kuće je po svojoj formi razuđena i sastoji se od tri modula. Svaki od modula obuhvata komplementarne stambene funkcije koje u zbiru formiraju zaokruženu programsku celinu.
Prvi modul (48 m²) namenjen je paru, a sadrži spavaću sobu, kupatilo, dodatni toalet, kuhinju, trpezariju i prostranu dnevnu sobu sa izdvojenom galerijom. Galerija je orijentisana ka južnoj strani, a terasa na ovom nivou idealni je kutak za boravak u planinskom ambijentu.
Drugi i nešto manji modul (27 m²) obuhvata dve dečije sobe koje dele zajedničko kupatilo, i linearno se nadovezuje na prvi, stvarajući intimnu porodičnu zonu. Pored toga, hodnik prožet dnevnim i sezonskim promenama prirodnog osvetljenja stvara vezu sa pejzažem spajajući različite delove kuće u jednu celinu.
Treći modul (39 m²) predstavlja dodatnu programsku zonu, a sadrži radnu sobu, kućnu teretanu i igraonicu, koju je moguće transformisati u dodatnu gostinsku sobu. Kao takav, ovaj deo kuće pruža dodatni komfor i fleksibilnost u samoj organizaciji.

Drugačija planinska arhitektura
Kompozicioni sklop objekta jasno oslikava trodelnu programsku organizaciju kuće, praveći direktnu vezu između njene funkcije i forme. Svaki od tri segmenta ima svoju prostornu i sadržajnu ulogu, dok njihovo međusobno povezivanje stvara logičan i pregledan tok kretanja unutar objekta.
U oblikovanju kuće posebno dolaze do izražaja zaobljeni krovovi koji, varirajući u visini i orijentaciji, unose dinamiku u celokupnu formu. Takva arhitektonska artikulacija omogućava da objekat reaguje na specifičnosti lokacije – od pravca vetrova, preko osunčanosti, do vizura ka okolnom pejzažu. U svojoj konačnici, rezultat je prostorni sklop koji se skladno uklapa u planinski ambijent, a pritom unosi savremeni arhitektonski izraz.
Iako se svojim oblikovanjem ne oslanja na klasičnu planinsku tipologiju prepoznatljivu po strmim krovovima, ova modularna kuća nudi savremenu interpretaciju gradnje u zahtevnim planinskim uslovima. Ona pokazuje da se tradicija može reinterpretirati kroz inovativne forme i tehnologije, zadržavajući pritom funkcionalnost, dugotrajnost i vezu sa prirodom.
Nova vizija gradnje na planini
Kroz pažljivo osmišljenu prostornu organizaciju i odabir materijala, ova kuća uspeva da istovremeno odgovori na funkcionalne zahteve savremenog stanovanja i da se skladno uklopi u planinski pejzaž.
Njena modularna struktura pruža potpuno zadovoljenje potreba korisnika, dok savremeni arhitektonski izraz i dinamična forma krova donose novu interpretaciju gradnje u planinskom ambijentu.
Ovakav arhitektonski pristup ne nameće se okolini, već je nadograđuje svoje okruženje – nudeći korisnicima komfor, fleksibilnost i trajnu vezu sa prirodom koja je istovremeno i inspiracija i kontekstualni okvir projekta.



ovo je novi momenat u istoriji stanovanja na balkanu! slučajni partneri koji su razdvojeni zidom u spavaćoj sobi, a spojeni toaletom ….woow! breathtaking