Novi lobi stare slovenačke banke potpisali studenti
Projekat renoviranja enterijera Banke Slovenije delo je studenata Arhitektonskog fakulteta u Ljubljani.
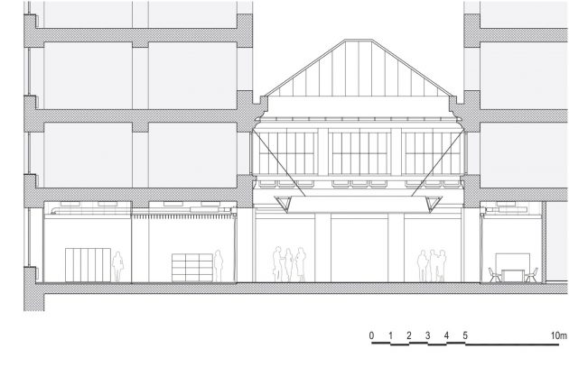
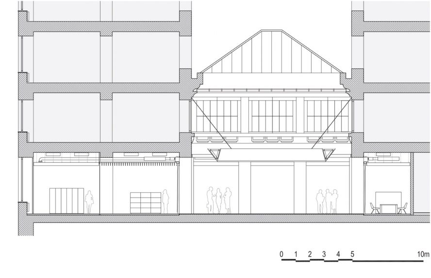
Vođeni dizajnom studentskog tima, arhitektonska frma SADAR+VUGA izvela je projekat renoviranja lobija slovenačke banke. Objekat u kom je banka smeštena izgrađen je 1920. godine i njegov najatraktivniji segment svakako je lobi. Pre rekonstrukcije on je imao javni karakter i u njemu su bili smešteni blagajna i jedna od arhiva.
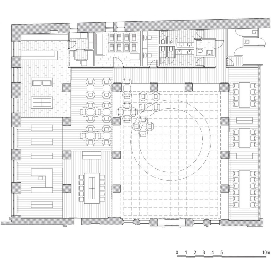
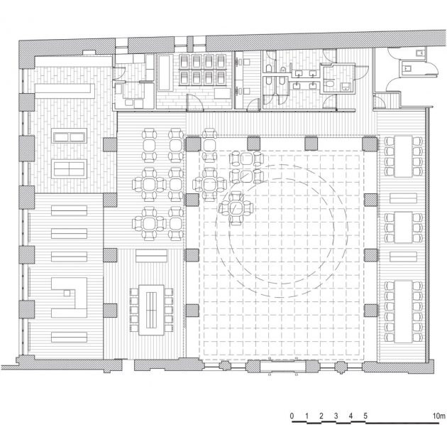
Centralnom zonom lobija dominira luster velikih dimenzija i zlatno-srebrne boje, koji simbolizuje novčić.
Međutim, vođeni veličinom lobija i njegovom centralnom lokacijom u objektu, studenti su ga u saradnji sa arhitektama pretvorili u multifunkcionalni prostor koji je postao čvorište dešavanja u banci, piše ArchDaily.
Koncept projekta bio je da se lobi pretvori u interaktivan prostor koji je prvenstveno namenjen zaposlenima. Planirano je da oni u ovom prostoru mogu da rade, ugoste stranke ili ga iskoriste za odmor tokom pauze.
Fleksibilan prostor omogućava da se koristi kako u formalne, tako i neformalne svrhe. Nekada jednoličan prostor, lobi je postao mesto preplitanja više ambijenata i funkcija, bez jasnih granica.
Biblioteka je smeštena u blizini južnog ulaza i u njenoj neposrednoj blizini nalazi se samouslužni bar.
Sale za sastanke od ostatka prostora mogu biti odvojene debelim draperijama i na taj način se postiže dovoljna količina privatnosti za organizovanje sastanaka i radionica.

Čitav prostor ispunjavaju prijatni i udobni materijali koji su u kontrastu sa trospratno visinom lobija, koja ovom prostoru daje potrebnu dozu formalnosti.
Nekada jednoličan prostor, lobi je postao mesto preplitanja više ambijenata i funkcija, bez jasnih granica.
Centralnom zonom lobija dominira luster velikih dimenzija i zlatno-srebrne boje, koji simbolizuje novčić. Ovaj prostor se prema potrebi može razdvojiti od ostatka lobija obodno postavljenim draperijama.
Foto: Miran Kambič









