Ova zgrada u Brazilu ima na krovu pravi fudbalski teren
Arhitektonska kompanija OSPA predložila je projekat izgradnje novog sportskog kampusa „UFCSPA Igara“ u gradu Kanoas.
Zeleni krovovi su svakako poželjni za energetsku efikasnost objekta, ali ovo rešenje ide korak dalje. Na krovu novom sportskog kampusa u Brazilskom gradu Kanoas izgradiće se pravi fudbalski teren koji ispunjava sve FIFA zahteve… sem po pitanju tribina. Naime, ovaj teren je zamišljen za treniranje pa sedenja nema.
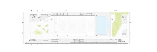
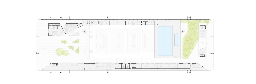
Dve zgrade u kojima će se održavati nastava nalaze se na krajevima kampusa a u njegovoj sredini smešten je veliki sportski kompleks. U podnožju zgrade nalaze se zatvoreni tereni za košarku, odbojku, rukomet i druge sportove, dok je na njenom krovu formirano fudbalsko igralište sa zelenom travom i kompletnim sistemom za zalivanje i drenažu.
Ovaj impoznatni objekat konstruisan je od čelika sa impoznatnim rasponima stubova koji dozvoljavaju formiranje sportskih terena u njegovoj osnovi.
Zahvaljujući travi na krovu, projekat ventilacije pokazao je da su potrebe za klimatizacijom značajno manje što će dugoročno doneti velike uštede po pitanju potrošnje električne energije.
Osnove kampusa
Kliknite na sliku da biste je videli veću
Pogledajte i kako izgleda tržni centar u Beogradu sa fudbalskim terenom na krovu:








