Položaj planiranog objekta u bloku; Vizuelizacija: Seven Arch
Novi objekti

U Višnjičkoj ulici na Paliluli planirana sedmospratnica od 13.000 kvadrata

U objektu je projektovano 114 stambenih jedinica, 5 lokala i 19 poslovnih apartmana, dok je u okviru parcele obezbeđeno ukupno 156 parking mesta.

Sekretarijat za urbanizam i građevinske poslove Grada Beograda oglasio je ovih dana javnu prezentaciju urbanističkog projekta za izgradnju stambeno-poslovnog objekta spratnosti P+7 na adresi Višnjička broj 74 u katastarskoj opštini Palilula.

Obrađivač urbanističkog projekta i idejnog arhtektonskog rešenja je beogradski studio Seven Arch, sa dr Filipom Petrovićem, mia, kao odgovornim projektantom, dok je investitor kompanija Ingrap-Omni, takođe iz Beograda.

Pročitajte još na Gradnja.rs:

Širi prikaz lokacije na ortofoto snimku

Parcela od preko 4.500 kvadrata

Predmetna katastarska parcela 6241/1 KO Palilula ima ukupnu površinu od 4.593 metara kvadratnih i na njoj trenutno ne postoje izgrađeni objekti.

Saobraćajnu povezanost sa gradskom mrežom ostvaruje preko postojeće ulice Višnjička, koja je definisana kao bulevar sa po dve trake u jednom smeru.

Novoprojektovani stambeno-poslovni objekat nivelaciono je uklopljen u profil terena kao slobodnostojeći objekat, bruto nadzemne površine od 13.103 m².

U objektu se nalazi ukupno 114 stambenih jedinica – po 19 stambenih jedinica od drugog do sedmog sprata, koje su podeljene u dva ulaza sa po devet/deset stambenih jedinica, različitih struktura.

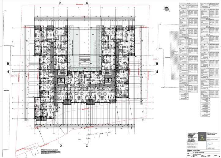
Situacija sa osnovom prizemlja

Ukupno 156 parking mesta na parceli

U prizemlju objekta je smešteno 5 lokala različitih veličina i orijentacija, dok je na prvom spratu smešteno 19 poslovnih apartmana različitih struktura.

Ulaz u objekat je predviđen iz ulice Višnjičke. Stambenom delu, kao i poslovnim apartmanima na prvom spratu, pristupa se preko delimično staklom natkrivenog pasaža.

Na prvom spratu smešteno je 19 poslovnih apartmana različitih struktura.

Lokalima u prizemlju pristupa se iz pomenutog pasaža i sa obodnog trotoara.

Ukupan broj ostvarenih parking mesta na parceli iznosi 156, od čega je 8 parking mesta namenjeno za osobe sa invaliditetom.

Presek A-A

Primedbe i sugestije do 9. januara

Zainteresovana lica mogu tokom javne prezentacije da izvrše uvid u Urbanistički projekat, kao i da svoje primedbe i sugestije na planirana rešenja u pisanoj formi dostave na pisarnicu Sekretarijata za urbanizam i građevinske poslove, najkasnije do 9. januara 2024. godine.

Grafički prilozi

Situacija sa osnovom prizemlja
Situacija sa osnovom prizemlja
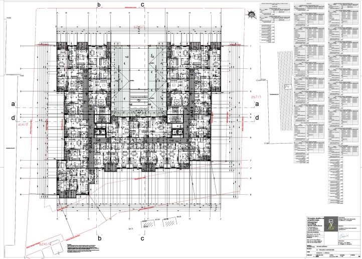
Osnova 1. sprata
Osnova 1. sprata
Osnova 5. sprata
Osnova 5. sprata
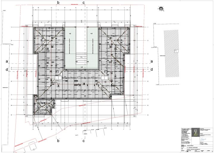
Osnova krovne konstrukcije
Osnova krovne konstrukcije
Presek A-A
Presek A-A
Presek B-B
Presek B-B

Izabrali smo za vas...

Postani deo Gradnja zajednice

Najnovije vesti s našeg portala svakog petka u vašem sandučetu.

Dizajn enterijera

Srodni tekstovi

1 komentar

  1. Xxx

    Niste normalni.
    Kako mislkte da tu saobracamo. Ionako su guzve nenormalne zbog biga i lidla.

Ostavite odgovor

Obavezna polja *