Puna kuća svetlosti, niotkuda prozora
Potpuno taman eksterijer izveden od drvene završne obloge u crnoj boji, u kontrastu je sa svetlim enterijerom. Međutim, odakle dolazi tolika količina svetlosti?
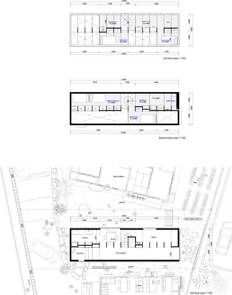
Kuća nazvana T Noie delo je japanskog arhitekte Katsutoshi Sasakija, koju je izgradio za sebe i svoju porodicu. Sasaki je kuću površine 102 kvadratna metra, izveo u formi visokog kubusa, obloženog crvenim kedrovim drvetom farbanog u crnoj boji, koji praktično nema nijedan otvor sem staklenog kliznog portala koji služi kao ulazna vrata. Odakle onda toliko svetla u enterijeru? Vrh kubusa ima transparentno zastakljenje koje dopušta prodor ogromne količine svetlost u unutrašnjost, čime je u ambijentu kreirano nešto što arhitekta zove „svetlosna scena„.
Unutrašnjost kuće dizajnirao sam za svoju porodicu, a eksterijer za komšije i okruženje.
Za razliku od zatvorene i tamne spoljašnjosti, unutrašnjost je organizovana kroz otvoren koncept stanovanja sa tavanicom visine osam metara, tako da svetlost neometano prodire kroz čitav objekat, piše Dezeen.
Pravilan odnos prirode i čoveka
Sasaki u svom novom domu živi sa još četiri člana porodice, a povremeno kuća postane i njegov radni prostor.
“Unutrašnjost kuće dizajnirao sam za svoju porodicu, a eksterijer za komšije i okruženje. Visina objekat od osam metara je standardna za japanske kuće, dok je sa druge strane visina plafona od osam metara nešto posebno, ali je to zapravo pravilan odnos za povezivanje između prirode i čoveka.”, rekao je Sasaki.
Većina svetlosti u kuću ulazi preko tavanice, a zatim se filtrira kroz spiralno stepenište i povezane prostorije. Prema rečima arhitekte ovakav način otvaranja otvora uzrokovala je potreba za privatnošću ali i želja da se od unutrašnjosti stvori svetlosna scena, gde svetlost dolazi od gore.
Platforme na različitim visinama
Sobe su postavljene na platformama na različitim visinama, oko spiralnog stepeništa. Četiri spavaće sobe, studio i kupatilo su na gornjem nivou, dok su kuhinja, trpezarija, biblioteka i zatvoreni vrt organizovani na prizemlju.
Tako je dobijena kuća koja je maksimalno okrenuta potrebama porodice koja uživa u neobično osvetljenom enterijeru, a u isto vreme se na elegantan način skriva od komšiluka.









