Racionalna rekonstrukcija i nadogradnja
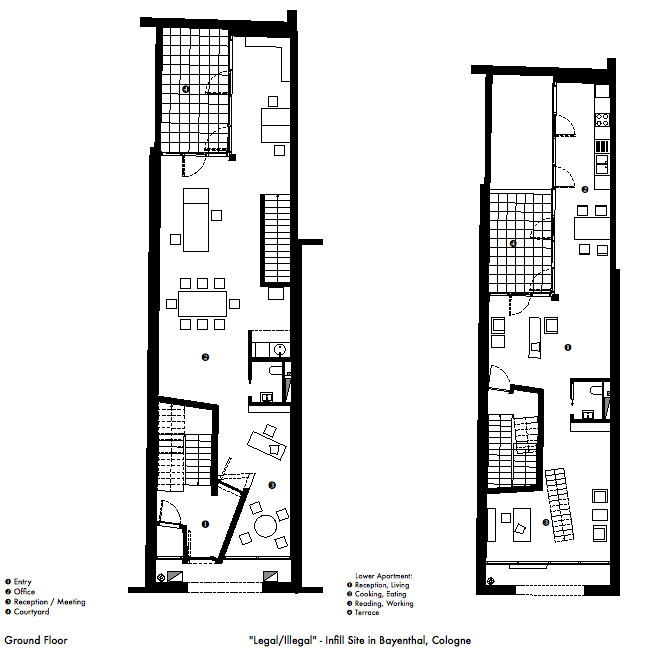
Na placu veličine 5,50 x 25 metara izvedena je nesvakidašnja rekonstrukcija objekta sa nadogradnjom.
Projekat je izveden prema svim važećim normama ali se ipak na ovu nesvakidašnju rekonstrukciju građevinska dozvola čekala skoro dve godine.
Ipak, na kraju je stvoren objekat neobične ali jasne forme. Osnovna zamisao arhitekte je bila da visionsko povlačenje osnove ka unutrašnjosti objekta kako bi se stvorile terase na svakoj etaži.
Jarka crvena boja je sama po sebi zanimljiv element uređenja krova. Kada se ovome doda nepravilna ali potpuno smislena lomljenja krovna konstrukcija upečatljivost nadogradnje je zagarantovana.
(Arch Daily)








