Zgrada u Ulici Kraljevića Marka ide u visinu i dubinu
Postojeći objekat dobiće još jednu podzemnu, kao i dodatnu nadzemnu etažu, kako bi u njega stalo 14 stambenih jedinica, dva lokala i 26 mesta za parkiranje.
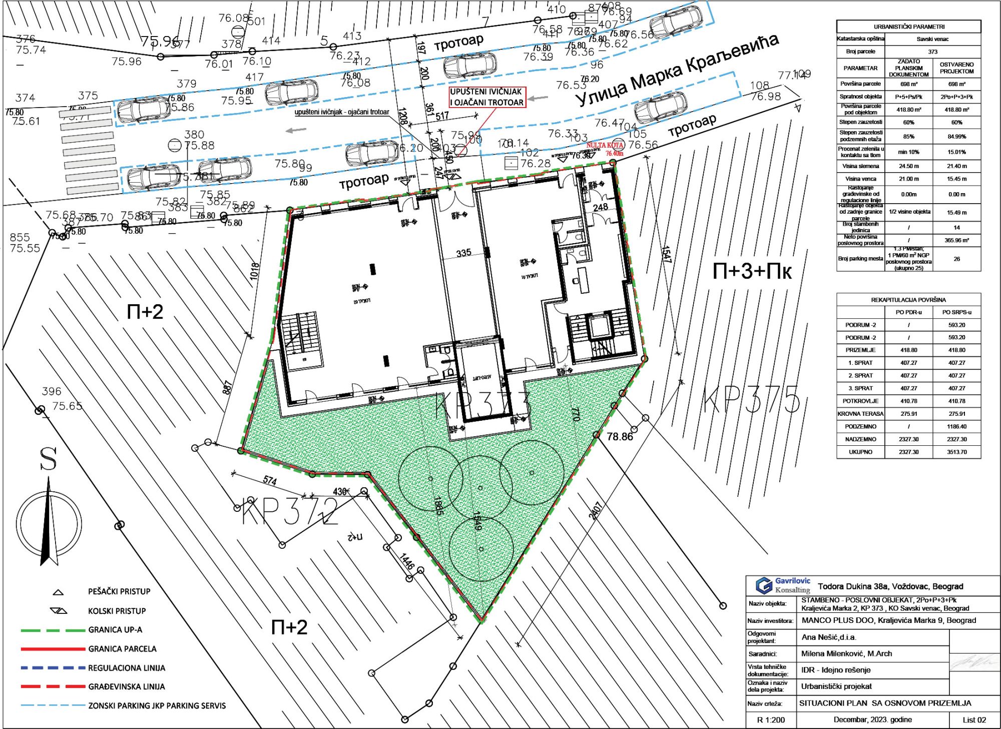
Grad Beograd oglasio je prezentaciju urbanističkog projekta za rekonstrukciju, adaptaciju i nadgradnju stambeno-poslovnog objekta postojeće spratnosti Po+P+2+Pk, koju investitor Manco Plus d.o.o. iz Beograda planira u Ulici Kraljevića Marka na Savskom vencu, prepunoj kulturno-istorijskih spomenika.
Nosilac izrade urbanističkog projekta koji se do 22. marta nalazi na javnom uvidu je preduzeće Gavrilović konsalting d.o.o. sa Voždovca, koje je ujedno potpisano i kao autor arhitekture, dok je posao odgovornog urbaniste i odgovornog projektanta idejnog rešenja dodeljen Ani Nešić, dia.
Pročitajte još na Gradnja.rs:

U prizemlju zadržana ulična fasada
Kako se navodi u UP-u, za potrebe investitora urađen je projekat rekonstrukcije, adaptacije i nadgradnje stambeno-poslovnog objekta na adresi Kraljevića Marka 2, u svemu prema Projektnom zadatku investitora.
Predmetna parcela je nepravilnog oblika, površine 698 m² i širine fronta oko 25,40 m. U postojećem stanju parcela je u potpunosti izgrađena, indeks zauzetosti je 100%.
Projektom se planira svođenje indeksa zauzetosti na 60%, što je Planom generalne regulacije maksimalno dozvoljeno. U prizemlju se zadržava ulična fasada objekta, dok se u unutrašnjosti parcele planira rušenje dela objekta kako bi se ostvarila maksimalna dozvoljena zauzetost.

Ukupna bruto površina svih etaža po SRPS-u iznosi 3.510 metara kvadratnih.
Novoprojektovani objekat je po karakteru dvostrano uzidan, spratnosti 2Po+P+3+Pk, i postavljen je na parceli prema uslovima horizontalne i vertikalne regulacije.
BRGP objekta prema PGR-u u koju ne ulaze bruto površine nadzemnih etaža je 2.324 m², dok BRGP podzemnih etaža iznosi 1.186 m². Ukupna bruto površina svih etaža po SRPS-u iznosi 3.510 metara kvadratnih.
Visina venca usklađena je sa visinom venca susednog objekta (Vučina kuća na Savi), i iznosi 15,45 m, a što je manje od 1,5 širine ulice odnosno rastojanja između regulacionih/građevinskih linija (18,12 m).
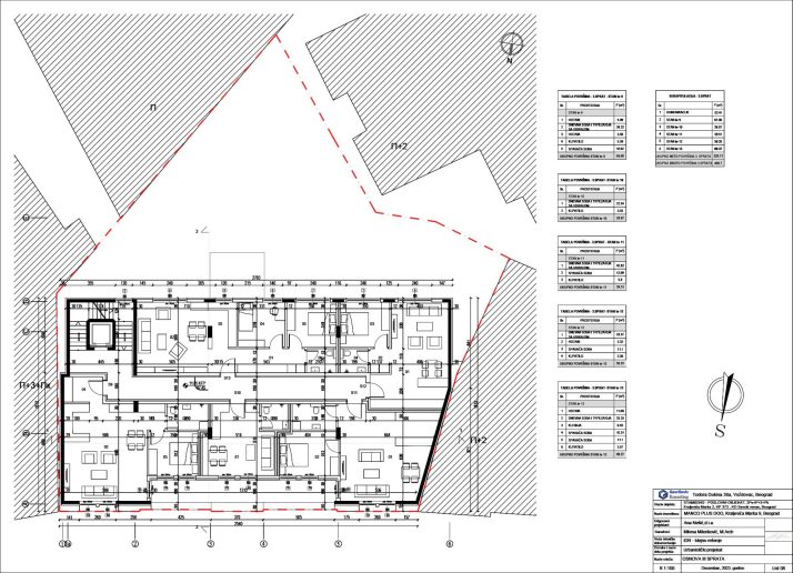
Poslednja etaža projektovana je kao potkrovlje, sa krovnom terasom iznad, kojoj se pristupa sa stepeništa stambenog dela objekta.

Ukupno je u objektu projektovano 14 stambenih jedinica različitih struktura.
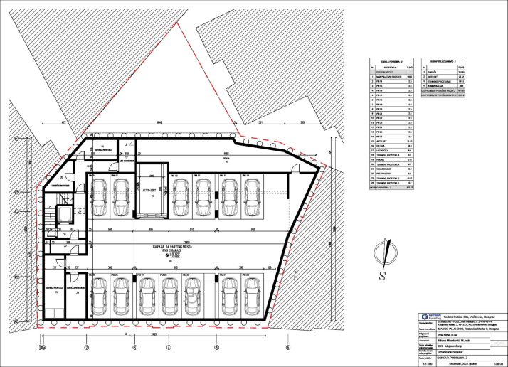
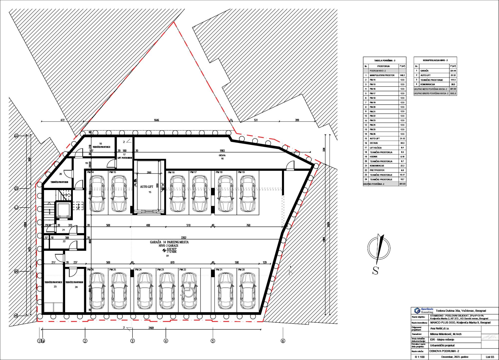
Funkcionalno, objekat je namenjen stanovanju i poslovanju. U dve podzemne etaže smešteni su dvoetažna garaža, tehničke prostorije i prostori za komunikaciju.
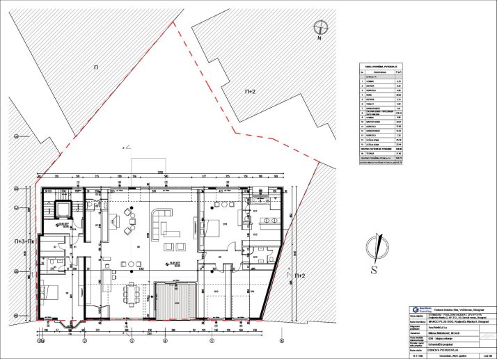
U prizemlju objekta projektovana su dva lokala, od kojih jedan izlazi jednim svojim delom i u etažu prvog sprata. Pored lokala, u prizemlju se nalazi i ulaz u auto-lift (kroz pasaž), kao i ulaz u stambeni deo objekta.
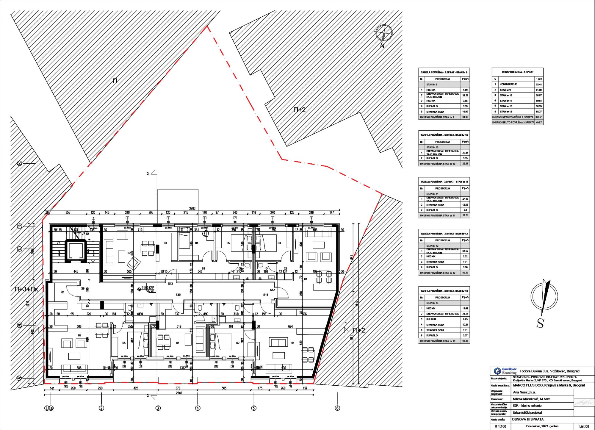
Na prvom spratu projektovana su 3 stana, na drugom i trećem spratu po 5 stanova, dok je u etaži potkrovlja smešten jedan stan. Ukupno je u objektu projektovano 14 stambenih jedinica različitih struktura.

Po 13 parking mesta na dve etaže
U dve podzemne etaže smešteno je 26 parking mesta, po 13 na obe etaže. Parking mesta su dimenzija 250 x 500 cm.
U garaži su projektovana i dva parking mesta za osobe sa invaliditetom, dimenzija 370 x 500 cm, po jedno na svakoj etaži podruma.
Manipulativni prostor u garaži je širine 600 cm, dok neto površina podruma -1 i podruma -2 iznosi po 491,93 m².





Ovo je odvratno – silovanje Beograda!!!
ne znam ko je ovog Frankenstajna dozvolio
ne lici ni na sta, odvratno po obicaju srpskih arhitekata
Ne ne, ne možete sve arhitekte staviti u isti koš, morate dodati neki epitet za ovu vrstu – bez etike, neznalice, prodane duše….