Vodeni talas kao inspiracija za enterijer restorana u Vrdniku (video)
Pretvaranje prolazne, tečne elegancije talasa u statičku strukturu izvedeno je uz pomoć brojnih inovativnih rešenja i korišćenje reciklirane PET ambalaže.
Partnerstvo između kompanije Impact Acoustic SEE, talentovanih dizajnera iz novosadskog studija Vasona na čelu sa Aksinjom Lukić i samog klijenta predstavlja testament dubokom potencijalu inovativnog arhitektonskog dizajna restorana Piazza.
Ovaj dizajnerski i tehnološki poduhvat, uklopljen u pejzaž Vrdnika i Fruških termi, bogat prirodnom lepotom, predstavlja više od mesta za oporavak – on je testament mogućnostima koje proističu kada se inovacija, održivost i arhitektonska inovacija susretnu.

Od 3D modela do parametrijskog dizajna
Da bismo zaista cenili ovo izvanredno dostignuće, prvo moramo razumeti spokoj okoline. Vrdnik, poznat po terapeutskim termalnim vodama i bujnim pejzažima, pruža prikladan ambijent za wellness centar.
Zadatak je bio jasan: stvoriti strukturu koja ne samo da se slaže sa svojim mirnim okruženjem, već je takođe duboko ukorenjena u održivim praksama.
Put od konceptualizacije do ostvarivanja često je ispunjen izazovima, a ni ovaj projekat nije bio izuzetak po tom pitanju. Prva prepreka bila je prelazak sa 3D modela na parametrijski dizajn.

Nacrt koji je nastao bio je ne samo plan, već i putokaz koji je spajao maštu sa stvarnošću.
Impact Acoustic SEE preuzeo je tehničku postavku, koristeći svoje znanje i godine iskustva kako bi pomogao arhitektima da prebrode ovaj složeni prelaz.
„Proces pretvaranja 3D modela u parametrijski dizajn zahtevao je duboko razumevanje arhitektonskih principa, oštru pažnju na detalje i sposobnost vizualizacije konačnog proizvoda na nekonvencionalan, ali praktičan način“ – kaže Danilo Micić iz Impact Acoustic SEE.
Kao rezultat toga, nacrt koji je nastao bio je ne samo plan, već i putokaz koji je spajao maštu sa stvarnošću.

Eho vode: Arhitektura u skladu s prirodom i održivosti
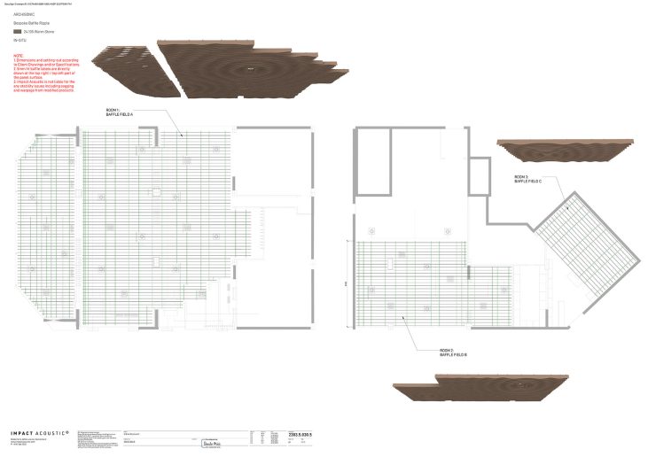
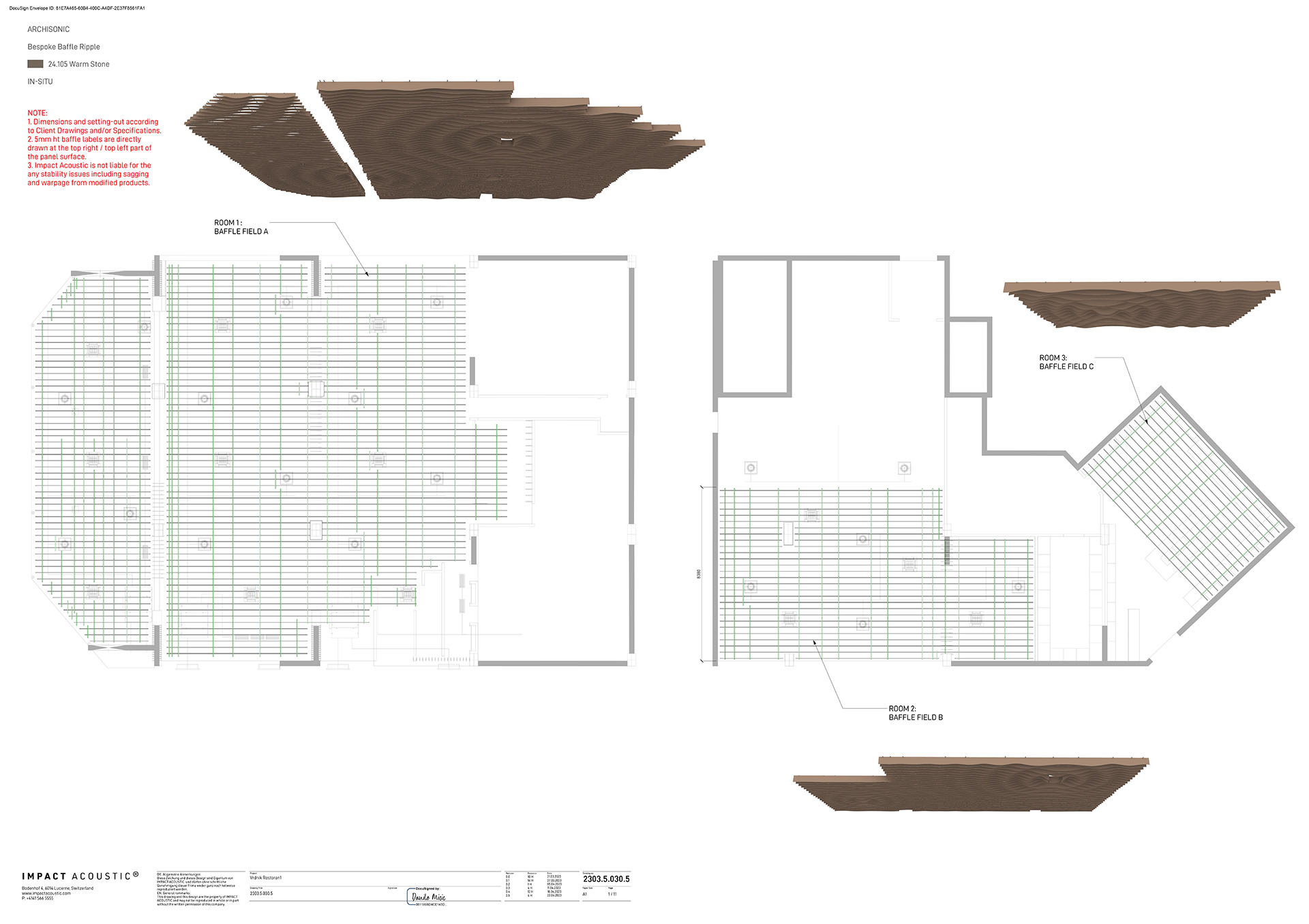
Srce projekta Piazze leži u njegovom jedinstvenom konceptu dizajna – efektu talasa vode. Ovo je bila dizajnerska vizija koja je izazvala normu, koncept koji nije bio samo novost u srpskom dizajnu, već i hrabar skok ka izvanrednom.
Zamisliti talase, eho putovanja kapljice vode dok udara površinu, koji su se emulirali u arhitektonskom dizajnu, bila je smela vizija. Ipak, saradnja između kreativnog tima u Vasoni i iskusnih inženjera u Impact Acoustic SEE pretvorila je ovu hrabru viziju u očaravajuću stvarnost.
„Da bismo u potpunosti cenili ozbiljnost ovog projekta, važno je razumeti inherentnu složenost implementacije takvog dizajna. Pretvoriti prolaznu, tečnu eleganciju talasa u statičku strukturu zahtevalo je pažljivo planiranje, preciznu izvedbu i nepopustljivo zalaganje za kvalitet i estetsku harmoniju“ – navodi Micić.
Materijalna važnost: Snaga reciklirane PET ambalaže
Ekološka svest više nije opcija, već obaveza, posebno u građevinskom sektoru. Kao tim, Impact Acoustic SEE, arhitekte i klijent, posvećen ovoj ideji, doneli su značajnu odluku da koriste reciklirane PET materijale u ovom projektu.
Ovaj izbor nije samo signalizirao predanost održivosti, već i potvrdu snage, svestranosti i estetskog potencijala ovih materijala. Put ovih materijala, od otpada do resursa, odjek je šireg narativa o održivosti.
„Svesnim odabirom recikliranih PET materijala, Impact Acoustic SEE ne samo da postavlja presedan u održivim praksama, već i izaziva konvencionalnost onoga što se može koristiti u građevinskoj industriji“ – kaže Micić.

Uključivanje recikliranih materijala u projekat pokazalo je da održivost i kvalitet nisu međusobno isključivi, već mogu harmonično koegzistirati.
Upotreba ovih materijala, međutim, nije samo izjava o ekološkoj odgovornosti. To je demonstracija sposobnosti materijala da održe visoke standarde strukturnog integriteta, estetske privlačnosti i ukupnog kvaliteta.
„Uključivanje ovih materijala u projekat od strane klijenta Fruške terme pokazalo je da održivost i kvalitet nisu međusobno isključivi, već mogu harmonično koegzistirati“ – ističe sagovornik Gradnje.

Spajanje inovacije, održivosti i kvaliteta
Postizanje ravnoteže između inovativnog dizajna, ekološke održivosti i nepopustljivog kvaliteta bio je jedan od najizazovnijih aspekata projekta Piazze. Aspiracija je bila gurati granice dizajna ne narušavajući održivost materijala ili kvalitet izgradnje.
Ova akrobacija ravnoteže nije bila samo izazov, već i prilika da Impact Acoustic SEE pokaže svoju posvećenost pružanju inovativnih rešenja.
„Ova uspešna kombinacija kreativnosti, tehnologije i održivosti svedoči o potencijalu inovativne arhitekture. Ona ne samo da zadovoljava trenutne potrebe klijenta, već takođe razmatra budući uticaj na životnu sredinu. Pokazuje da istinska arhitektonska inovacija ide dalje od estetike i funkcionalnosti, obuhvatajući dugoročnu održivost i širi uticaj na našu planetu“ – navodi naš sagovornik.

Složenost instalacije
Iza zadivljujuće estetike projekta restorana Piazza leži kompleksna instalacija sistema. Ova jedinstvena potporna struktura, arhitektonski balet snage, funkcionalnosti i dizajna, bila je temelj ovog projekta.
Od trenutka kada je projekat koncipiran, bilo je jasno da će njegova realizacija zahtevati izvanredan nivo preciznosti, stručnosti i kreativnosti.
Proces izgradnje rezultirao je strukturom koja je jednako robusna kao što je estetski privlačna.
Izazov nije bio samo izgraditi projekat, već to učiniti održavajući integritet dizajna, obezbeđujući strukturalnu stabilnost i pridržavajući se najviših standarda kvaliteta.
„Proces izgradnje, simfonija pažljivog planiranja, naprednih tehnika i nepopustljive posvećenosti kvalitetu, rezultirao je strukturom koja je jednako robusna kao što je estetski privlačna“ – kaže Danilo Micić.

Unapređeno akustično iskustvo
Projekat restorana Piazza nije samo lepa, već i funkcionalna struktura koja donosi brojne prednosti. Prednosti inovativnog akustičnog rešenja protežu se izvan estetskog privlačenja do značajnih ušteda, usklađenosti sa održivošću i dugoročne vrednosti za arhitekte, dizajnere enterijera i stručnjake u industriji gostoprimstva.
„Jedna od ključnih prednosti ovog rešenja je poboljšana zvučna izolacija koju pruža. To smanjuje potrebu za dodatnim merama zvučne izolacije ili skupim renoviranjima u budućnosti, što rezultira značajnim uštedama“ – naglašava naš sagovornik.

Akustično rešenje doprinosi energetskoj efikasnosti smanjenjem odjeka i odzvanjanja, čime se minimizira potreba za prekomernim sistemima pojačavanja zvuka.
Osim toga, akustično rešenje doprinosi energetskoj efikasnosti smanjenjem odjeka i odzvanjanja, čime se minimizira potreba za prekomernim sistemima pojačavanja zvuka. To dalje dovodi do smanjenja troškova za usluge grejanja, ventilacije i klimatizacije, kao i za audio opremu.
„Dodatno, upotreba recikliranih materijala u projektu mogla bi omogućiti klijentima da se kvalifikuju za ekološke sertifikate i podsticaje, podržavajući tako njihove ciljeve održivosti. Ovo ne samo da pomaže u nadoknađivanju početnih troškova, već doprinosi i ukupnom povraćaju uloženog u projekat“ – navodi na kraju Danilo Micić iz novosadske kompanije Impact Acoustic SEE.
Pogledajte video:
Grafički prilozi
Foto-galerija
Faktografija
Ekskluzivni restoran Italijanske kuhinje Piazza
ugostiteljski enterijer
Vasona Studio, Aksinja Lukić u saradnji sa Impact Acoustic SEE
700 m²
Impact Acoustic SEE, Modularni Podovi i Kinetic Lighting
2023.
Fruške terme, Vrdnik
Ilya Ivanov

















Konačno nešto novo i savremeno!
Koliko li treba vremena i radne snage da bi se redovno očisitila paučina koju paukovi prave, idealno dizajnirano baš za pravljnje iste.?Možda postoji neki premaz i protiv toga.
Super..još da taj ko je projektovao ,uzme da cisti od paucine i prasine ovu skalameriju!
Estetski odlično! Čak mi više liči na pečurku što možda ima više smisla za Frušku Goru. Lep je enterijer i nevezano za plafon.
Ono što mi smeta je toliko isticanje održivosti i ekologije u tekstu a ode pola šume za te panele. Imalo bi smisla da neko negde sakuplja stari nameštaj od iverice koji ljudi mnogo bacaju pa ga reciklira, bilo bi ekološkije.
Ali moguće je da ivericu tako ulepljenu i sa tim laminatom možda i nije moguće reciklirati.
Pa, ovu su paneli od reciklirane plastike.
Lepo na oko ali užasno za održavanje…zamislite samo čišćenje prašine
Neprakticno za čišćenje!
kičerica neopevana, inače deja vu ludih 70.ih edukujte se malo, bilo je takvih momenata po beogradu dok lampe nisu izgorele
Materijal je 100% od reciklirane plastike proizveden u Svajcarkoj.
Njegove dodatne karakteristike su da se bakterije ne zadrzavaju, budj i gljivice koje se na sl ( kineskim) materijalima i te kako pojavljuju.
Prasina se odrzava mnogo lakse nego na sl materijalima ili povrsinama i sam materijal je potrebno prebrisati jednom u 3 god .
Ne bi trebalo da donosite zakljucke na osnovu ne proverenih informacija i da ih ovako iznosite javno.
Verujem da je mnogo vremena i energije ulozeno u sam projekat. Svaka cast na realizaciji.