Kabina na Savi: Univerzalna mobilna kuća za odmor na vodi
Splav čini čelična platforma oslonjena na pontone, sa podovima, fasadom i krovom projektovanim u sistemu limenih sendvič panela koji obezbeđuju povoljnu, brzu i jednostavnu gradnju.
Lociran na reci Savi, u okviru beogradskog priobalja, splav Kabina predstavlja prototip univerzalne kuće za odmor na vodi, koju autorski potpisuje BIRØ, arhitektonski studio sa sedištem u Beogradu osnovan 2016. godine.
Projektovana je po savremenim propisima brodogradnje i namenjena je konkretnom kontekstu lokacije na severnoj obali Ade Ciganlije. Ipak, ona poseduje sve karakteristike univerzalnog pokretnog plutajućeg objekta koji se može usidriti na različitim lokacijama i u svim orijentacijama – ne gubeći na funkcionalnosti.
Pročitajte još na Gradnja.rs:

Čelična platforma oslonjena na pontone
Kako za Gradnju objašnjavaju iz studija BIRØ, racionalizacija je jedna od osnovnih karakteristika u pogledu funkcije, ali i kada je u pitanju materijalizacija i konstrukcija splava.
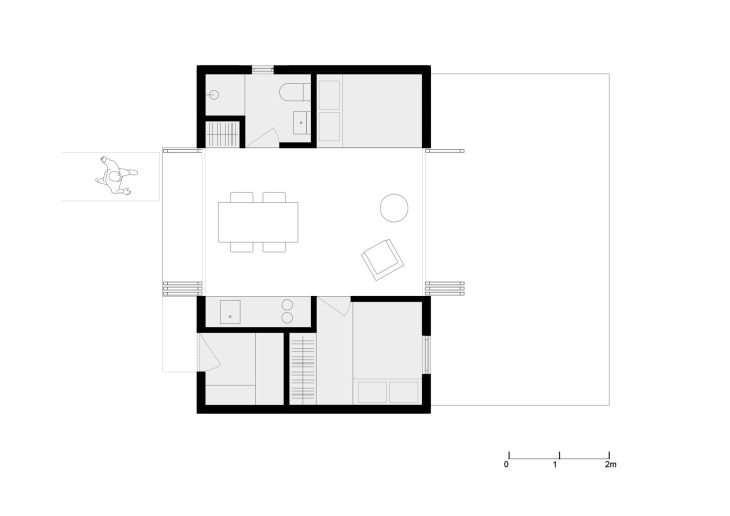
U osnovi, splav čini čelična platforma oslonjena na pontone, podeljena na dva jednaka dela: drvenu palubu ka reci i kabinu – natkriveni/zatvoreni prostor ka obali. Podovi, fasada i krov projektovani su u sistemu limenih sendvič panela koji obezbeđuju povoljnu, brzu i jednostavnu gradnju.
Dnevna zona kabine predviđena je da se leti koristi kao otvorena natkrivena trpezarija, a zimi kao zastakljena zimska bašta.
Usled velikog broja splavova na predmetnoj lokaciji, ključni izazov za projektanta je bilo postizanje osećanja privatnosti uz zadržavanje neposredne veze sa prirodom. Tako je otvaranje ka obali i matici reke, odnosno zatvaranje prema susedima pružilo jasan koncept prostora.
Enterijer objekta je nenametljiv sa minimalnim brojem elemenata. Dnevna zona kabine je zastakljena multifunkcionalna soba sa mogućnošću obostranog otvaranja. Kada je otvorena, dnevna zona postaje prostor koji teče između spolja i unutra. Predviđena je da se leti koristi kao otvorena natkrivena trpezarija, a zimi kao zastakljena zimska bašta.

Otvaranje ka obali i matici reke, odnosno zatvaranje prema susedima pružilo je jasan koncept prostora.
Dnevna zona je namenjena različitim sadržajima i po potrebi se menja postajući prostor za obedovanje, rad, odmaranje, čitanje, rekreaciju, slušanje muzike i ostalo. Iz nje se pružaju atraktivne vizure ka reci na severu, odnosno ka obali sa južne strane koja obezbeđuje gotovo celodnevnu osunčanost enterijera.
Dnevnu zonu okružuju dva bočna zatvorena bloka namenjena noćnoj zoni, odnosno servisnim prostorijama. Ova dva bloka zaklanjaju dnevnu zonu od pogleda sa susednih splavova, a sadrže „opslužujuće“ prostore – nišu sa dnevnim krevetom, odvojenu spavaću sobu, kuhinjsku nišu, perionicu, kupatilo i ostavu.

Lepeza različitih ambijenata
Tako se stepenovanje privatnosti odvija od potpuno otvorene terase, natkrivene i zastakljene dnevne zone, zaklonjene niše sa dnevnim krevetom, i konačno potpuno izolovane spavaće sobe. „Ova lepeza različitih ambijenata pruža gostu adekvatan prostor prilagođen njegovim različitim i promenljivim potrebama“, kažu autori.
Prototip Kabine sadrži priključke na javnu mrežu sanitarne vode i električne energije. „Predviđena je i eventualna adaptacija Kabine za off/grid korišćenje primenom solarnih panela za grejanje vode ili električnu energiju, zatim rezervoara za sanitarnu vodu i butan boca za grejanje i pripremu hrane“, navode na kraju iz studija BIRØ.

Grafički prilozi
Faktografija
Kuća za odmor na vodi „Kabina“
Beograd, Ada Ciganlija
33 m²
2022.
2024.
Arhitektonski studio BIRO
Višnja Jovanović





