Zvezdara dobija novu stambenu zgradu: Četvorospratnica sa podzemnom garažom
Na javnom uvidu je plan za stambeni objekat od 900 kvadrata u Gospićkoj ulici, spratnosti Po+P+3+Ps, sa osam stanova i 9 parking mesta u podzemnoj garaži.
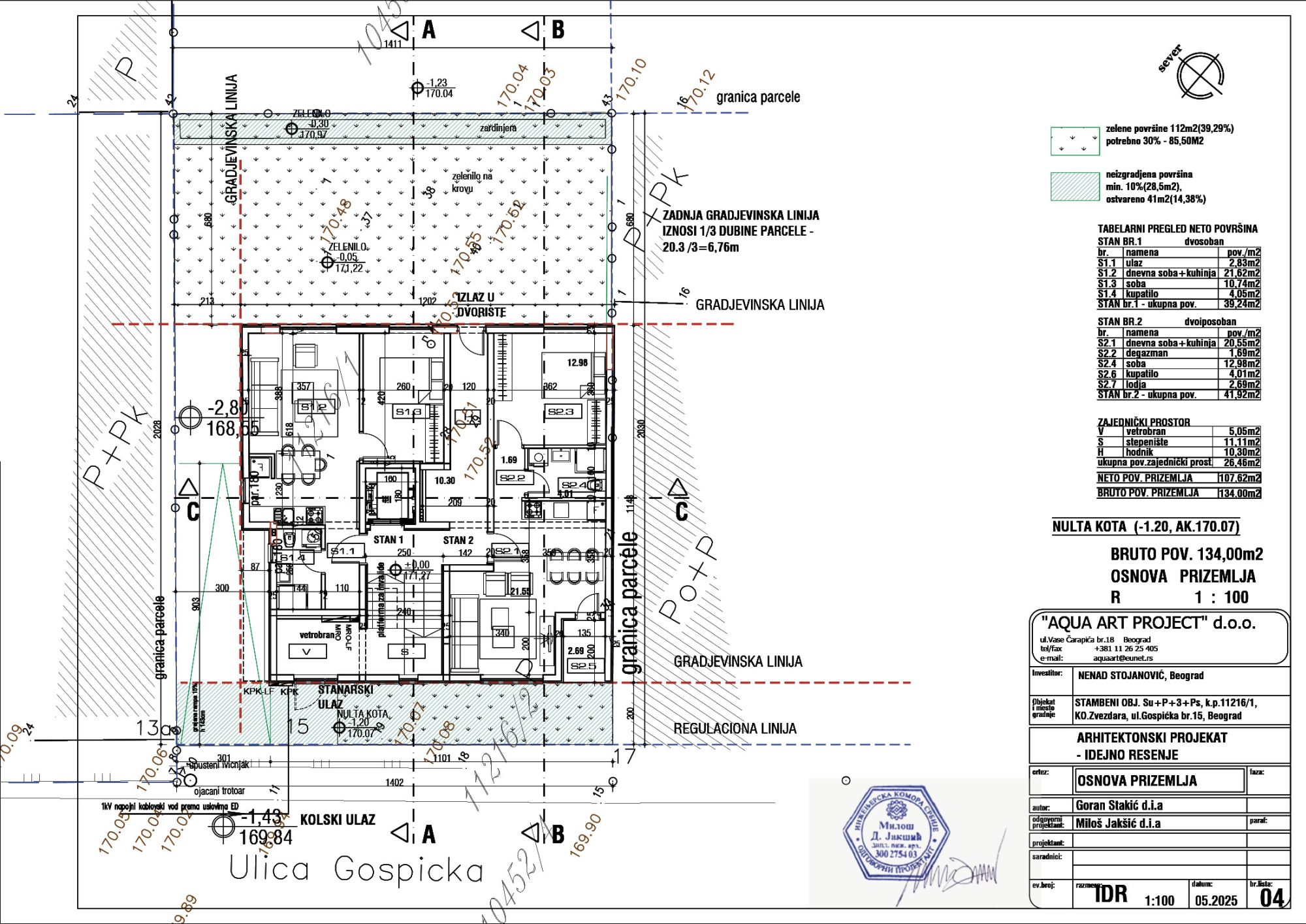
Na adresi Gospićka 15 na Zvezdari uskoro bi mogao da nikne novi stambeni objekat spratnosti Po+P+3+Ps, predviđen urbanističkim projektom koji je Gradska uprava Beograda stavila na javnu prezentaciju tokom proteklog vikenda.
Investitor je Nenad Stojanović iz Beograda, dok su za projekat zaduženi Forma Plan i Aqua Art Project. Odgovorni urbanista je Maja Kecman, dia, autor idejnog rešenja je Goran Stakić, dia, dok je odgovorni projektant Miloš Jakšić, dia.
Pročitajte još na Gradnja.rs:

Direktan pristup iz Gospićke ulice
Urbanističkim projektom je obuhvaćena katastarska parcela 11216/1 u KO Zvezdara, površine 285 m², u ulici Gospićkoj broj 15. Parcela se nalazi u okviru izgrađenog tkiva u centru grada, u bloku koji se transformiše u dužem vremenskom periodu.
Parcela ima direktan pristup iz ulice Gospićke. Na parceli je planirana izgradnja jednostrano uzidanog objekta, na granici parcele prema broju 17, (KP 11215/1 KO Zvezdara), a na osnovu međusobne saglasnosti za jednostrano uziđivanje.

Projektovano 8 stanova i 9 parking mesta
Spratnost objekta je Po+P+3+Ps, namena objekta je 100% stambena i u njemu je smešteno 8 stambenih jedinica. Površina stanova kreće se od 48 m² do 113 m², koliko ima veći od dva dupleksa koji zauzimaju treći i povučeni sprat. Po dva stana smeštena su i na nivou prizemlja, te prvog i drugog sprata.
Za potrebe parkiranja obezbeđeno je 9 parking mesta u podrumskoj etaži, do koje se pristupa direktno sa ulice jednosmernom rampom sa planiranim naizmeničnim saobraćajem. Deo prostora uz ulaz u garažu planiran je za parkiranje bicikala.
Što se pak tiče površina, ukupna BRGP planiranog objekta iznosi 901 metar kvadratni, od čega na nadzemni deo otpada 683, a na podzemni ostatak od 218 m², navodi se u urbanističkom projektu.

Na javnom uvidu do 19. avgusta
Zainteresovana lica mogu tokom javne prezentacije da izvrše uvid u urbanistički projekat, kao i da svoje primedbe i sugestije na planirana rešenja u pisanoj formi dostave na pisarnicu Sekretarijata za urbanizam i građevinske poslove, Kraljice Marije br. 1, najkasnije do 19. avgusta 2025. godine.








