Vrdnik dobija stambeni kompleks sa bazenima i teniskim terenom
Kuće sa bazenima i projektantskim rešenjima koja se oslanjaju na planinsku arhitekturu, svakako će doprineti da se još više potencijalnih žitelja odluči za investiranje u ovaj gradić-banju.
Nije tajna da je srpska elita odavno odabrala Frušku goru kao svoje ”utočište”, budući da pruža najbližu moguću oazu u prirodi između dva najveća grada u državi.
Takođe, nije tajna da je veliki novac uložen u nove objekte, kao što su ”Fruške terme”, ”Premier Aqua” (zanimljivo, prvi ”adults only hotel” u Srbiji, što znači da u njemu nema mesta za decu i porodični odmor) i slična planinsko-banjska zdanja, te je jedan deo Vrdnika postao, ruku na srce, ”svetski” džentrifikovan.
U ovaj segment ubrajamo i mnogobrojne nove vile koje su nikle u novom delu grada, ali i brojne adaptacije starih kuća koje se nalaze u starom delu grada, a koje su, uplivom novih privatnih, uglavnom pojedinačnih investitora, dobile novi sjaj.
Pročitajte još na Gradnja.rs:
- Jedno od najvećih gradilišta na Fruškoj gori snimljeno dronom
- Vrdnička kula: Novo etnoselo na Fruškoj gori

Projekat na javnom uvidu
Ali, takođe nije tajna da postoji velika razlika između novog ”džentrifikovanog” Vrdnika, i starog, ”socijalističkog”, post-rudničkog i tranzicionog Vrdnika, u kome su stare zgrade neugledne, centar ne podseća na staru slavu rudarskog gradića sa vilama za direktore i uslovnim kućama za rudare, a ne podseća ni na moderan banjski centar.
Upravo zbog svega ovoga, Opština Irig, na čijoj se teritoriji nalazi Vrdnik, rešila je da učini nešto i da “džentrifikuje” delove Vrdnika koji stoji zapušteni, i da im da novi “glanc” ili prosto, da izgradi poveznice između investitorskih zdanja i starih, koje čekaju bolje dane.
Naime, Opština Irig stavila je na javnu prezentaciju Urbanistički projekat za urbanističko-arhitektonsku razradu šest katastarskih parcela u KO Vrdnik. Na pomenutim parcelama planirana je gradnja stambenog kompleksa, koji će, bar prema renderima koji su dostupni, biti na visokom nivou.

„Austrifikacija“ planine
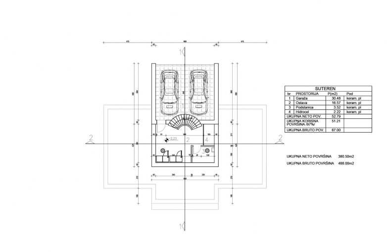
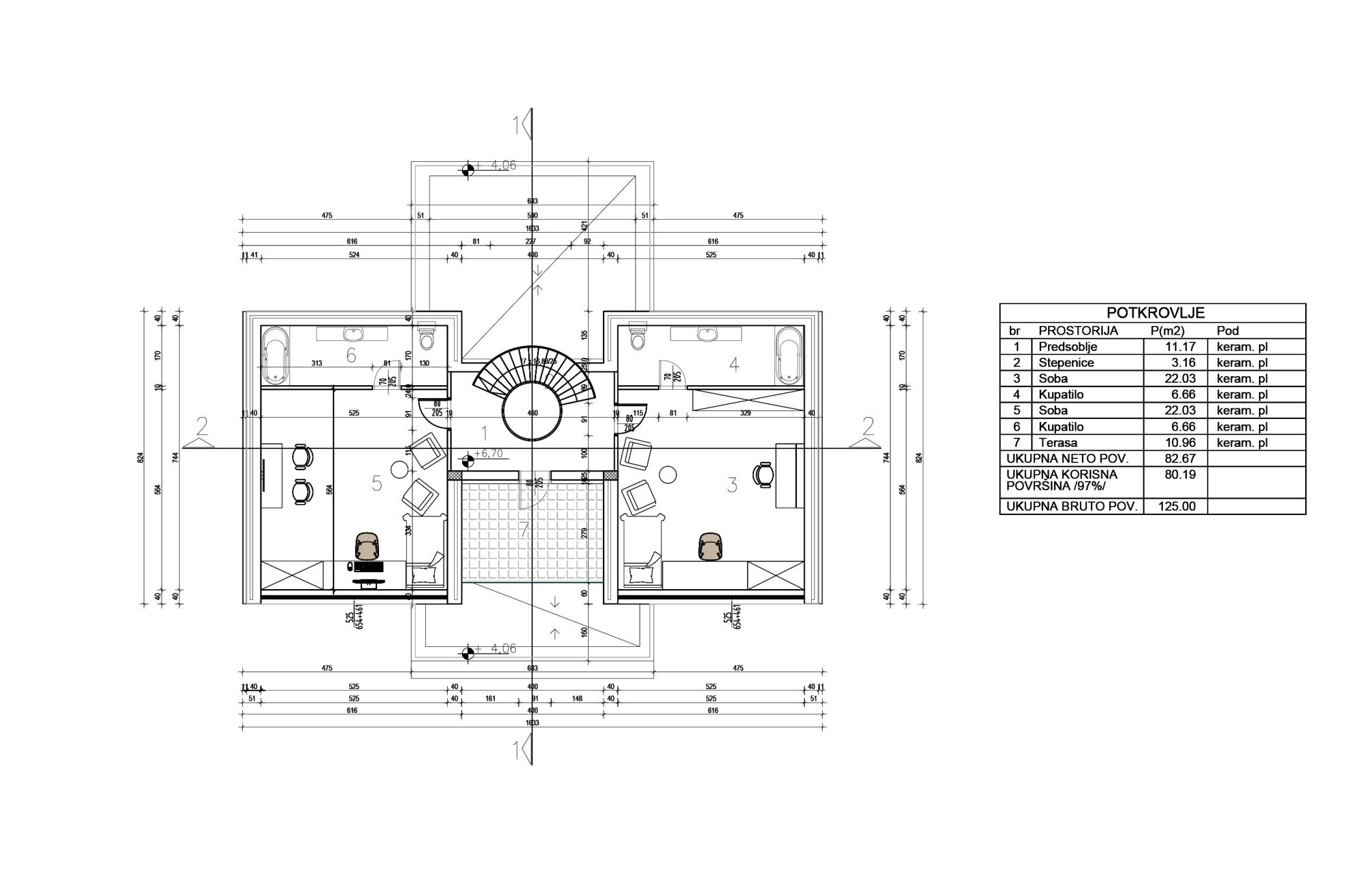
U okviru ovog opsežnog projekta, po potpisu novosadskog Art-Ing Studio, planirano je da se izgradi osam stambenih jedinica sa dva bazena, teniskim terenom, dečijim igralištem… Nažalost, trend ”zatvorenosti” novih naselja se nastavlja i ovde.
Kao cilj projekta Opština Irig navodi ”detaljnu razradu lokacije za sadržaj koji je planskim dokumentom predviđen u ovom delu naselja Vrdnik čijom će se realizacijom urediti i izgraditi sama lokacija koja je trenutno neuređena”. S obzirom da je Fruška gora postala sedište mnogih vinarija, za očekivati je da se počne ”austrifikacija” ove planine, odnosno, da se Vrdnik polako počne pretvarati u naselje koje je (koliko god pre 15 godina ovo bilo neverovatno) – elitno.

Nova rešenja za planinsku arhitekturu
Od zvezda do trnja i ponovo do zvezda, moto je Vrdnika, izgleda. Kuće sa bazenima, sa novim materijalima i projektantskim rešenjima koja se oslanjaju na planinsku arhitekturu, svakako će doprineti da se još više potencijalnih žitelja odluči za investiranje u ovaj gradić-banju.









zlatiborizacija počinje nevino od malih … eto eko kuća, užas u najavi!
Pa kako smo dosli od ovih kuca koje su ocigledno u stilu planinskih vila, do visespratnica na Zlatiboru?
Tako sto je i Zlatibor krenuo sa kucama u stilu planinskih vila.
Tako što su ovi objekti 12m visine,pa će se lako preći na 15,18,21,24m….
Pa dok se ne predje, zaista nema smisla da ih optuzujemo za nesto ruzno kao potencijalnu nameru, dok se projektuje nesto lepo. A ne znam, najbolje je da se ostavi ruinirani Vrdnik? Da se svi isele za NS ko sto vec i jesu od 1990. naovamo? Naravno da treba i sve zgrade u centru vratiti u stari sjaj, one koje su rudarsko nasledje, ima tamo vila starih i zapustenih itd. ali to ne znaci da sene treba ici naporedo i dalje, dok se ne prelazi granica ukusa.
Bravo….ja sam iz Vrdnika i siguran sam da sve sto se radi, za sada unapredjuje sliku Vrdnika, na prvom mestu, nema ili je jako malo nezaposlenih
Gradjevine su u velikoj vecini u skladu sa lokacijom, nista nije preterano
Hvala za komentar sa lokacije. Komentatori iz fotelje su svoje rekli.
Najbolje da se ljudima omoguci normalan zivot tako sto ce imati vodu a ne restrikcije u snabdevanju vodom.
Sigurno ce svi planirani kompleksi poboljsati uslove zivota sto se tice navedenog snabdevanja vodom, narocito izgradnja bazena ce tu pozitivno doprineti.
Znaci, dok se ne predje u visespratnice, nedjemo da kritikujemo nego cemo da kritikujemo kad se predje?
Pa zar nije kasno kad se taj prelazak vec desi?
Mnogo je to dobar pristup – Ne spreciti nego sacekati da se desi i palamuditi kako se mislilo da se nece desiti, ahahahahhahahaha. Sta reci, koju posluku porati 😀
Ti ko da si gledao film Minority Report, pa bi da hapsis za PREDZLOCIN 🙂 OK, slazem se da ne treba ici putem Zlatibora, ali ne vidim da bi zabrana obicnih kuca preventivno doprinela da se neko ne seti da sagradi zgradurinu. Kad neko podnese zahtev za zgradu od 8 spratova ko na Limanu, onda mu kazes NE, inace, ovo je za DA i to je to.
Veoma ružan projekat vila od 500m2 nefunkcionalan i ni po čemu elitan. Tačno je da počinje zlatiborizacija na žalost jer je već izgrađena trospratna stamena zgrada kod starog hotela Termal, a ono što je urađeno u kompleksu Fruške terme je potpuno preterivanje i uništavanje prirode.
Diplomirani inženjer arhitekture i magistar tehničkih nauka Mirjana Đorđević
Vrhunska arhitektura i prezentacija….Pa na šta ovo liči? Komentar za redakciju, dajte malo korigujte kriterijum šta postavljate na portal.
A kao ruzno je, ne razumem? Lose je? Treba da cekamo da se svi isele za NS? Da bude ko sto je sad Vrdnik i da se radujemo sto propada? Ajde malo jasnijia ta kritika?
Dodatno, nigde u tekstu ne pise VRHUNSKA ARHITEKTURA I PREZENTACIJA.
Ja moram da se složim sa Darkom. Arhitektura je senzacionalistička, stila iz ranih 2000-tih (kasni 20 godina, a i taj pristup arhitekturi se pokazao jako loše vremenom, poput postmoderne, sa suvislim ukrasima, losim detaljima, losim spajanjem materijala… generalno loša estetika koja ne prati strukturu same kuće već služi za ukras…) Jako loše i tužno iskreno, ali možda tom utisku doprinosi loša vizuelizacija projekta. Spratnost mi ipak deluje malo preterano, zadržao bih se na P+1 kad bih nazivao nešto planinskom kućicom… Ali nisu za to krivi projektanti, kriv je urbanizam.
Upropastili STE ZLATIBOR sada HOCETE i FRUSKU GORU ….
Ovaj portal nece nista, pa ni da upropasti nikoga 🙂
Komentari koji navode nesrećni primer Zlatibora su upućeni ka pogrešnom mestu. To se rešava u Urbanizmu, kad neko „gore“ proceni da se tu može uzeti dosta novca, odnosno dovoljno za prljanje ruku, onda se promene uslovi za gradnju. E, kad se to desi, izvolite pa se pobunite, ali tamo gde treba.
Ovde neko pokušava da izgradi 8 kuća na ukupno 112 ari placa, tu nema govora o prezauzetosti parcele.
Verovatno se unapred zna ko će biti vlasnici, ako je uopšte namenjeno za dalju prodaju, možda će ostati za kratkoročni najam, to ćemo videti.
Ono što treba ispratiti je da se ovo za šta je predat UP na kraju i izgradi i da se od ovoga ne odstupi. Da na mestu teniskog terena i bazena ne nikne nešto drugo, mada nije u redu unapred osuđivati.
Što se tiče arhitekture, ni meni se ne sviđa, ni izgled ni raspored prostorija. Slažem se sa Dedovićem da ovde može biti dosta problematičnih detalja, ali ovo je na nivou IDR-a, pa je to i normalno.
Da sumiram, ne treba dozvoliti bilo šta i bilo gde (kao na Zlatiboru), ali investicije su potrebne i treba ih podržati.
Sve se slazem.
Dobro, ja samo izvestavam o projektu, ne zauzimam stranu da li je posebno lepo ili nije lepo. Ne znam zasto se stalno nekome ko je napisao neki tekst pripisuje „odbrana“ projekta.
Valjda zato što se tekst, zbog svoje čitljivosti i atraktivnosti, dopunjuje izrazima „novi sjaj“, „visok nivo“ i slično, pa se stiče subjektivni utisak da autor teksta ima pozitivan stav o samom predmetu teksta. Što je, u krajnjoj liniji, sasvim u redu.
Moj prethodni komentar nije imao za cilj da primedbu o arhitekturi stavi Vama na teret, jasno je da nemate ništa sa tim, prosto sam izrazio neki svoj utisak.
Odvratno..odvratno…odvratno…bejah u Vrdniku i jedan i drugi hotel dno dna….tacka…neverovatno kolko Srbi imaju potrebu da uniste sve oko sebe sa tolikom dozom neukusa i kica…
Džentrifikacija (engl. gentrification, prema gentry – „niže plemstvo“; tačnije urbana džentrifikacija), proces u kome se stare jeftine zgrade ili čitavi delovi grada, najčešće radnička naselja, pretvaraju u skupe zgrade za dobrostojeće pripadnike srednje klase, koji se doseljavaju umesto originalnog stanovništva, koje sebi ne može da priušti povećanje dažbina i troškova života.
Najčešće se džentrifikuju centri gradova sa tendencijom pomeranja siromašnog stanovništva ka periferiji. U upotrebi je i reč japifikacija, sa sličnim značenjem kao džentrifikacija.
Džentrifikacija ponekad može poprimiti i forme socijalnog čišćenja, kada se npr. stanovništvo favela raseljava radi izgradnje poslovnih prostora bez ponuđenog alternativnog smeštaja.