Vikendica u Alibunaru po uzoru na tradicionalnu vojvođansku kuću
Po projektu studija Modelart Arhitekti u malom banatskom mestu podignuta je kuća za odmor sa svim sadržajima potrebnim za duži boravak četvoročlane porodice Rilak.
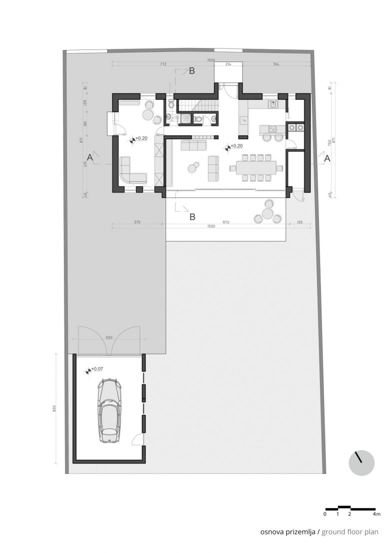
Geometrija vikendice u Alibunaru inspirisana je tradicionalnom vojvođanskom kućom, postavljena podužno u odnosu na ulicu (preka, odnosno švapska kuća), čime je postignuta veća “otvorenost” kuće prema dvorištu. Želja investitora bila je da kuća i dvorište budu povezani u skladnu i nerazdvojnu celinu, što je postignuto portalom dužine 9 metara koji dominira južnom, dvorišnom stranom kuće. Otvaranjem staklenog portala dnevni boravak se proširuje na prostor terase, a na ovaj način je omogućena dobra osunčanost unutrašnjosti kuće, kao i vizure prema dvorištu.
Kuća i dvorište povezani su celinu portalom dužine 9 metara.
U funkcionalnom smislu, kuća od 150 metara kvadratnih podeljena je na prizemlje i potkrovlje. Prizemljem dominira dnevni boravak sa kuhinjom i trpezarijom, a iz ovog prostora se izlazi na terasu prema dvorištu. Pored toga, u prizemlju se nalazi i spavaća soba, koja ima poseban ulaz i kupatilo, pa može da funkcioniše kao nezavisna celina.
Na potkrovlju se nalaze tri spavaće, povezane galerijskim prostorom. Želja investitora bila je da svi ukućani povode što više vremena zajedno, što je rezultiralo otvorenim prizemljem gde dnevni boravak i trpezarija zajedno čine glavni prostor okupljanja.


Reflektujuća fasada
Blago reflektujuća crna fasadna opeka u kombinaciji sa tamnim crepom kao krovnim pokrivačem daje kući monolitan izgled, delimično razbijen žutim detaljima i staklenim površinama. Reflektujuća opeka daje različite efekte tokom dana, u zavisnosti od svetlosti i ugla posmatranja.
Svetli enterijer
Kao kontrast tamnijoj spoljašnjosti, unutrašnjost kuće je znatno svetlija zahvaljujući svetlim tonovima i velikim staklenim površinama. Otvoreni deo dnevnog boravka s galerijom dodatno doprinosi upadu velike količine dnevne svetlosti, što je takođe bio jedan od zahteva investitora.
Crteži
Sve fotografije:
Faktografija:
Projekat: Rilak’s Relax – kuća za odmor
Godina: 2015-2017.
Mesto: Alibunar, Srbija
Površina: 150 m2
Autori: Dejan Mitov, Jelena Mitov, Krsto Radovanović
Odgovorni projektant: Vladimir Bosančić
Saradnici: Aleksandra Pavlović, Milan Atanasković, Vladimir Mijović
Fotografije: Vesna Stojaković





















BRAVO
Skorojevićki.