Ormani kao pregradni zidovi u stanu s duplom visinom
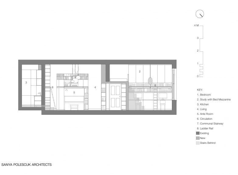
Velika spratna visina stana iskorišćena je za organizovanje polica i ormana do plafona kojima se pak može prići samo merdevinama.
Uz maksimalno iskorišćenje visokih plafona i ubacivanjem delova nameštaja koji definišu prostor, arhitektonska firma Sanya Polescuk Architects uspela je da od nekada neudobnog stana od 93 kvadratna metra u užem centru Londona pretvori u dobro organizovan prostor po meri klijenata. Arhitekte su uspele da transformišu skučeni, ali izuzetno visok stan sa spratnom visinom skoro 4 metara, u prozračan i moderan dom s dosta skladišnog prostora.
Sve prostorije pažljivo su uokvirene ormarima koji su sa svojom visinom do plafona zapravo u funkciji pregradnih zidova.
Postojeći hodnici i neiskorišćene niše u stanu su uklonjene, a centralni prostor postao je dnevni boravak koji je prodisao ne samo zato što je dobio na veličini već i zato što je u enterijeru korišćen svetao hrast. Oko open-space dnevne sobe, kao čvorišta stana, organizovane su ostale prostorije.
Sve prostorije pažljivo su uokvirene visokim policama i ormarima koji su sa svojom visinom do plafona zapravo u funkciji pregradnih zidova.
Merdevine za bolju dostupnost
Negde u visini glave, duž masivne komode u dnevnom boravku, ali i one u radnoj sobi, postavljena je horizontalna metalna šipka po kojoj klize merdevine koje služe da za pristup viših delova komode. Baš zbog ovog elementa, projekat ovog stana nosi naziv A Step Up the Ladder.
Jedan od zanimljivijih delova stana jeste radna soba koja je smeštena između dve spavaće sobe. Iz ove prostorije se preko stepenica dolazi do galerije na kojoj se nalazi još jedan krevet.
Crteži



Foto: Emanuelis Stasaitis









