Dupliranje korisnog prostora stana pomoću metalne galerije
Antracit metalna konstrukcija seče ovaj prostor na pola i čine centralni detalj unutrašnjeg uređenja.
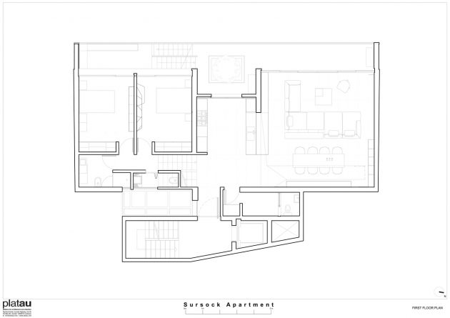
Potreba za dobijanjem dodatnog prostora za život i ceđenja svakog kvadratnog centimetra izražena je, očigledno, na svim meridijanima. Tako nam iz Libana stiže zanimljivo rešenje stana zvanog Sursock kojeg karakteriše velika visina koju je nekako trebalo iskoristiti, odnosno, pretvoriti u koristan prostor. Klijent je angažovao bejrutski biro platau koji je dobio zadatak da osmisli celokupno rešenje stana kao i kompletan enterijer.
Duž stana proteže se betonski zid koji je poslužio kao savršena pozadina za metalnu konstrukciju antracit boje.
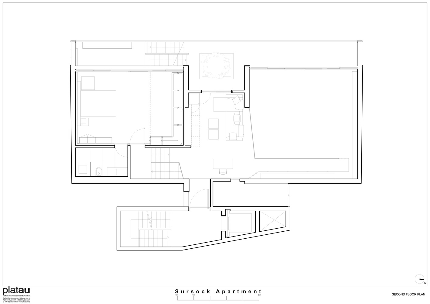
Stan na dva nivoa ima promenljive visine. Dok je dnevni boravak s trpezarijom dvostruke visine, dve spavaće sobe, kuhinja, radna soba i kupatila imaju uobičajenu spratnu visinu. Mezanin u centralnom prostoru trebalo je nekako uobličiti a opet ne potpuno ga zatvoriti. Arhitekte su se odlučile da ovaj prostor preseku interesantnom galerijom od metalne konstrukcije.

Kičma prostora
Duž celog stana proteže se betonski zid koji je poslužio kao savršena pozadina za metalnu konstrukciju antracit boje koja zapravo čini kičmu ovog prostora. Ona određuje prostor, čini glavnu komunikaciju, a pritom je i dominantni detalj u enterijeru. Metalna konstrukcija obuhvata stepenište s pločom mezanina, dozvoljavajući kreiranje kuhinje na prvom nivou koja se otvara prema dnevnoj sobi.
Merdevinama do modne piste
U dnevnom boravku, kičma se produžava u vidu uskog koridora, koji izgleda kao modna pista, ispod kojeg je kreirana polica za knjige dvostruke visine. Na konstrukciju se iz dnevne sobe može direktno popeti merdevinama ili im se stepenicama može prići s drugog kraja .
Tanka metalna ograda oivičava koridor dok tri crne visilice iznad trpezarijskog stola unose dinamiku u prostor.
Pogledajte i slike ostatka enterijera:
Grafičke podloge



Foto: Wissam Chaaya











