Student iz Kruševca osmislio montažnu „kuću za sve“ koju dizajnirate sami
Zamislite da možete da možete da kupite svoju kuću iz snova preko aplikacije? Ovo programsko rešenje i tehnologija izrade to dozvoljavaju.
Projektu pod nazivom „Kuća za sve“ (Haus für alle) – aplikaciji za samostalni dizajn sopstvene kuće, pripala je prva nagrada na konkursu “Poetika portala” koji je organizovala kompanija Hörmann zajedno sa Arhitektonskim fakultetom u Beogradu.
Iza ovog projekta stoji 23-godišnji student iz Kruševca Luka Stevanović, trenutno na master studijama u ovoj obrazovnoj ustanovi, koji nas je ukratko upoznao sa ciljem i rešenjem prvonagrađenog rada.
Pročitajte još na Gradnja.rs:
- Lisabonski mozaik Ive Živković predstavljaće Srbiju na studentskom takmičenju u Portugaliji
- Zagrebački studenti osmislili sklonište koje se sklapa brzo i bez alata

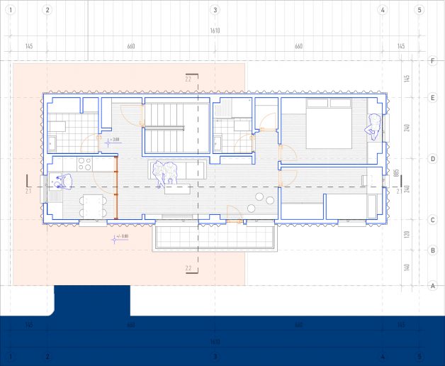
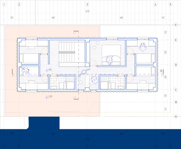
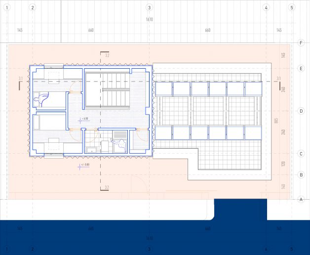
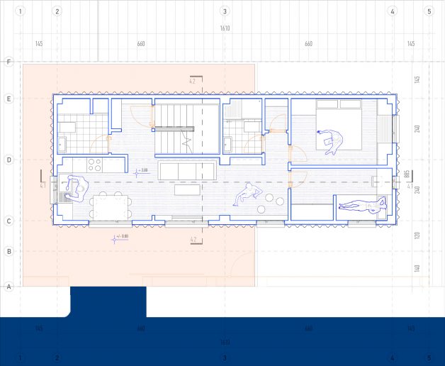
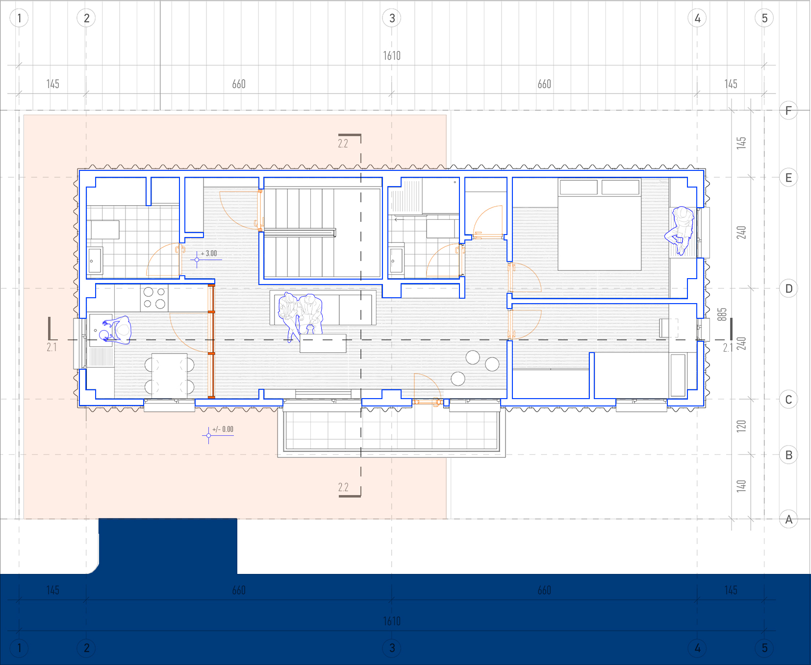
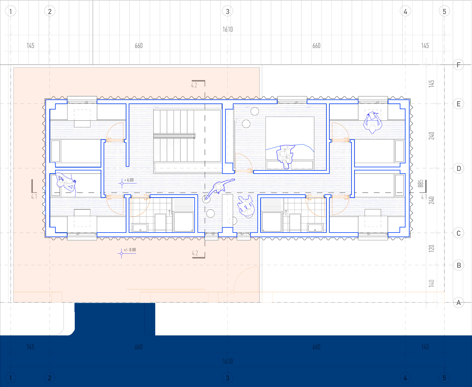
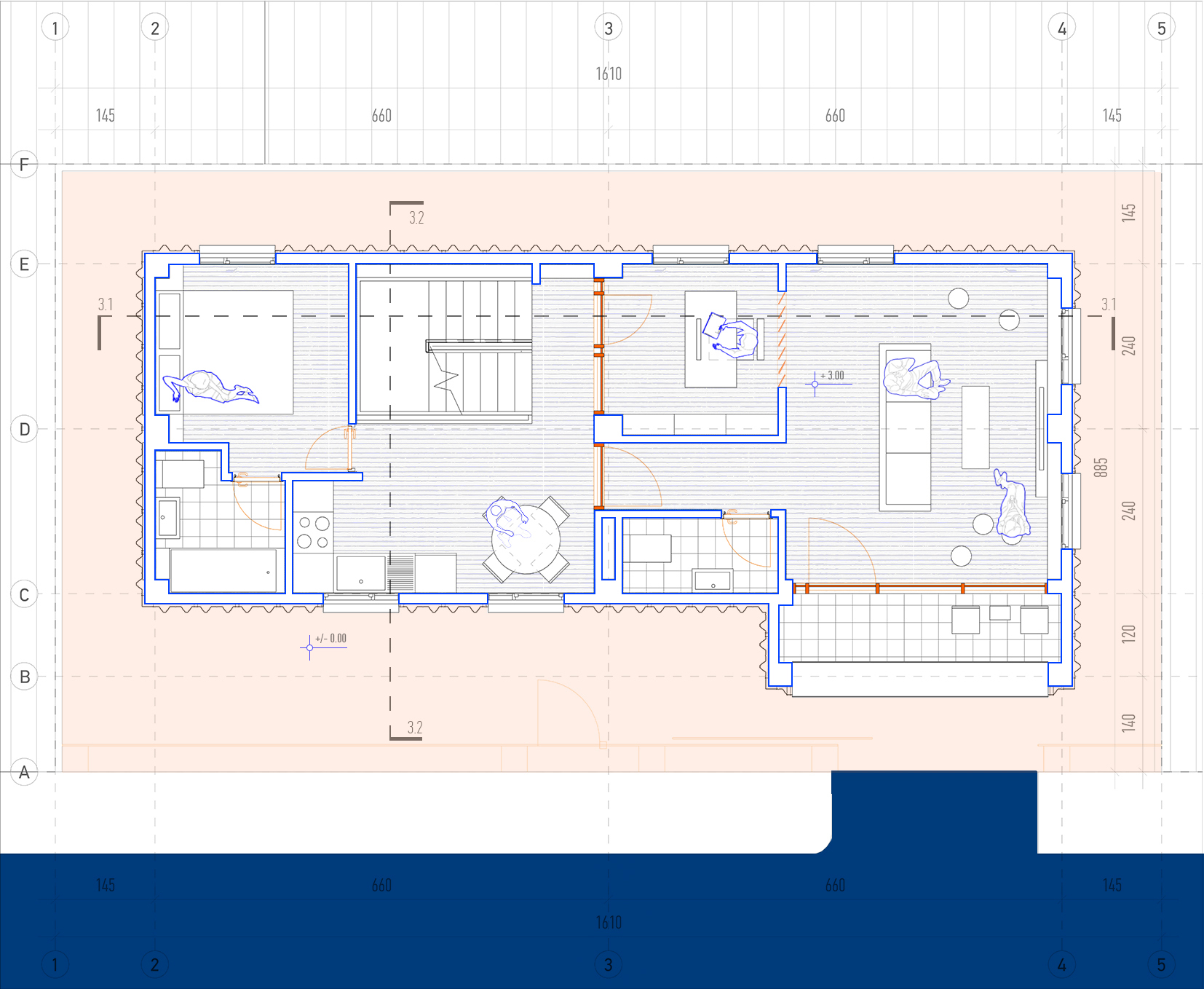
Trajna arhitektura prilagođena potrebama korisnika
Osnovni cilj projekta je bio da se napravi trajna arhitektura koja se može prilagođavati tokom vremena na osnovu želja i potreba sadašnjeg korisnika.
Projektno rešenje je postavljeno na mestu „urbanih udubljenja“ (seosko/neiskorišćeno zemljište između viših gradskih zgrada), na primeru urbanog okruženja velike gustine u Dizeldorfu, Nemačka.

Svaki od pet entiteta se može dodatno razraditi sa Hörmann sistemima vrata, što je bio ključni zahtev projektnog zadatka.
Rešenje sadrži mobilnu/desktop aplikaciju koja omogućava potencijalnim korisnicima da izaberu montažne delove svog budućeg doma.
Korisnik može izabrati delove od pet heterogenih entiteta, a to su: tip stana, garaža, ulaz, terasa i krov.
Svaki entitet se može dodatno razraditi sa Hörmann sistemima vrata, što je bio ključni zahtev projektnog zadatka.

Svi delovi segmentirani i modularni
Izgradnja potencijalnih kuća je zasnovana na čeličnim montažnim delovima (grede/stubovi/podovi) sa armirano-betonskim temeljnim pločama, na osnovu dimenzija najčešće korišćenog tipa transportnog kamiona kompanije Hörmann.
Svi delovi su segmentirani i modularni kako bi se obezbedile dogradne veze u slučaju smanjenja ili nadogradnje kućne jedinice.
Kupovina kuće preko aplikacije?
“Zamisli da kupiš kuću preko aplikacije… nemoguće! Ne više“ – kaže Luka.
Potencijalni korisnik bi selektovanjem željenih entiteta (broj stanovnika/tipologija partera/tipologija terase/tipologija krova) samostalno oformio svoju kuću iz snova koristeći proizvode kompanije Hörmann, samostalno, u samo par klikova.
Kako su svi isprojektovani entiteti tipski (sa mogućnošću adaptiranja vizuelnih preferenci) kompletan objekat bio bi isporučen na kućnu adresu i montiran na licu mesta.









Klasična gradnja najbolja ,ne nože vuk da je oduva!!!samo dosta armature da izdrži zemljotres i beton kako treba plus izolacija od kamene vune i nema brige …300 god!!!
Izmislio toplu vodu. Montažni modularni sistemi postoje već više od pola veka. Ne vidim šta je ovde toliko inovativno osim aplikacije, ali to nema veze sa arhitekturom.
pa dobro je… nikad nije kasno da se otkrije i ovde topla voda