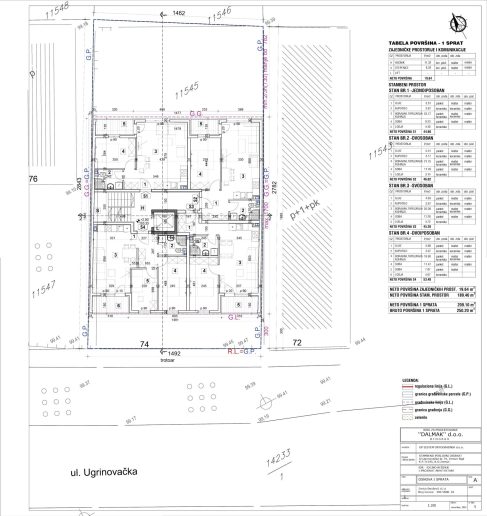
Ugrinovačka dobija novu stambeno-poslovnu zgradu sa 15 stanova i podzemnom garažom
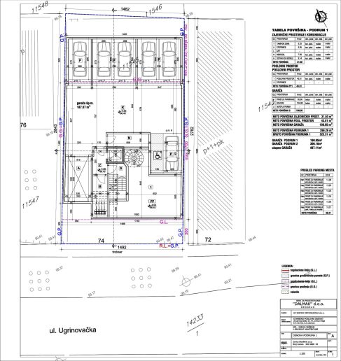
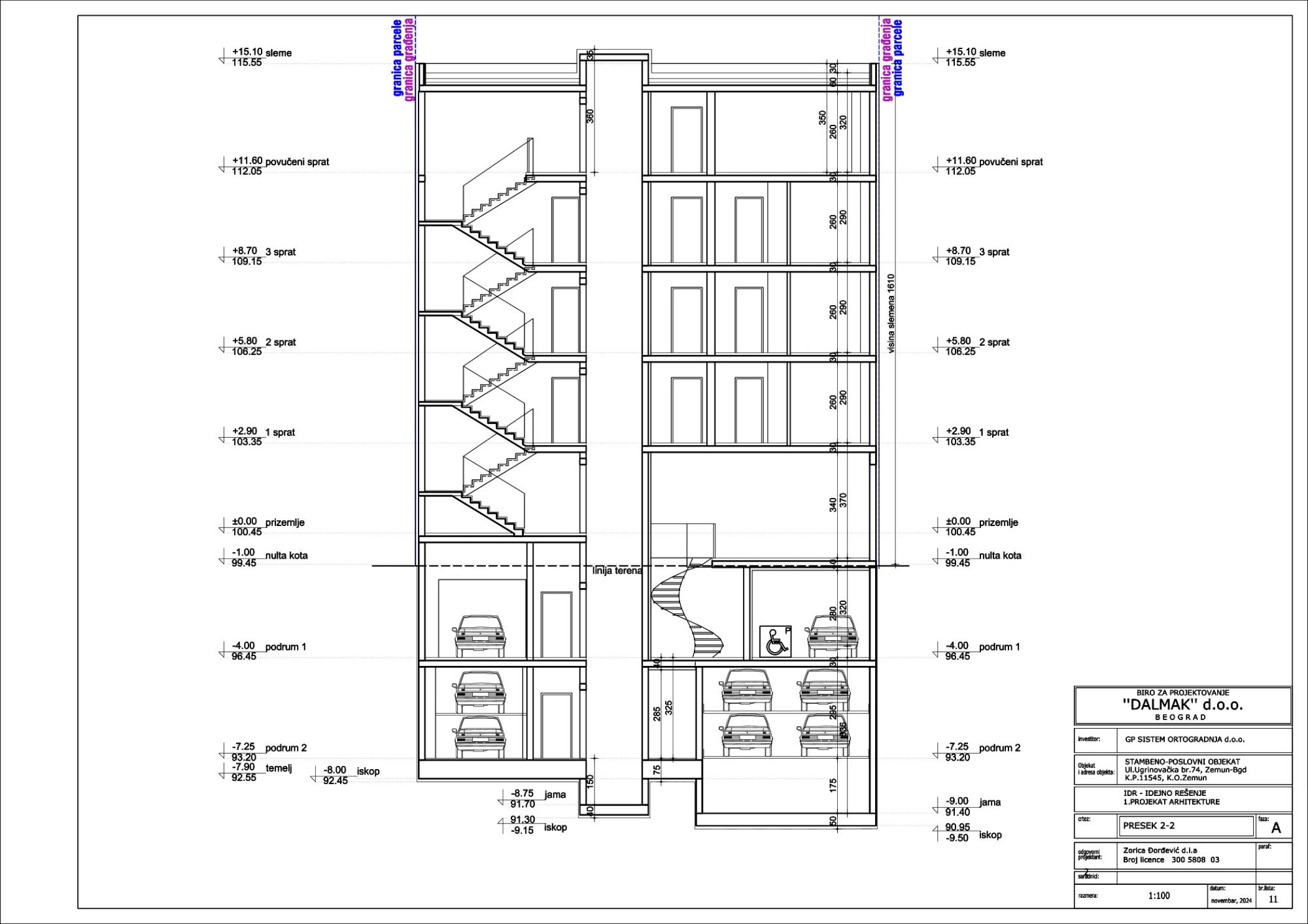
Na mestu porodične kuće u Zemunu planirana je izgradnja objekta spratnosti 2Po+P+3+Ps sa 20 parking mesta i jednim lokalom u prizemlju.
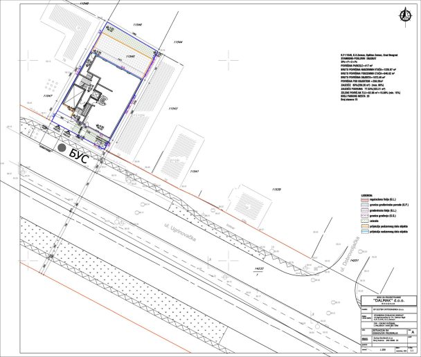
Urbanistički projekat za izgradnju stambeno-poslovne zgrade u Ugrinovačkoj 74 u Zemunu trenutno je na javnoj prezentaciji, a zainteresovani građani mogu do 22. oktobra da daju svoje primedbe i sugestije.
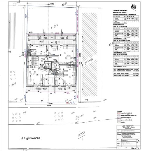
Reč je o projektu beogradskog preduzeća GP Sistem Ortogradnja d.o.o., koji predviđa izgradnju objekta spratnosti 2Po+P+3+Ps sa ukupno 15 stanova, jednim lokalom u prizemlju i podzemnom garažom sa 20 parking mesta. Nosilac izrade urbanističkog projekta je Dalmak d.o.o., dok je Aleksandra Stanojević, dia, potpisana kao odgovorni urbanista, a Zorica Đorđević, dia, kao odgovorni projektant idejnog arhitektonskog rešenja.
Pročitajte još na Gradnja.rs:

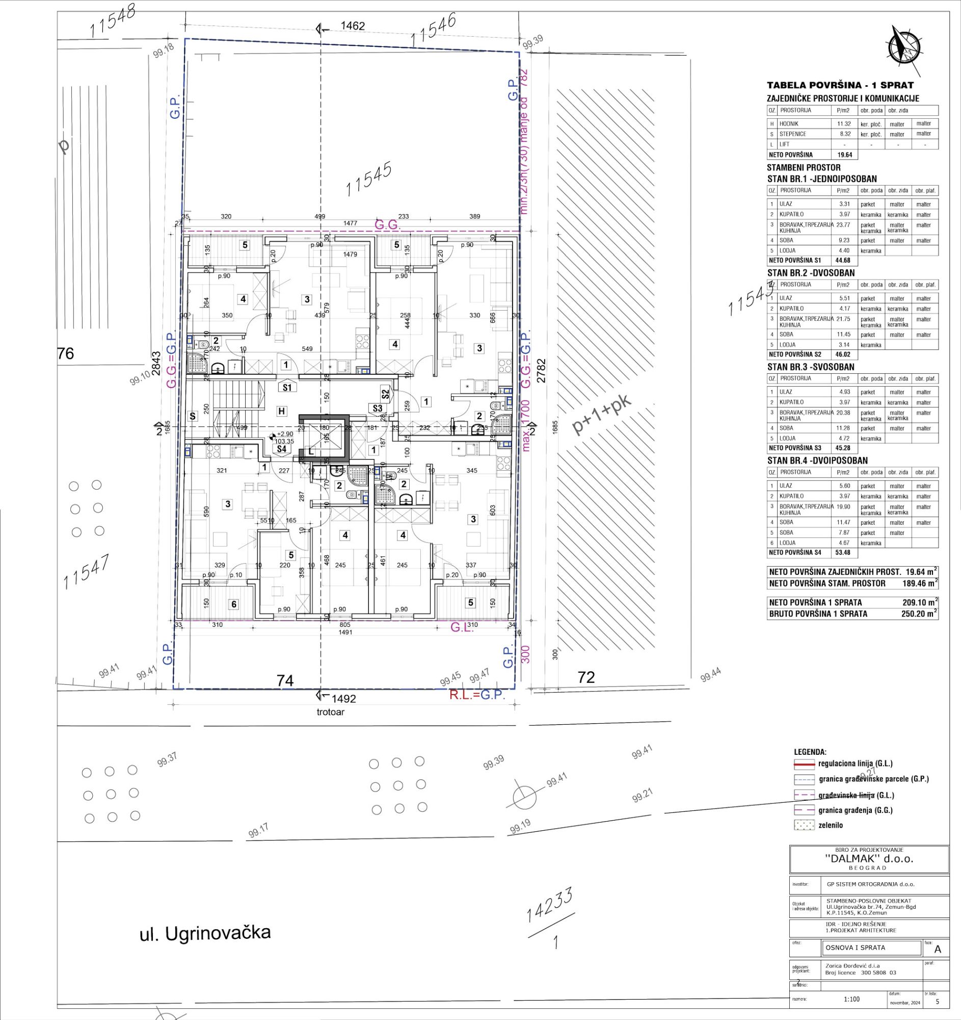
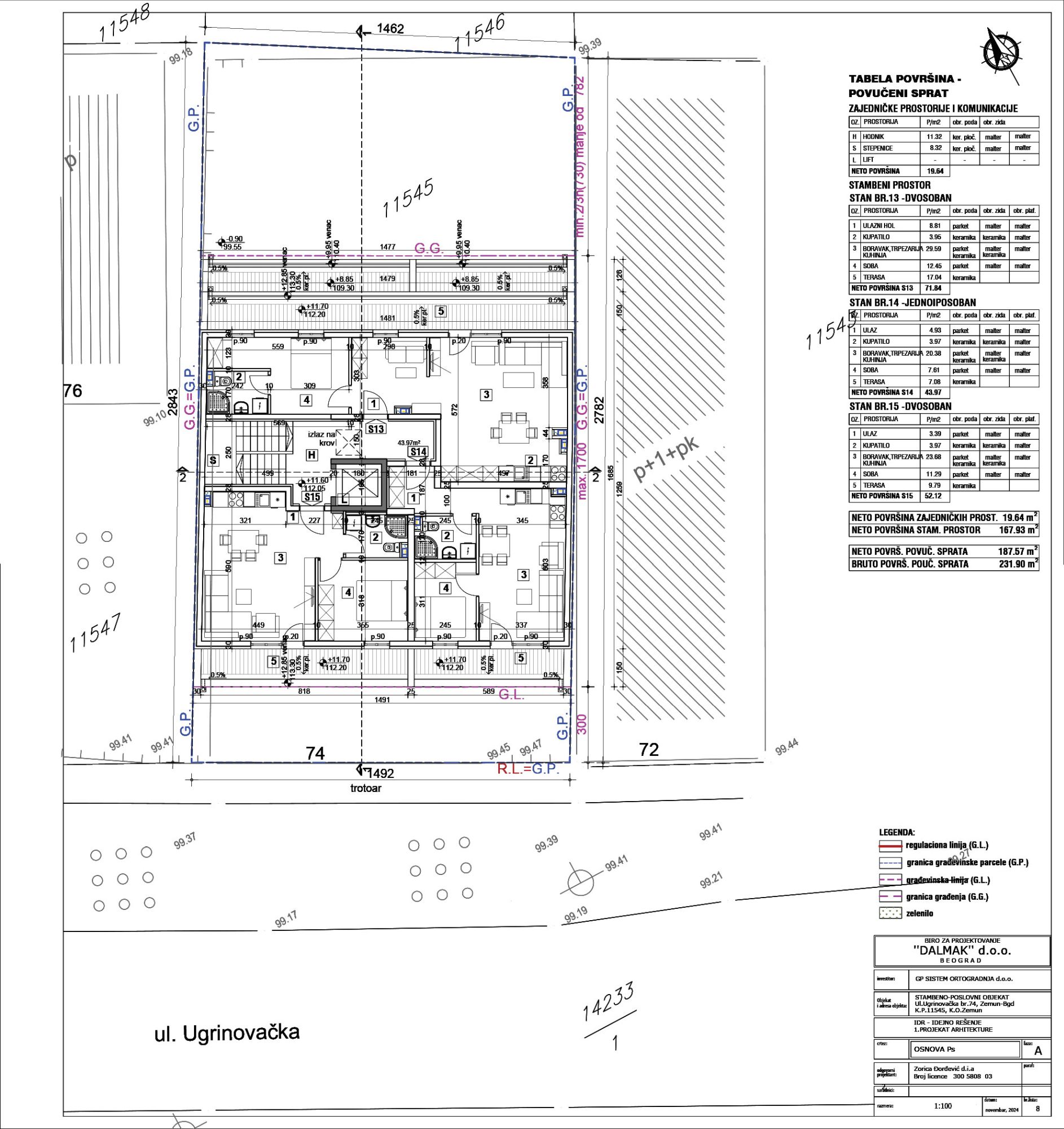
Projektovano 15 stanova
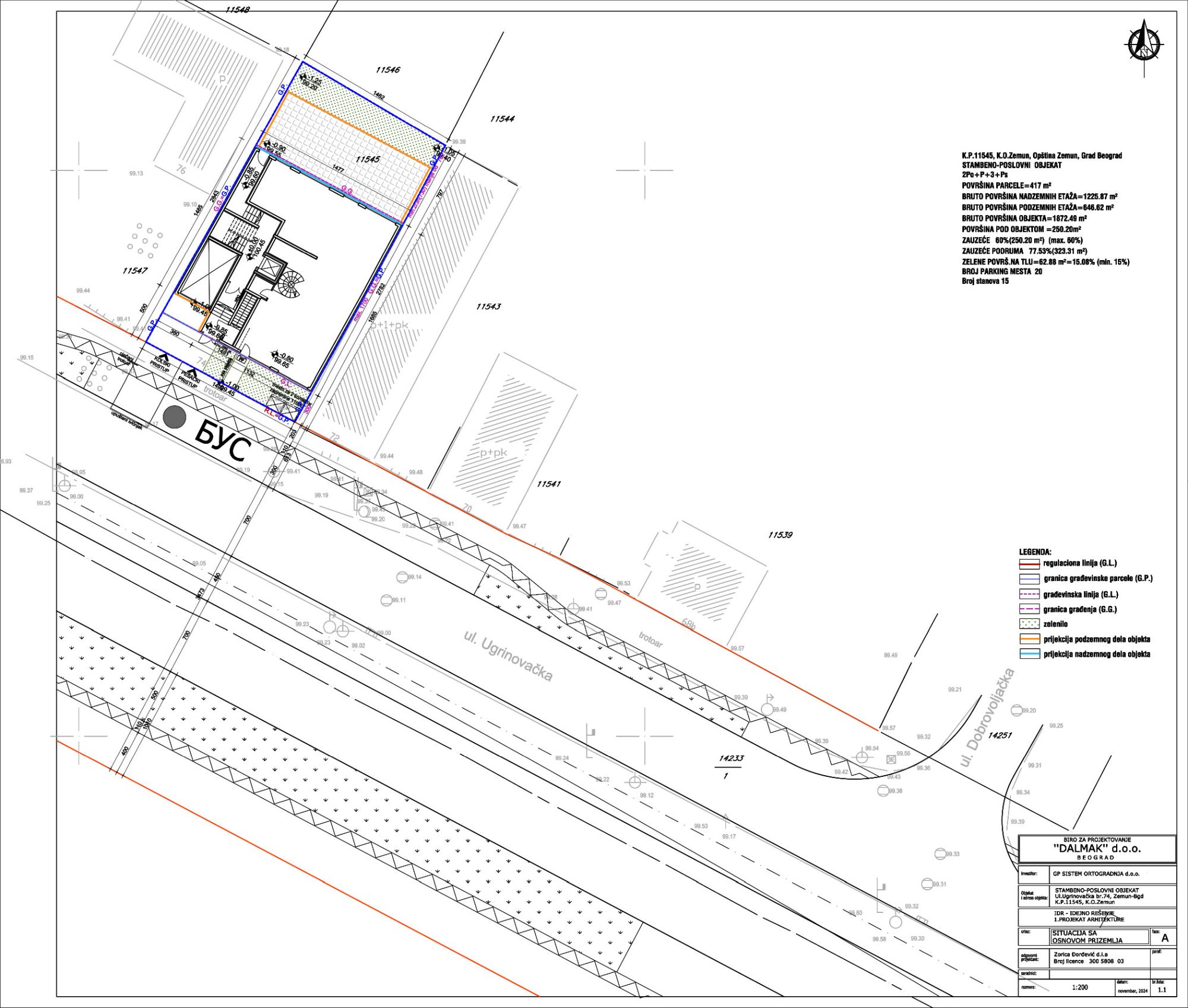
Granicom Urbanističkog projekta obuhvaćena je GP1 koja se formira od KP 11545 KO Zemun, čija površina iznosi 417 m². Parcela je približno pravougaonog oblika, a teren je ravan. Po Listu nepokretnosti, na parceli postoji porodična stambena zgrada površine od 93 m².
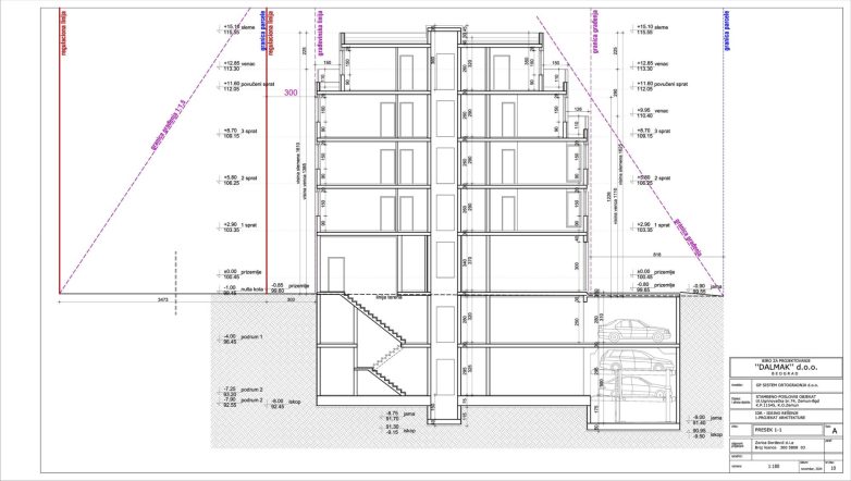
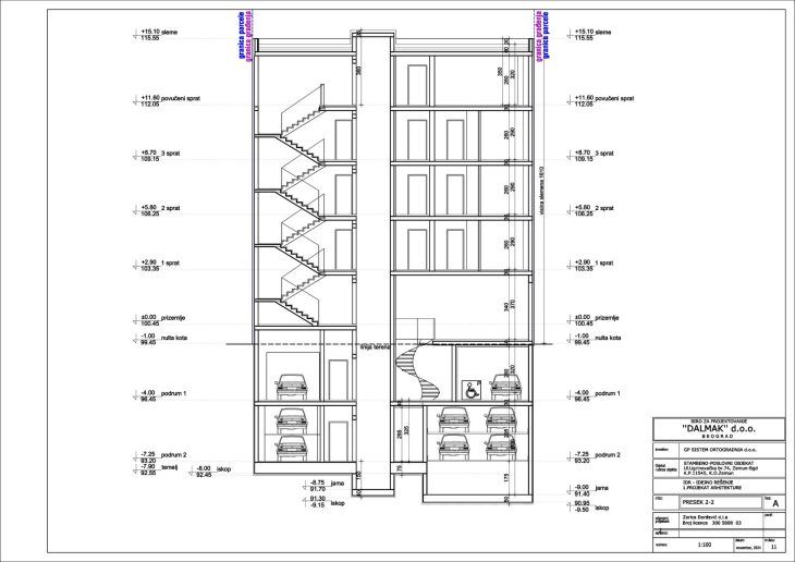
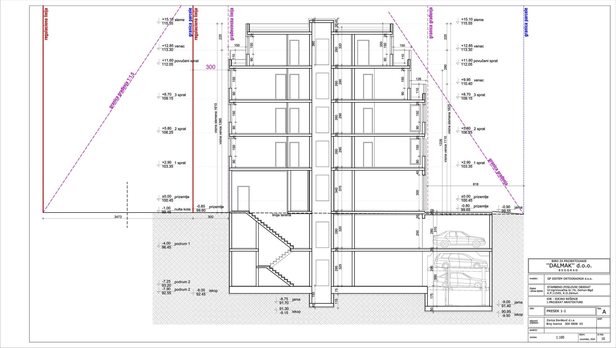
Na parceli se projektuje objekat koji je po nameni stambeno-poslovni, po tipu dvostrano uzidan, spratnosti 2Po+P+3+Ps. Objekat čini poslovni prostor u prizemlju i delu podruma 1, te stambeni prostor na 1, 2, 3. i povučenom spratu sa ukupno 15 stanova.
U podrumu objekta, u okviru garaže je ostvareno 20 parking mesta, od čega je jedno parking mesto obezbeđeno za lica sa invaliditetom.
Kolski pristup objektu predviđen je sa jugozapadne strane, odnosno iz ulice Ugrinovačke. U podrumu objekta, u okviru garaže je ostvareno 20 parking mesta, od čega je jedno parking mesto obezbeđeno za lica sa invaliditetom. Parking mesta za 4 bicikla su ostvarena u prostoriji u nivou podruma 1.
Ukupna bruto površina objekta po SRPS-u iznosi 1.872 metra kvadratna (1.549 m² neto), od čega na podzemne etaže otpada 646 m², a na nadzemne ostatak od 1.226 m², navodi se u urbanističkom projektu na javnom uvidu.
Primedbe i sugestije do 22. oktobra
Zainteresovana lica mogu tokom javne prezentacije da izvrše uvid u urbanistički projekat, kao i da svoje primedbe i sugestije na planirana rešenja u pisanoj formi dostave na pisarnicu Sekretarijata za urbanizam i građevinske poslove, Kraljice Marije br. 1, najkasnije do 22. oktobra 2025. godine.







Da li je moguce da nikome nije palo na pamet da zasadi neko drvo,vec samo beton i staklo na sve strane. Unistavaju Zemun iz dana u dan…ovo je ruzno i tuzno
Postovana,
investitori se gade travnatih povrsina i drveca, uglavnom 100 posto povrsine unutar placa kao i van se asfaltira.
pitam se kada ce opstina i grad malo da urede ovu oblast valjda kad se sve srusi i izida i kad bude prekasno za neko urabanisticko humanije uredjenje.