Mirijevo dobija novu zgradu: Urbanistički projekat otkriva 19 stanova i garažu
Plan za petospratnicu u Ulici Matice srpske dostupan je na javnom uvidu do 19. decembra, a predviđa 3.218 kvadrata bruto površine i 22 parking mesta na dve podzemne etaže.
U Ulici Matice srpske u beogradskom naselju Mirijevo uskoro bi mogla da nikne nova stambeno-poslovna petospratnica sa garažom, za čiju je izgradnju izrađen urbanistički projekat koji možete pogledati na sajtu Grada Beograda.
Nosilac izrade urbanističkog projekta kompanija VM Invest d.o.o. sa Palilule, kao odgovorni urbanista potpisana je Milica Radulović, dia, a kao autor idejnog rešenja i odgovorni projektant Igor Štilić, dia. Investitor projekta je fizičko lice.
Pročitajte još na Gradnja.rs:

Projektovano 19 stambenih jedinica
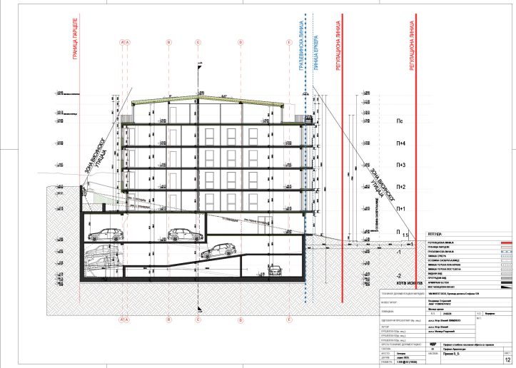
Obuhvat urbanističkog projekta je cela katastarska parcela 2105/29, KO Mirijevo, površine 710 m². Predmetna lokacija nalazi se u Ulici Matice srpske u stambenom bloku naselja Mirijevo. Parcela je trapeznog oblika i dužom stranom je orijentisana u pravcu zapad-istok.
Parcela ima pešački i kolski pristup direktno preko Ulice Matice srpske, tj. preko javne površine ulice na katastarskoj parceli 2105/23, KO Mirijevo, koja je u planiranom stanju ulične mreže plana planirana sa poprečnim profilom širine 10 m, navodi se u projektu.
Na dve podzemne etaže i u prizemlju smeštena su ukupno 22 parking mesta, od čega su za osobe sa invaliditetom obezbeđena dva parking mesta.
Spratnosti 2Po+P+4+Ps, novoprojektovani objekat sadrži 19 stambenih jedinica i poslovni prostor površine 89 m². Na dve podzemne etaže i u prizemlju smeštena su ukupno 22 parking mesta, od čega su za osobe sa invaliditetom obezbeđena dva parking mesta.
Bruto podzemna površina ovog stambeno-poslovnog objekta iznosi 1.396 m², nadzemna 1.822 m², čime dolazimo do ukupne bruto površine od 3.218 metara kvadratnih. Ukupna neto površina iznosi 2.212 m².
Javi uvid do 19. decembra
Zainteresovana lica mogu tokom javne prezentacije da izvrše uvid u urbanistički projekat, kao i da svoje primedbe i sugestije na planirana rešenja u pisanoj formi dostave na pisarnicu Sekretarijata za urbanizam i građevinske poslove, Kraljice Marije br. 1 najkasnije do 19. decembra 2025. godine.







Jezive guzve za izlazak i ulazak u Mirijevo. Prenatrpano zgradama. Ulice iste uzas od guzvi