Vatrogasna stanica i Sedište sektora za vanredne situacije gradiće se u Novom Beogradu
Budući kompleks planira se u blizini tri nova fakulteta – geografskog, biološkog i fakulteta bezbednosti.
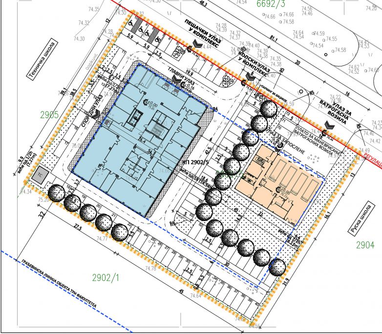
Sekretarijat za urbanizam i građevinske poslove raspisao je javni uvid za urbanistički projekat za izgradnju kompleksa vatrogasne stanice i Sedišta sektora za vanredne situacije u Ulici Đorđa Stanojevića bb u Novom Beogradu na placu površine 4.948 m2. Investitor je Ministarstvo unutrašnjih poslova, a urbanistički i idejni projekat izradio Eko Box Kontejneri iz Beograda.
Budući kompleks biće izgrađen pored Ruske škole i Tehničke škole, dok se u blizini planira izgradnja objekta za tri fakulteta – geografski, biološki i fakultet bezbednosti.

Zgrada sektora za vanredne situacije
Zgrada sektora za vanredne situacije je slobodnostojeći poslovni objekat kancelarijskog tipa spratnosti P+3. U prizemlju se nalazi ulazni hol, pisarnica, toplotna podstanica, sala sa sastanke i tehničke prostorije dok su na spratovima kancelarije. Ukupna bruto kvadratura prostora je 4.082 kvadrata.
Objekat Sedišta SVS je u formi paralelopipeda. Dinamika fasade je postignuta nepravilnim rasporedom prozora, primenom različitih materijala, kolorita i dekorativnih elemenata u vidu ramova oko grupe prozora koji izlaze u prostor 15cm i prave plitke senke na dominantno ravnoj fasadi.
Zgrada sektora za vanredne situacije pravi se od armirano-betonskog skeleta sa armirano-betonskim jezgrom u kojem
je smeštena vertikalna komunikacije i liftovi. Tavanica je puna armirano-betonska ploča, krstasto armirana. Objekat je fundiran na armirano-betonskoj temeljnoj ploči. Krov je ravan, neprohodan.
Vatrogasna stanica
Vatrogasna stanica je slobodnostojeći javni objekat spratnosti P+1 ukupne bruto površine 514 kvadrata. U prizemlju je predviđena garaža za četiri protivpožarna vozila, tehničke prostorije, prostorije za skladištenje i održavanje opreme, prostorije za fizičku pripremu zaposlenih kao i kancelarije. Na spratu se nalaze prostorije za odmor i edukaciju zaposlenih, šipka za brzu komunikaciju ka garaži kao i sanitarni čvor.
Objekat Vatrogasne stanice je jednostavne forme u skladu sa svojom namenom, projektovan takođe u vidu paralelopipeda. Krov je projektovan u vidu plitkog kosog krova nagiba 4,7-8%.
U prizemlju je predviđana garaža za četiri protivpožarna vozila, a na spratu je šipka za brzu komunikaciju ka garaži.
Za razliku od Zgrade sektora za vanredne situacije, vatrogasna stanica pravi se od čelične konstrukcije čiji su glavni noseći elementi čelični primarni i sekundarni nosači. Krovne čelične rešetke postavljene su u osama između zona namenjenih garažiranju vatrogasnih vozila. Temelj je armirano betonski, a međuspratnu konstrukciju čini betonska ploča postavljena preko čeličnog lima oslonjenog na primarne i sekundarne čelične nosače.
Fasadni i unutrašnji zidovi su projektovani kao sendvič paneli obostrano obloženi profilisanim pocinkovanim limom sa PIR ispunom. Prozori su od PVC profila, zastakljeni termopan staklom.
Javni uvid
Prezentacija Urbanističkog projekta traje do 11. oktobra do kada se mogu podneti primedbe.
Kad ste već ovde…




uh
dosta loše :/
Dosta lose kao i gramatika naslova. NBG nije grad vec opstina i stoga je -na Novom Beogradu- a ne u novom beogradu
Eko Box Kontejneri autori urbanističkog projekta?
da l je moguće čoveče??