Vizuelni trik: Plutajuća kuća u Izraelu
Porodična kuća u Tel Avivu odaje snažan utisak na posmatrača jer deluje kao da pluta po vodenoj površini koja je okružuje.
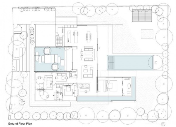
Izraelski arhitekta Pitsou Kedem, koji potpisuje projekat ove vile, akcenat je stavio na suptilnu traniziciju između eksterijera i enterijera. Kuća od 550 kvadratnih metara prožeta je dvorištem tako da ono praktično postaje sastavni deo dnevne sobe. Taj utisak je dodatno pojačan zahvaljujući staklenim zidovima koji preovlađuju na strani koja gleda ka bazenu.
Vodena površina okružuje kuću pa deluje kao da ona pluta.
Vertikalne pregrade od drveta daju prostoru intimu ali i unose dinamiku na fasadi.
Bazen u dvorištu izdeljen je ostrvima od bazaltnog kamena koja takođe deluju kao da plutaju po vodi. Na neka ostrva posađeno je egzotično rastinje koje eksterijer čini kompletnim.
Većina zidova urađena je od stakla tako je kuća uvek okupana svetlošću.
Pogledajte kako izgleda plutajući hotel na okeanu.

















