Enterijer geodetske firme Geo-EN u Srbobranu
Tavanica od opeke je ogoljena čime je naglašen njen značaj u kontekstu arhitektonskog nasleđa.
Arhitekta Nenad Nasifović, koji potpisuje projekat poslovnog prostora geodetske firme Geo-EN u Srbobranu, ponudio je jedno savremeno rešenje u zgradi iz 19. veka.
Lokal je smešten u Poslovno-tržnom centru u Srbobranu, u zgradi koja je sagrađena 1892. godine, ali ne uživa status zaštite. Iako je ta činjenica pružala veću slobodu arhitekti prilikom rešavanja prostora, njegov projekat najviše govori o dobroj komunikaciji savremene arhitekture i graditeljskog nasleđa.

Tavanica lokala je od opeke i u pitanju su bačvasti svodovi, tipični za arhitekturu XIX veka u Austrougarskoj.
Tavanica lokala je od opeke i u pitanju su bačvasti svodovi, tipični za arhitekturu XIX veka u Austrougarskoj. Međutim, ovakav vid tavanice je često bivao skriven. Nasuprot toj praksi, arhitekta je prilikom izrade ovog projekta odabrao da ogoli tavanicu i time naglasi njen značaj u kontekstu arhitektonskog nasleđa.

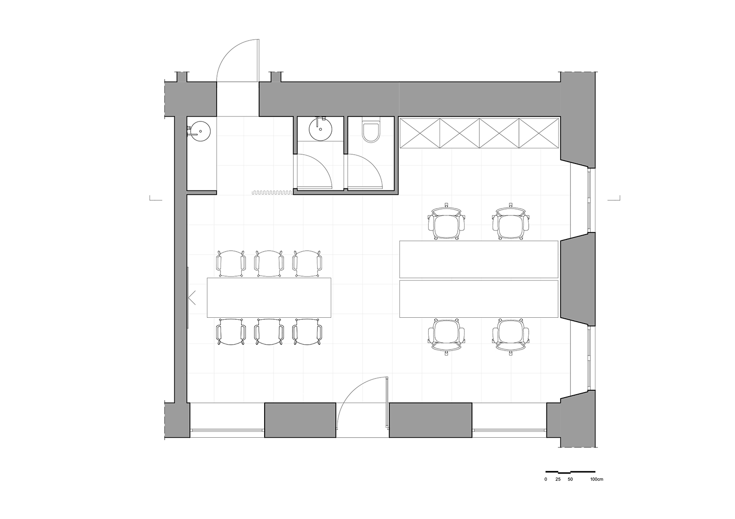
Tri zone u 47 kvadrata
Pri organizaciji prostora, arhitekta Nasifović je želeo da na 47 kvadrata projektuje funkcionalan prostor koji neće remetiti postojeće stanje. Zato je lokal podeljen na tri zone: desno od ulaza smešteni su radni stolovi, dok je levo konferencijski sto namenjen razgovoru sa klijentima. Treći segment čine pomoćne prostorije – kuhinja i toalet. U pitanju je veoma ekonomično rešenje, koje pritom ne odaje takav utisak.

Valer žuto-oker opeke naglašen je toplim tonom drvene teksture stolova.
Iako je funkcionalno rešen prostor jedan od glavnih kvaliteta ovog projekta, ono što ga zaista čini posebnim je način na koji je estetski komponovan. Glavni motiv čini tavanica koja je istaknuta minimalističkim karakterom novog enterijera. Valer žuto-oker opeke naglašen je toplim tonom drvene teksture stolova.

Čitajte još
Pročitajte više o ovom projektu na portalu Dizajn enterijera.

Lepo.
I meni se jako sviđa 😀 Zanimljivo mi je jer se kancelarija nalazi na uglu. To je baš neuobičajno 😀
Odlično!
Predivna tavanica!