Duh kućne atmosfere u novom prostoru kompanije Levi9 u Beogradu
Kako kreirati poslovni prostor koji će posle pandemije privući zaposlene nazad u kancelarije? Evo ovako!
Kako su se dinamika i način rada usled pandemije koronavirusa značajno promenili u velikom broju delatnosti, tako su i zaposleni u Levi9 u poslednjih par godina sve češće radili od svojih domova, dok se pre toga u poznatoj IT kompaniji sa sedištem u Amsterdamu beležio trend konstantnog širenja prostora u potrebi za što većim brojem sedećih mesta.
Međutim, s poboljšanjem epidemiološke situacije, sada je jedan od glavnih ciljeva klijenta bio je da kreira prostor koji će privući zaposlene nazad u prostorije kompanije, ali na takav način da se oni tu prvenstveno osete prijatno, udobno i da se, na neki način, prenese duh kućne atmosfere. Takođe, zahtev je bio da prostor ne izgleda korporativno.
Pročitajte još na Gradnja.rs:

Čajne kuhinje kao mesto okupljanja
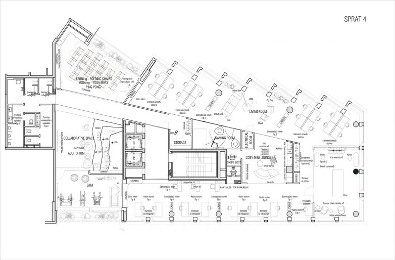
Iz beogradskog studija BAAL Design, koji stoji iza projekta izvedenog u K-Districtu, za Gradnju navode da su želeli da prostor funkcionalno osmisle tako da se na svakom spratu nalazi nekoliko različitih ambijentalnih celina, i da te zone, koje podsećaju na dnevnu sobu, razbijaju blokove radnih stolova.
U jezgru svakog sprata nalazi se i open-plan čajna kuhinja, pošto su dizajneri ispitivanjem navika zaposlenih došli do zaključka da su te kuhinje upravo mesto okupljanja i da ne bi valjalo da one budu pozicionirane negde po obodima sprata, ili negde bez prirodne svetlosti.

Traženi broj konferencijskih sala, zona za opuštanje i propratnih prostorija umnogome je uticao na samu organizaciju spratova.
Takođe, na svakom spratu predviđene su različite konferencijske sale, kao i zvučno izolovani skype boothovi za privatne razgovore i konferencijske pozive.
“Bilo je dosta izazovno programski rešiti svaki sprat, imajući u vidu tražene zahteve klijenta i neobičnu osnovu. Svaki sprat je rešen drugačije shodno potrebama kompanije, a u ovom slučaju traženi broj konferencijskih sala, zona za opuštanje, i propratnih prostorija umnogome je uticao na samu organizaciju spratova” – kažu za naš portal iz BAAL Designa.

Drveni stolovi za toplinu prostora
Ljušturu prostora čine velike staklene površine, betonski plafon, jednobojni itisoni, funkcionalna rasveta i jednostavni zidovi, dok su onda mikroceline oplemenjene tepisima, sofama i foteljama sa ekscentričnim teksturama i materijalima.
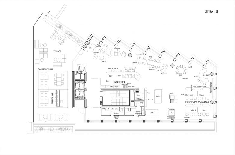
Dizajniran je velik broj drvenih stolova za konferencijske sale i za poslednji sprat, koji služi kao prostor za događaje i kao kantina, što je prema rečima autora nešto što prostoru daje toplinu.
“Na poslednjem spratu kao podnu oblogu koristili smo parket i tu smo malo otišli u smelijem pravcu, u smislu da smo koristili bronzane lustere sa kuglama, sofe i fotelje u jarkim bojama poput narandžaste i ljubičaste, isto tako i zeleno/narandžaste boje zidova, ratan, mermernu ploču na šanku, različite stolice da bi se prostoru unelo dodatne dinamike”, objašnjavaju autori projekta enterijera.

Zajednički prostori su dosta važni i osmišljeni su tako da prvenstveno budu udobni, a onda i da estetski budu prijatni.
Takođe su dizajnirali dosta radnih stolova neobične forme za čije metalne nogice su morali da rade nekoliko prototipova dok nisu došli do idealnog komada.
“Zvučno izolovane sobe su tapacirane u kombinaciji sa zvučnom izolacijom, tako da smo zaista dosta vremena utrošili na izbor adekvatnih materijala za svaki kutak ovog prostora”, navode iz beogradskog studija.
Kako se dosta zadataka i neformalnih sastanaka u okviru ove kompanije odvija timski, zajednički prostori su dosta važni i osmišljeni su tako da prvenstveno budu udobni, a onda i da estetski budu prijatni.

Zen bašta i kreativna soba
Jedna od zajedničkih prostorija je i zen bašta, gde su dizajneri osmislili bazen sa peskom i prave grabulje, kako bi simulirali one zen bašte za opuštanje koje se često nalaze na radnim stolovima u kompanijama.
Pored toga tu je i biblioteka i chaise longue za čitanje i meditiranje, kreativna soba za igranje društvenih igara, slaganje lego kockica, spajanje puzli i dr.
Poslednji sprat mesto je gde zaposleni, kada ga ne koriste kao kantinu, igraju bilijar, pikado ili stoni fudbal, organizuju proslave, te su zbog toga dizajnirani i DJ booth sa disko kuglom.

Sala za jogu se za čas transformiše u salu za stoni tenis ili salu za predavanja zbog rasklopivih stolica koje se nalaze skrivene u plakarima.
Na jednom spratu nalazi se i teretana, kao i multifunkcionalna sala za jogu koja se za čas transformiše u salu za stoni tenis ili salu za predavanja zbog rasklopivih stolica koje se u njoj nalaze skrivene u plakarima.
Naravno, napominju autori, tu je i amfiteatar za predavanja ili projekcije filmova.
Radni prostori su organizovani u blokovima od nekoliko radnih stolova, ali je ideja bila da to ne bude neprekidni niz kao u korporativnim kompanijama, nego da se posle svaka, u proseku dva bloka, desi prekid u vidu jedne zone za opuštanje koja se sastoji od udobne sofe i fotelja.
„Na nekom spratu smo radne blokove prekinuli krevetom nasred sprata, što je zaposlenima posebno interesantno“, navode dizajneri za portal Gradnja.

„Poslednja puzla“ u procesu izrade
Dominantan detalj u čitavom enterijeru biće skulpturalno metalno spiralno stepenište, koje je „poslednja puzla“ da bi se ovaj projekat kompletirao i trenutno je u procesu izrade.
Ono pravi vezu između dva sprata usred prostora za razliku od svih ostalih spratova. Takođe se u toj zoni nalazi mural sa tematikom kompanije i celokupno će taj ambijent biti najdominantniji.
„Nismo želeli da izgubimo prozračnost prostora, te su konferencijske sale pregrađivane staklom, sa fleksibilnošću navlačenja drapera koji su pored toga što su vizuelna barijera ujedno i zvučna izolacija. Pored toga ostali zidovi i plafoni su zvučno izolovani radi optimalnog komfora korišćenja tih prostorija“ – kažu iz BAAL Designa.

Tehničku dokumentaciju morali smo da šaljemo samo dan nakon ulaska u sam projekat.
Kako dalje objašnjavaju dizajneri, najveći izazov je bio to što su praktično simultano ušli i u izvođenje i u projektovanje. Bilo je potrebno iskoordinisati sve radove i aktere u tolikom projektu, pritom razmišljajući o dizajnu i tehničkim stvarima.
„Izazov je bio i da se uklopimo u tekuće rokove koji su bili vrlo kratki, te smo tehničku dokumentaciju morali da šaljemo samo dan nakon ulaska u sam projekat i donosimo važne odluke u hodu na dnevnom nivou“, kažu iz studija za naš portal.
Dizajneri svakodnevno na gradilištu
Kako bi se inicijalni projekat zgrade prilagodio vrednostima BAAL Designa i zahtevima klijenta, to je iziskivalo velike promene kao što su organizacija i način korišćenja prostora, što je sa sobom donosilo i izmene pozicija pregrada, plafona, kao i kompletne infrastrukture.
„Kasnije je naše svakodnevno prisustvo bilo neophodno na gradilištu kako bismo rešavali određene prepreke u samom izvođenju koje smo uspešno prevazilazili, a imali smo i naš radni kontejnter na gradilištu pa je deo biroa cele dane provodio na lokaciji“, navode dizajneri.

Istinski smo ispunjeni i srećni zbog efekta i utisaka koje finalno izvedeno stanje ostavlja na sve koji u ovim prostorijama borave.
Dodaju da su klijenti izrazito zadovoljni postignutim rezultatom koji je po mnogima čak i nadmašio očekivanja, a prvenstveno je to zbog zadovoljstva zaposlenih koje oni osećaju dok borave u ovom prostoru.
„Kako i dalje često boravimo u prostoru, kako zbog odabira umetničkih dela koja će dodatno oplemeniti prostor – u saradnji sa nedavno otvorenom Dots galerijom koja se nalazi u istoj zgradi – tako i zbog dekorisanja prostora, osluškujemo reakcije zaposlenih, i istinski smo ispunjeni i srećni zbog efekta i utisaka koje finalno izvedeno stanje ostavlja na sve koje u ovim prostorijama borave“, kažu na kraju dizajneri za portal Gradnja.
Grafički prilozi
Foto-galerija
Faktografija
Sedište IT kompanije Levi9
K-District, Beograd
cca 2.500 m2
2021/2022.
2021/2022.








Ovo ima duh kucne atmosfere samo za nekog ko je odrastao u bunkeru xD Plafoni su posebno uzasni.