Kuća sa fasadom od opeke iz stare nemačke štale
Reciklirani materijal dobio je drugi život, te detalji fasade sada ističu zone kuće u koju je umetnut modul koji sadrži kupatilo, plakare i spavaće sobe.
Rubne delove poljskog grada Poznanja čini kombinacija bujnih šuma, oranica sa poljoprivrednim zgradama i brzorastućih jednoporodičnih stambenih naselja.
Kuća od 270 m2 za koju projekat potpisuje firma Wrzeszcz Architekci izgrađena je na mestu gde se spajaju ove tri zone, na lokaciji u čijoj se okolini nalaze stare, istorijske nemačke štale, koje su i dalje karakteristični elementi okolnog pejzaža.
U pitanju su jednostavne zgrade od opeke sa uravnoteženim proporcijama i preciznim detaljima koje su zaista dobro ostarele, te se i dalje upadljivo ističu među novoizgrađenim objektima u okolini.
Pročitajte još na Gradnja.rs:
- Opeke sa otvorima za pčele obavezne u novim zgradama u Brajtonu
- Beli kedar, opeka i hrast za porodični dom jednog arhitekte

Demontiranje napuštenog objekta
Kako za ArchDaily navode arhitekti iz Poznanja, tokom procesa projektovanja rodila se ideja da ne samo da treba biti inspirisan dominantnom okolnom arhitekturom, već i pokušati da se ona iskoristi direktno.
Plan je, dodaju, bio da se kupi i demontira stara napuštena štala, pronađena u obližnjem selu, i da se na parceli klijenta izgradi nova kuća od postojećeg građevinskog materijala.
“Ovo je postala ključna ideja koja je donela značajnu promenu u pristupu dizajnu u oblasti arhitekture i održivosti”, kažu iz biroa Wrzeszcz Architekci.

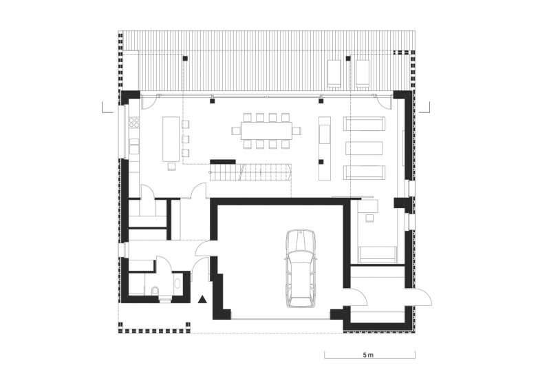
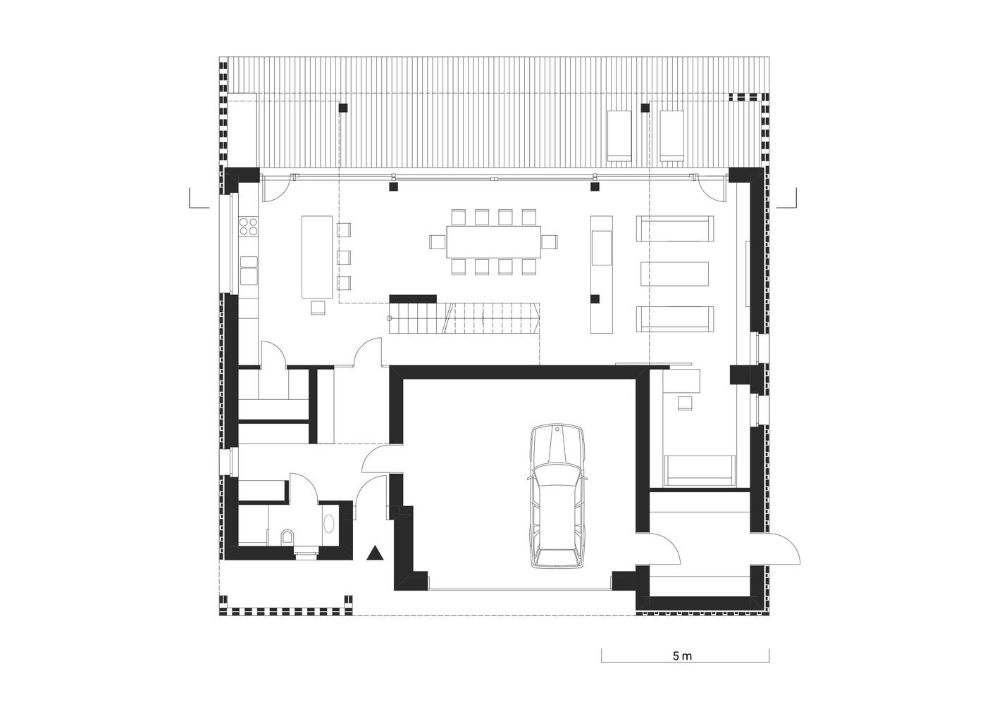
Prizemlje čini zajednički prostor koji obuhvata kuhinju, trpezariju i dnevni boravak.
Blizina šume je ogromna prednost uske parcele na kojoj je kuća izgrađena, jer vas već prilikom ulaska očara prelep pogled na okolno zelenilo.
Prizemlje čini zajednički prostor koji obuhvata kuhinju, trpezariju i dnevni boravak, a ima veliki, dugački stakleni otvor sa pogledom na šumu, kao i terasu iste dužine kao prozor.

Garaža u sredini kuće
Ovaj utisak pojačavaju visoki prostori kuhinje i dnevnog boravka koji dostižu pet metara, dok je na nivou prvog sprata umetnut modul koji sadrži kupatilo, plakare i spavaće sobe sa prekrasnim pogledom na šumu.
Ovaj „levitirajući“ modul stvara suspenziju iznad prizemlja, štiteći tako terasu od padavina i dajući joj ugodnu hladovinu tokom sunčanih meseci.
Iako se možda čini kao neuobičajeno rešenje da se garaža postavi u sredinu kuće, arhitekti objašnjavaju da je na taj način direktno povezana garaža sa ulaznim hodnikom, vešernicom, kotlarnicom i ostavom. Iznad garaže se nalaze dečije sobe i dodatno potkrovlje.

Fasada se sastoji od četiri vrste opečnih veza sa različitim nivoima oblikovanja i transparentnosti.
Za izradu nove fasade korišćena je opeka iz stare štale, te ovaj istorijski materijal daje mestu jedinstvenu atmosferu i osećaj.
Fasada se sastoji od četiri vrste opečnih veza sa različitim nivoima oblikovanja i transparentnosti. Detalji fasade ističu zone kuće. Otvoreni zidovi od opeke propuštaju poglede i povezuju ih sa okolinom.

Drugi život reciklirane opeke
“Ovakvo uređenje fasade predstavljalo je veliki izazov za zidare koji su radili na gradilištu, jer su tehniku morali prilagode starim građevinskim zanatima”, navode autori.
Kako dodaju, jednostavna forma kuće čini savršenu pozadinu za izvajanu fasadu, naglašavajući istovremeno njenu lepotu.
„Reciklirani materijal od opeke iz napuštene zgrade dobio je drugi život i stvorio dodatne arhitektonske vrednosti za novu kuću”, ističu na kraju arhitekti iz Poznanja.

Grafički prilozi
Foto-galerija

Fotografije: Przemyslaw Turlej






Uzasna kuca, toliko izgubljenog prostora, plafoni visoki kao da zive na toploj floridi…
užas …
Prostrano, svetlo, jednostavno, a rustično…baš lepo 🙂
pristojno lepo i sa ukusom