Porodična kuća u Sloveniji koja stvara sopstveni urbanizam
Krov ove kuće se materijalom povezuje sa fasadama i svojom raznovrsnošću formira svojevrsnu veštačku topografiju, koja podseća na planinske vrhove.
U jednom krajnje monotonom naselju u Sloveniji, u kom preovlađuju klasične, jedna drugoj slične porodične kuće, stoji i Kuća Trzin – objekat od 335 kvadrata koji postavlja svoja pravila i stvara sopstveni urbanizam, a time i željeni životni prostor za jednu porodicu.
Rasterećena monolitnost objekta, sa podelom zapremine na manje delove, ograničava poglede na i iz susednih kuća. Uprkos svojoj „rascepkanosti“, kuća Trzin čiji projekat potpisuje 3biro arhitekti funkcioniše kao jedinstvena, zaokružena celina, a njena ne previše istaknuta različitost nudi promišljen dizajn ambijenta, koji korisnicima pruža prijatan i kvalitetan boravak.
Pročitajte još na Gradnja.rs:
- Kuća u Šapcu koja pruža maksimalnu funkcionalnost i komfor
- Kuća za odmor projektovana u skladu s dečjim potrebama

Zelene tampon zone
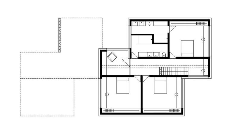
Modularnost celina omogućava slobodno raspoređivanje osnove sa pojedinačnim kubusima organizovanim po logici programskih celina.
U prizemlju su smešteni dnevni i trpezarijski zajednički prostori porodice, dok se na spratu nalaze privatne prostorije i spavaće sobe .
U prazninama između pojedinačnih kubusa, kuća stvara atrijume i terase koje služe kao zelene tampon-zone između enterijera i eksterijera i istovremeno obezbeđuju dodatno osvetljenje prostorija.

Krov se materijalom povezuje sa fasadama i svojom raznovrsnošću formira veštačku topografiju.
Eksterijer kuće karakteriše fleksibilan krov, koji se vezuje za dvovodne krovove okolnih kuća, uzimajući dvovodni krov kao jedan od glavnih dizajnerskih elemenata arhitekture.
Pojedinačne kocke imaju različite visine, što stvara neobične krovne ravni, koji jasno prate konstrukcijsku logiku zgrade.
Krov se materijalom povezuje sa vertikalnim fasadama i svojom raznovrsnošću formira svojevrsnu veštačku topografiju, koja podseća na planinske vrhove.

Impulsivan pristup dizajnu
Ljubljanska firma „3biro“ je relativno mala projektna kancelarija, u kojoj se rad odvija dinamično, sve vreme u kreativnom neredu, navode za naš portal autori ovog projekta.
Dizajnu, kako dodaju, pristupaju impulsivno, istražujući i upoređujući različite varijante mogućih rešenja, drže se principa objektivnosti i prilagođavanja. U projektovanju i izgradnji porodičnih kuća u različitim oblicima, promovišu osnovne vrednosti arhitekture, kao što su sklad, skromnost i efikasnost, pridržavajući se principa „manje je više“.
U svom radu, kažu, nastoje da obezbede što veću individualnost objekata u obliku koji doprinosi uređenosti celog naselja i pejzaža. Uz svaku kuću preispituju njenu okolinu, usklađuju je sa njom i obogaćuju je uzimajući u obzir lokalne karakteristike.

Upravo ta iskrenost u odnosu na materijal daje arhitekturi jednostavan i razumljiv jezik.
Rešenje, kako kažu, nikad nije unapred dato, svaka zgrada je originalna i jedinstvena jer je rezultat niza prilagođavanja uslovima lokacije, funkcionalnim zahtevima, mogućnostima implementacije i zahtevima kupaca.
Vidljivost adaptirane arhitekture posebno je podržana konstrukcijom u drvetu, gde je u poređenju sa drugim materijalima neophodno poštovati svojstva materijala, što diktira logiku konstrukcije i dizajna i posledično formira smisleno uređenu arhitekturu.
Izbor sistema građenja se u velikoj meri poklapa sa osnovnim idejnim rešenjem i, slično tradicionalnom načinu gradnje, definiše i povezuje sve elemente u skladan prostorni oblik. Upravo ta iskrenost u odnosu na materijal daje arhitekturi jednostavan i razumljiv jezik, kažu ljubljanski arhitekti.
„Kuće iz 3biro“ su, napominju autori, rezultat konstruktivne i konceptualne jasnoće koja prevazilazi svakodnevni izraz klasičnog programa porodičnih kuća. Funkcionalni kružne veze, ujednačenih poteza, simetrija i pogleda obeleženi su inspiracijom vernakularne arhitekture i transformacijom tradicionalnih elemenata.
Foto-galerija
Grafički prilozi
Faktografija
- Naziv objekta: Enodružinska hiša Trzin
- Mesto: Trzin
- Investitor: privatno lice
- Autori projekta: 3biro arhitekti
- Godina projektovanja: 2016.
- Godina izgradnje: 2019.
- Površina parcele: 511 m2
- Površina objekta: 335 m2
- Spratnost: K+P+1
- Autor fotografija: Miran Kambič
- Izvođač: Tesarstvo Kaltak
Izabrali smo za vas…










Izuzetno dobro.
sloboda i život to je slovenija! čoveče sad vam je jasno gde je slovenija a gde srbija, pa pogledajte samo kako su jednostavne i tačno rešene osnove i komunikacija objekta sa okolinom i uporedite sa ovom šabačkom gluposti od kuće i sve će vam biti jasno gde je srbistan!
ljubav na prvi pogled