Kamen po kamen – kuća u Bugarskoj!
Ovo neobična vila u susednoj državi na najbolji način koristi topografiju terena.
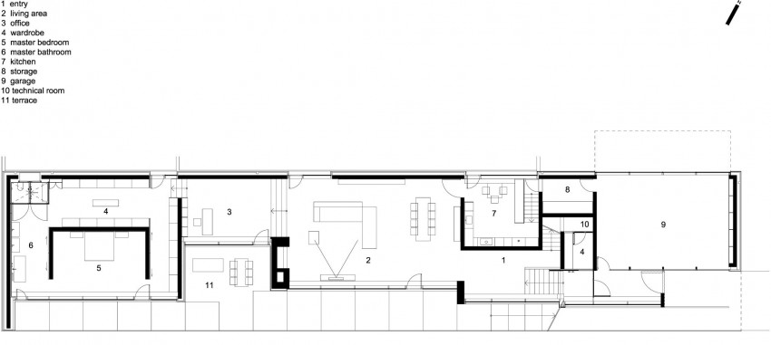
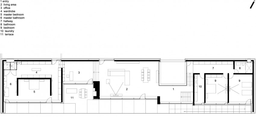
Arhitektonski biro I/O Architects dobio je zadatak da isprojektuje novu porodičnu kuću u bugarskom mestu Targovište koja bi ujedno služila i kao kancelarija. Dobijeno rešenje uoblikovano je u masivnu horizontalnu kamenu strukturu smeštenu na lokalitetu koji svojom topografijom podseća na antičke teatre. Tako je i kuća dobila neobičan, izdužen oblik.
Kameni blokovi različitih tonaliteta slagani su tako da fasada izgleda što prirodnije.
Kuća je orijentisana ka jugu kako bi tokom zime prostorije bile osunčane. Međutim, u odnosu na pad teren ona je postavljena dijagonalno što je prouzrokovalo zanimljive arhitektonske promene u vertikalnom smislu: visina tavanice je promenljiva pa su tako one sobe koji zahtevaju veću privatnost niže, dok one koji su otvorene za goste (dnevna soba, kancelarija…) imaju duplu visinu, piše Freshome.
Konfiguracija terena definisala je i raspored prostorija. Tako su u istočnom bloku, kojeg karakteriše dupla visina, smešteni garaža za tri vozila dok se iznad njih nalaze dečije sobe.
U drugom bloku kuće, nalazi se dnevna soba, kancelarija, kuhinja, trpezarija i spavaća soba sa kupatilom.
Monolitan izgled kuće postignut je korišćenjem lokalnog kamena na fasadi. Iako se stiče utisak da su kameni blokovi različitih tonaliteta nasumično slagani, zapravo sve je ovo pažljivo osmišljeno kako bi se postigao prirodniji izgled kuće.
Kuća je napredna i u smislu energetske efikasnosti. Pored povoljne orijentacije prostorija, kuća ima i toplotnu pumpu zahvaljujući kojoj su računi za utrošak energije znatno niži nego kod drugih kuća slične kvadrature.


Foto: I/O Architects








