Jedna od poslednjih: Kompaktna mala stambena zgrada u Kragujevcu
Ovo je jedan od poslednjih primera izgradnje stambenih zgrada manje razmere u ovom delu grada na Lepenici jer se plan drastično menja.
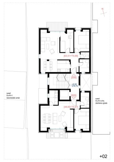
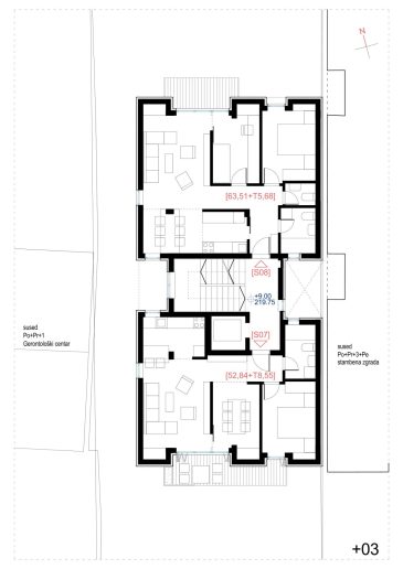
Stambena zgrada KM88 Acero Rosso još jedno je arhitektonsko delo beogradskog URED studija realizovano u Kragujevcu, a ovog puta radi se o objektu bruto površine od 788 kvadratnih metara i spratnosti P+3+Pe.
Završen 2024. godine za investitora Pepito invest d.o.o. iz Kragujevca, ovaj projekat se svojim kvalitetima izborio za učešće na izložbi 46. Salona arhitekture, koja se u Muzeju primenjene umetnosti može pogledati do 28. aprila.
Pročitajte još na Gradnja.rs:

Definisane dve varijante rešenja
Stambena zgrada u Ulici Kralja Milana broj 88 u Kragujevcu nalazi se na granici zone stambenih objekata u nizu i zone javnih namena u okviru koje se nalazi parcela Gerontološkog centra čime je uslovljeno formiranje objekta u prekinutom nizu.
Kako iz URED studija objašnjavaju za Gradnju, urbanističkom analizom pravila građenja definisane su dve varijante rešenja:
Varijanta 1: Koristeći se parametrima za prekinuti niz objekata porodičnog stanovanja, dobija se povoljnije rešenje stambenog objekta kompaktnijeg oblika sa glavnim orijentacijama prema ulici i sopstvenom dvorištu, sa formiranim ulazom na glavnoj fasadi objekta.
Varijanta 2: Koristeći se parametrima za prekinuti niz višeporodičnog stanovanja, udaljenje od Gerontološkog centra bi moralo biti mnogo veće, čime se dobija objekat veoma uskog fronta sa glavnim orijentacijama prema objektu Gerontološkog centra i njegovom dvorištu.

Varijanta 1 je prihvaćena kao povoljnije rešenje i za stanare buduće zgrade i za korisnike Gerontološkog centra.
Varijanta 1 je prihvaćena kao povoljnije rešenje i za stanare buduće zgrade i za korisnike gerontološkog centra.
„Zahvaljujući kompaktnom obliku, projektovani su racionalni stanovi sa sekundarnim otvorima na bočnoj fasadi i prema svetlarnicima, čime se dobija dobra osvetljenost i provetrenost“, navode arhitekte i dodaju:
„Dimenzije i proporcije stanova omogućili su skalabilnost stambene strukture i mogućnost lakog formiranja dodatne sobe u okviru iste zadate kvadrature“.

Efekat rustičnih vertikalnih kanelura
Širina fronta iskorišćena je da se na glavnoj fasadi isprojektuje ulaz u objekat, odvojen od kolskog prolaza, u materijalizaciji od klinker opekarskih elemenata na ravnom slogu koji se uvlači u unutrašnji prostor.
Plafonima u boji terakote i projektovanim osvetljenjem data je karakterna crta ulaznoj zoni koja je važna za percipirani kvalitet stanovanja, objašnjavaju arhitekte.
„Fasada glavnog korpusa materijalizovana je tehnikom maltera obrađenog češljanjem kojim se postiže efekat rustičnih vertikalnih kanelura sa uglađenim prekidima u nivou međuspratne konstrukcije. Utiskivanjem fasadnih otvora u ravan fasade dobijaju se proširenja terasa i percipirana masivnost fasadnih zidova“, kažu iz URED-a.


Krovna terasa je zamišljena kao bezbedan prostor udaljen od ulice, koji bi imao potencijal letnje bašte za organizovanje dečijih rođendana, proslava…
Integralno projektovane žardinjere i ograda u svojim delovima stvaraju zone veće privatnosti i nasuprot masivnosti fasadnih zidova daju efekat prefinjenosti i izraženog kolorita, dok se istovremeno diskretno uklapa u kontekst.
„Krovna terasa je zamišljena kao bezbedan prostor udaljen od ulice, koji bi imao potencijal letnje bašte za organizovanje dečijih rođendana, proslava i drugih društvenih potreba stanara, kao ekstenzija prostora kompaktnog stana i kompenzacija za nedostatak kvalitetnije organizovanog dvorišta zbog uslovljenog broja parking mesta“, kažu autori.

Jedan od poslednjih primera svoje vrste
Beogradske arhitekte na kraju podsećaju da, prema poslednjim izmenama planskih dokumenata u Kragujevcu, na parcelama manjim od 6 ari više neće biti moguće projektovati stambene zgrade ove razmere, već se podstiče gradnja porodičnih kuća ili stambenih zgrada sa više od 18 do 20 stanova i mnogo veće spratnosti.
„U tom smislu, ovo je jedan od poslednjih primera izgradnje stambenih zgrada manje razmere i ostvarivanja komfora koji pruža stambena zajednica sa manje od deset stambenih jedinica“, zaključuju za Gradnju iz URED studija.
View this post on Instagram
Grafički prilozi












Foto-galerija




















Faktografija
Stambena zgrada KM88 Acero Rosso
Ulica Kralja Milana IV 88, Kragujevac
9 stambenih jedinica
Pepito invest doo, Kragujevac
URED studio, Beograd
Gradmil doo, Kragujevac
788 m² bruto
izgrađen 2024. godine
Mladen Jovanović

odlično rešene osnove, izuzetno zanimljivo rešenje fasada, kvalitetno urađeno, sve kako treba, svaka čast!
skroz dobro!!!