Zlatni sjaj ekonomičnosti: Tajna izgradnje zgrade K8 u Kragujevcu
Specifičnost ovog projekta bila je u tome da je gradnja zbog lokacije morala biti racionalna kako bi investicija bila isplativa. Evo kako su arhitekte u tome uspele.
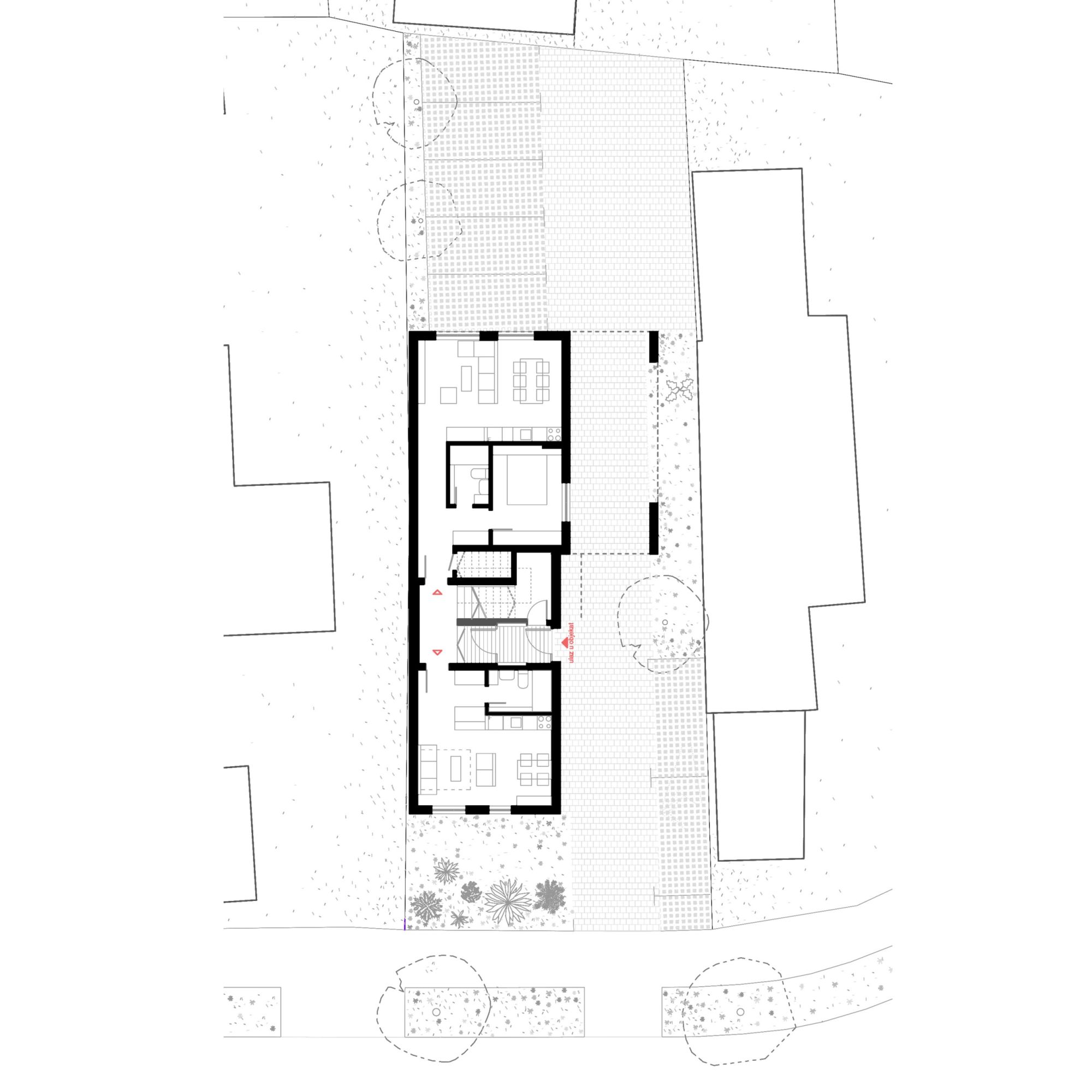
Idejno začeta 2018. godine u beogradskom URED Studiju i završena dve godine kasnije, stambena zgrada u Kopaoničkoj 8 u Kragujevcu pripada delu gradskog bloka u kojem se uglavnom nalaze porodične kuće, a u istom okruženju gde se sa naspramne strane ulice nalaze stambene višespratnice.
Upravo je specifičnost lokacije bila najveći izazov za arhitekte. Naime, prodajna cena nekretnina ovde nije visoka kao u strogom centru grada, pa je gradnja morala biti racionalna kako bi bila isplativa.
„U tim ograničenjima, isprojektovali smo objekat koji nema podzemnu garažu, već je svo parkiranje rešeno na parceli iza zgrade, a upotrebljeni materijali su standardni sa minimalnim utroškom skuplje fasade od alubonda“, navodi arhitekta Nikola Milanović.
Pročitajte još na Gradnja.rs:

Isprojektovali smo objekat koji nema podzemnu garažu, već je svo parkiranje rešeno na parceli iza zgrade.
Autor projekta ističe da je pozicija parcele vrlo specifična, jer se nalazi na mestu gde se lomi ulica i pravi tup ugao, što je omogućilo vrlo kvalitetnu bočnu orijentaciju prostorija i terasa jer faktički gledaju niz ulicu.
„Iskoristili smo tu značajnu mogućnost orijentacije s obzirom da se preko puta nalazi visoka stambena lamela koja potencijalno ugrožava privatnost lokacije“, kaže Milanović.
Suptilno se provlači tema upotreba „zlatne“ boje na prozorima alubond umecima na fasadi, ogradama i izabranim fasadnim površinama.
Zgrada K8 u Kragujevcu podeljena je u masama na manje volumene koji su primereniji svom okruženju.
Istaknuta pozicija parcele je omogućila otvaranje objekta prema čistoj južnoj orijentaciji i duž pružanja ulice, izbegavajući na taj način direktno sučeljavanje sa višespratnicom preko puta, koja je toliko blizu da značajan period godine baca senku na uličnu fasadu objekta K8.
Međutim, uvlačenjem terasa u odnosu na građevinsku regulaciju, ostvarena je povoljnija osunčanost i privatnost.
Zlatno, a racionalno
„Objekat nema suvišnih detalja, već se suptilno provlači tema upotrebe ‘zlatne’ boje na prozorima alubond umecima na fasadi, ogradama i izabranim fasadnim površinama. Dvorišna fasada je potpuno obojena u zlatnu boju, u kontrastu sa uličnom fasadom, i time se otvara nova dimenzija umekšane pojavnosti objekta“, objašnjavaju iz URED Studija i dodaju:
„Ograda je posebno projektovana tako da iz određenih uglova stvara pojačan osećaj privatnosti, dok gledano iznutra prema spolja deluje prozračno. Obojena u zlatnu boju, zanatski obrađena ograda odaje utisak filigranskog rada“.

Zajedničkim radom do uspeha
Stambena zgrada K8 je bila prva investicija u nekretnine ovog klijenta pa je zadatak bio da se postigne reprezentativan rezultat u pojavnosti zgrade i kvalitetu gradnje.
„Na kvalitet gradnje je posebno uticao dobar odnos i dugogodišnje lično prijateljstvo investitora sa direktorom izvođačke firme Gradmil, koja je ujedno i zaslužna za nastanak URED Studija jer je u pitanju porodična izvođačka firma iz koje je proizašla projektantska grana biznisa“ – kaže Milanović, te dodaje:
„U tom smislu investitor je imao potpuno poverenje u izbor projektanta i izvođača, i zajednički smo kreirali projektni zadatak u odnosu na studiju isplativosti lokacije“.
A da je projekat uspeo govori i činjenica da su arhitekte iz Ured studija za ovu zgradu u Kragujevcu osvojile BigSEE Architecture Award 2023. Projekat je takođe bio izložen i na 43. Salonu arhitekture.
Grafički prilozi
Foto-galerija


















Faktografija
K8 – stambena zgrada
URED arhitektonski studio
Nikola Milanović
Ivana Lovrinčević, Hristina Stojanović, Fedor Jurić
Kopaonička ulica 8, Kragujevac
7 stanova
2018–2019.
2019–2020.
580 m²
Pr+2+Pe
RS Gradnja d.o.o. Kragujevac
Gradmil d.o.o. Kragujevac
Relja Ivanić i URED Studio










Ograda je prava za tursko ili kinesko trziste!
Volim ove priče kada se za malo može puno.
Koliko kosta kvadrat ?!
Samo da podsetim Kragujevčane da im u ovako malim ulicama kanalizacija nije predviđena za stambene zgrade, jer na mestu jednog domaćinstva niče vam zgrada od 10+. U Jadranskoj ulici na mestu 6 kuća niklo je 5 zgrada sa preko 80 stanova. Pismenom dosta. Sve zgrade jedna do druge, nema igrslišta, zrlene površine, nedovoljno parking mesta, ksnalizacija umesto 6 primaće 80 domaćinstva. Biće veselo.