Kuća s kuhinjom u nekadašnjem automehaničarskom kanalu
Projekat pretvaranja stare garaže u stambeni prostor ispao je potpuno neočekivano.
Holandska dizajnerska firma Doepel Strijkers i arhitektonski studio LEX Architects zajedno su smislili kako da nekadašnju garažu Hitne pomoći pretvore u funkcionalan i kreativan stambeni prostor.
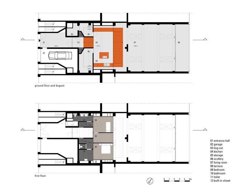
Odlučeno je da centralni deo kuće zauzme prostrana narandžasta kuhinja, preko čijih jednih stepenica se ulazi u kuću, a preko drugih u prostor dnevne sobe.
Kako je celokupan prostor nekadašnje garaže imao veliku spratnu visinu, ona je iskorišćena da se napravi još jedan sprat. Nad zonom prizemlja, u njenom centralnom delu, konstruisani su kubusi od polikarbonata, koji kao da lebde u prostoru. U ovim kutijama smeštene su spavaće sobe i kupatilo, piše Dwell.
Širokim stepeništem iz kuhinje dolazi se u prostrani dnevni boravak. Nekoliko stepenika pretvoreno je u mesta za sedenje čime je oko centralnog dela kuće – kuhinje – stvoren prostor za društvene aktivnosti.
Pogledajte kako izgleda kuća čiji je glavni ukras narandžasto stepenište.





