Lake 11 u Budimpešti: Održivi stambeni kompleks na obali jezera
Kompleks sa geotermalnim sondama do 150 metara dubine, sistemom za zadržavanje kišnice i zelenim krovovima pokazuje kako održiva tehnologija oblikuje novu stambenu tipologiju u Budimpešti.
Francuski arhitektonski studio Coldefy u saradnji sa mađarskom firmom Demeter Design Studió (DDS) završio je nedavno prvu fazu izgradnje stambenih objekata u Lake 11 Home & Park, velikom novom rezidencijalnom projektu smeštenom pored jezera na živopisnom rubu 11. okruga u Budimpešti.
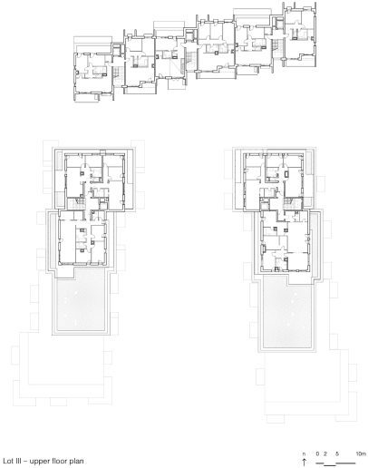
Coldefy i DDS su izabrani putem konkursa za projektovanje 175 kuća na tri parcele u okviru master plana od osam hektara. Projekat pruža kombinaciju u rasponu jednosobnih do četvorosobnih stanova, raspoređenih u tri tipologije dizajnirane da odgovore na topografiju i pejzaž lokacije.
Pročitajte još na Gradnja.rs:

Održiva alternativa jednoporodičnom stanovanju
Na severu lokacije, kuće u nizu nalaze se na najvišoj nadmorskoj visini pružajući pogled na prirodni pejzaž. Kuće u parku, na istočnom i zapadnom delu lokacije, definišu granicu stambenog parkovskog pejzaža u centru, dok se kuće na jezeru nalaze na vodi koja obeležava južnu ivicu lokacije.
Raznolikost tipova stanova i fleksibilnih rasporeda podržavaju evoluirajuće stambene potrebe, nudeći održivu alternativu jednoporodičnom stanovanju. Cilj projekta je da obezbedi fleksibilne domove koji će podržati promenljive obrasce poslovnog i privatnog života.
„Utelovljujući osnovni etos kompanije Coldefy da preplitanje prirode i arhitekture stvara poboljšano blagostanje i kvalitet života, svaki stan ima privatni spoljašnji prostor u obliku balkona ili spoljašnje terase“ – navode iz studija sa kancelarijama u Lilu, Parizu i Šangaju.
Sonde bušene u zemlju do dubine od 150 metara funkcionišu kao ciklični kanal za toplotu tokom cele godine.
Pored toga, dizajn naglašava prirodno svetlo i poglede na okolno jezero i pejzaž, dok minimizuje direktne poglede na susedne zgrade kako bi se osigurala privatnost stanara. Svaka zgrada je projektovana da bude specifična za lokaciju, sa stepenasto uvučenim volumenima koji reaguju na teren, minimizirajući gustinu naselja.
Sa održivošću kao ključnim prioritetom za investitora Atenor, projekat sadrži inovativni otvoreni geotermalni sistem, zadržavanje kišnice i zelene krovove kako bi se osiguralo grejanje i hlađenje bez fosilnih goriva, smanjene emisije i dugoročna energetska efikasnost.
Sonde bušene u zemlju do dubine od 150 metara funkcionišu kao ciklični kanal za toplotu tokom cele godine. Zimi se toplota iz zemlje dovodi do stanova kroz površine koje emituju toplotu, dok višak toplote generisane leti zgrade apsorbuju i vraćaju u tlo.

U okviru master plana, cilj dizajna je da neguje osećaj zajedništva kroz promišljene prelaze između javnih, polujavnih i privatnih područja
Terase, koridori biodiverziteta sa lokalnim cvetnim biljkama koje podstiču oprašivanje i porozno popločavanje su sve ključne karakteristike uređenja pejzaža u kompleksu Lake 11. Veliki, razigran zajednički prostor za sedenje i dodatni šareni baštenski nameštaj koji se pojavljuje u celom kompleksu, podstiču stanovnike da provode vreme napolju.
„U okviru master plana koji čuva prirodni karakter lokacije i obezbeđuje zajedničke zelene površine, kao i pešačke i biciklističke staze, cilj dizajna je da neguje osećaj zajedništva kroz promišljene prelaze između javnih, polujavnih i privatnih područja“ – objašnjavaju iz Coldefyja.

Kuće na jezeru obložene su vlaknasto-cementnim panelima, dopunjenim aluminijumskim detaljima i izloženim betonskim elementima za čist, savremen izgled.
Dizajn Coldefyja i DDS-a uvodi različite materijale, oblike zgrada i detalje fasade kako bi obim ovog velikog projekta varirao. Projekat usvaja jedinstvenu strategiju mineralnog oblaganja, naglašavajući bogatstvo materijala i harmoniju sa prirodnim okruženjem.
Fasade kuća u nizu i u parku imaju različite tonove teksturirane opeke, stvarajući vizuelnu toplinu i osećaj uzemljene trajnosti, dok su kuće na jezeru obložene vlaknasto-cementnim panelima, dopunjenim aluminijumskim detaljima i izloženim betonskim elementima za čist, savremen izgled.
„Raznovrsnost materijala na lokaciji doprinosi smanjenju razmera naselja i daje svakom prostoru poseban identitet. Svaki stan ima svoju dodatnu jedinicu za skladištenje u podrumu, a postoje i zatvoreni prostori za zajedničko parkiranje bicikala i bagija“, navode iz Coldefyja.

Blagodeti prirode nadomak centra grada
Po završetku, kompleks Lake 11 Home & Park će ponuditi ukupno 897 novih domova, otvarajući novo poglavlje stambenih tipologija u Budimpešti i predstavljajući zajednicu unutar grada gde stanovnici mogu da iskuse blagodeti prirodnog pejzaža na kratkoj udaljenosti od centra Budimpešte.
Zoltan Nevil, partner u kompaniji Coldefy, rekao je: „Stanovanje je jedan od najznačajnijih načina na koji se arhitektura povezuje sa gradskim životom. Kako se gradovi suočavaju sa sve većim pritiskom da se prilagode, Lake 11 istražuje kako stanovanje može ponuditi i gustinu i prostranost, povezujući stanovnike sa prirodom i jedne sa drugima“.
„Pokrenut tokom lockdowna zbog pandemije kovida, projekat preispituje višestruku ulogu doma – ne samo kao privatnog prostora, već kao dela zajedničkog okruženja. Dizajn je oblikovan kroz blisku saradnju međunarodnih i lokalnih timova, sa ciljem da se uravnoteže inovacije, kvalitet života i ekološka odgovornost,“ dodao je na kraju Nevil.
Grafički prilozi















