Foster u komšiluku: Sedište MOL-a vidi se iz svakog kraja Budimpešte
Zgrada od 143 metra dizajnirana je tako da najbolje iskoristi prirodnu svetlost, sveži vazduh i sjajan pogled na BudaPart – četvrt mađarske prestonice koja se najdinamičnije razvija.
MOL Campus, novo sedište naftnog giganta MOL Group, druge najveće kompanije u centralnoj i istočnoj Evropi, zvanično je otvoreno krajem prošle nedelje u glavnom gradu Mađarske.
Smeštena u BudaPartu i dizajnirana od strane Foster + Partners u saradnji sa lokalnim Finta Studiom, zgrada se smatra svetionikom moderne arhitekture.
Pročitajte još na Gradnja.rs:
- Rapsodija u parku: Otvorena zgrada Etnografskog muzeja u Budimpešti
- Nova najviša zgrada u EU je Fosterova kula od 310 metara

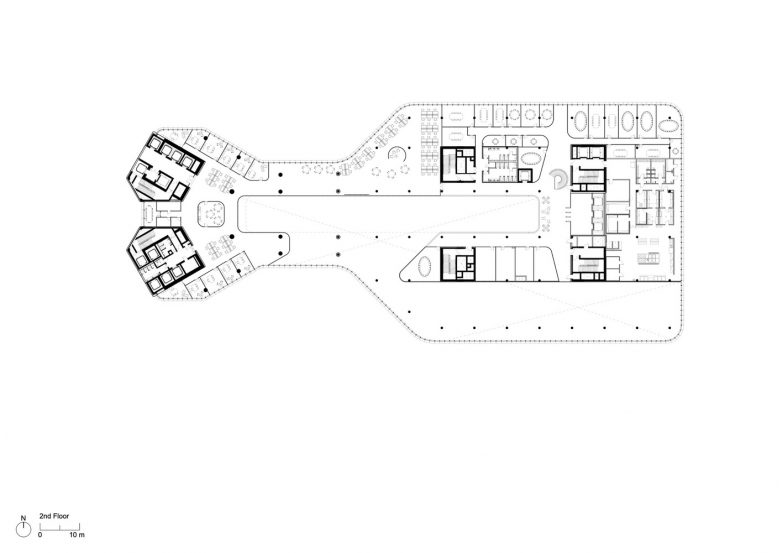
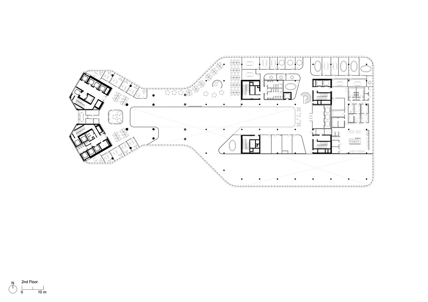
Prepoznatljiv oblik zgrade integriše kulu od 28 spratova s podijumom.
Prepoznatljiv oblik zgrade integriše kulu od 28 spratova s podijumom u jednom obliku kako bi se stvorio jedinstveni kampus.
Na donjim etažama nalaze se restorani, teretana, konferencijski centar i čitav niz drugih sadržaja za osoblje, dok su fleksibilni poslovni prostori na gornjim nivoima.
Zelenilo putuje kroz samo srce zgrade, od centralnog atrijuma do krova, približavajući prirodu radnom prostoru. Takođe deluje i kao društveni katalizator, stvarajući prostore za saradnju, opuštanje i inspiraciju.

Radni prostori su fino kalibrisani da stvore savršeno radno okruženje, inspirativan prostor ispunjen svetlošću.
Kako su iz prakse Normana Fostera objasnili za ArchDaily, servisna jezgra pod nagibom stvaraju velike fleksibilne oblasti koje podstiču kolaborativne obrasce rada.
Koristeći najsavremeniju tehnologiju za kontrolu nivoa svetlosti, temperature i pogleda, ovi radni prostori su fino kalibrisani da stvore savršeno radno okruženje, inspirativan prostor ispunjen svetlošću.
„Svi korisnici zgrade imaju direktnu vezu sa spoljašnjim okruženjem koja im obezbeđuje dnevnu svetlost i poglede“ – objasnili su iz Foster + Partners..

Efikasniji rad centralnog sistema
Zgrada koristi tehnologije sa niskim sadržajem ugljenika, kao što su integrisani krovni fotonaponski paneli i toplotne pumpe zemlja-voda, a poseduje i sistem za reciklažu sive vode i sakupljanje kišnice.
Grejanje i hlađenje se obezbeđuju preko sistema blistavih panela koji poboljšavaju kvalitet životne sredine i udobnost u zatvorenom prostoru, dok omogućavaju centralnom sistemu da radi efikasnije u poređenju sa konvencionalnim sistemima.

Sedište MOL-a nastoji da očuva odnose rada uživo kao deo urbanog iskustva, gde ljudi mogu pešačiti ili ići biciklom do posla.
Sistem postrojenja za grejanje i hlađenje se takođe integriše sa sistemom daljinskog grejanja za dodatnu podršku i otpornost, kao i rashladnim tornjevima za „slobodno hlađenje“ kada su spoljni uslovi odgovarajući.
Sedište MOL-a nastoji da očuva odnose rada uživo kao deo urbanog iskustva, gde ljudi mogu pešačiti ili ići biciklom do posla, objasnili su arhitekti.
Zgrada je na putu da postigne LEED Platinum i BREEAM Excellent sertifikate, postavljajući tako nove standarde i za Budimpeštu i za Mađarsku.

Grafički prilozi
















