Tri kubusa u igri krovnih nagiba: Prefabrikovana kuća od betona
Smicanjem i rotacijom modula, kao i promenom nagiba krovova, kuća arhitekte Andreja Erčevića dobija različite forme i prostorne karakteristike.
Tri jednostavna kubusa spojena u celinu postala su osnova modularne kuće arhitekte Andreja Erčevića, privukla je pažnju žirija na konkursu portala Gradnja za modularnu kuću koji je završen ovog proleća. Iako se zasniva na prefabrikovanim armirano-betonskim elementima, projekat dokazuje da standardizacija ne znači nužno i uniformnost.
Smicanjem modula, promenom orijentacije ili nagibom krova, moguće je dobiti niz varijacija forme – od kompaktnih do razuđenih – pri čemu se osnovni funkcionalni raspored ne narušava. Tako modularna kuća prestaje da bude tipsko rešenje i postaje platforma za kreativnost.
Srodni članci na portalu Gradnja:

Smicanjem modula i promenom nagiba krova nastaje niz arhitektonskih varijacija bez gubitka funkcionalnosti.
Konstrukcija kuće zasniva se na prefabrikovanim armirano-betonskim elementima – temeljima samcima, stubovima, gredama i pločama – što omogućava precizno izvođenje i značajno ubrzava proces gradnje. Nakon postavljanja skeletne konstrukcije, dodaju se panelni prefabrikovani zidovi, zid-zavese, pregradni zidovi i ostali elementi, čime se stvara jasna i čvrsta konstruktivna osnova.
Kako bi se omogućila jednostavna prefabrikacija i brža montaža na terenu, sve intervencije – poput smicanja modula, njihove rotacije ili promene nagiba krovova – projektovane su unutar unapred definisanog modularnog sistema. Modul se može pomerati za tačno određene distance, dok se krovne konstrukcije nude u nekoliko predodređenih varijanti nagiba. Ovakav pristup olakšava izvođenje i standardizuje proizvodnju, ali istovremeno ostavlja prostor za arhitektonsku slobodu i oblikovnu raznolikost.
Materijalizacija objekta takođe je usklađena sa prefabrikovanim principom gradnje. Fasade i unutrašnji zidovi mogu se izvesti od elemenata koji se na gradilište dopremaju u potpunosti završeni, ali postoji i mogućnost isporuke „sirovih“ panela, koji se kasnije obrađuju i prilagođavaju prema estetskim i funkcionalnim zahtevima projektanta. Time se postiže balans između industrijske standardizacije i individualnog arhitektonskog izraza.

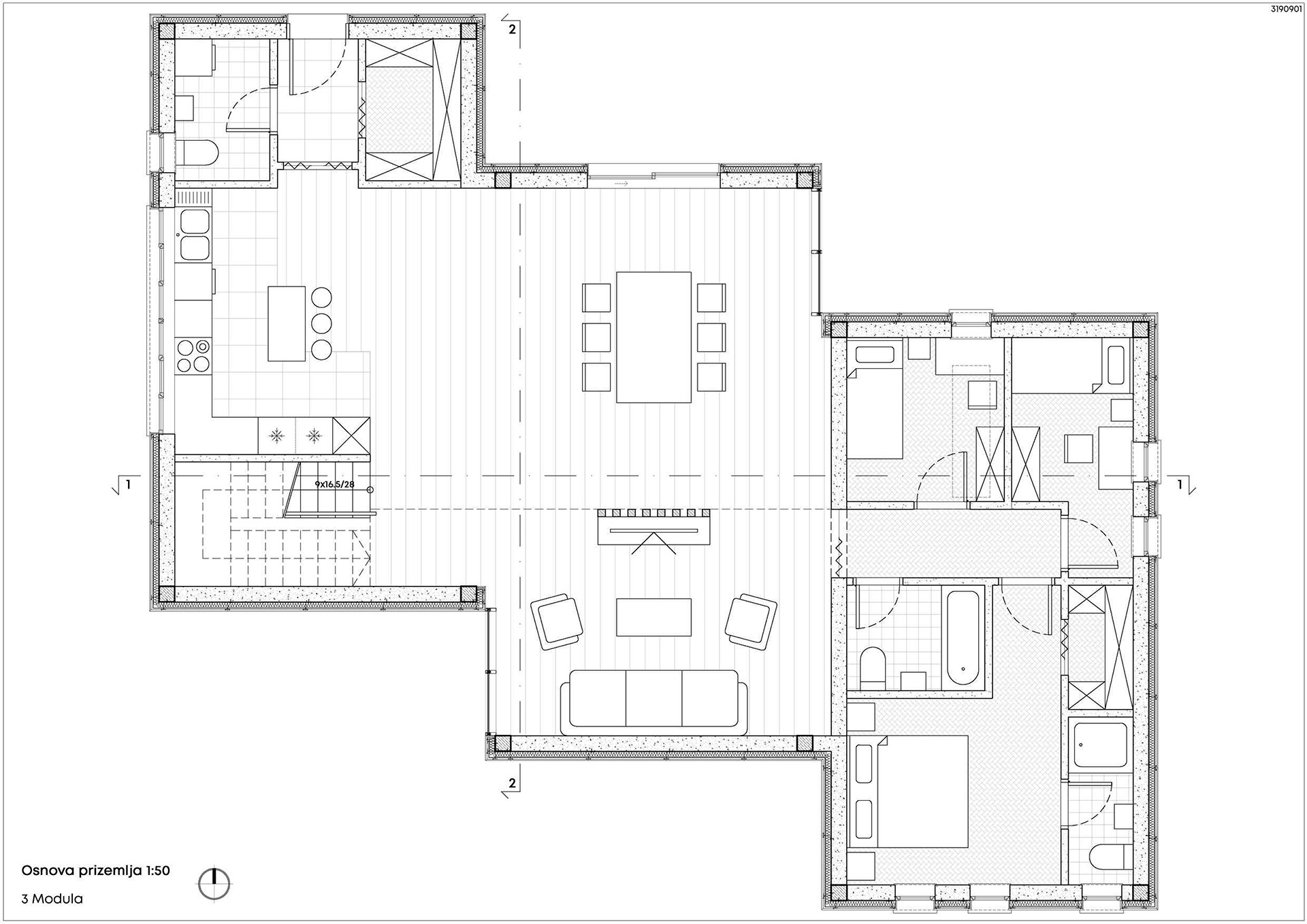
Smaknuti moduli
U konkretnom rešenju, moduli su međusobno smaknuti za 2.4 metra, dok se nagibi krovova postepeno povećavaju duž niza, stvarajući dinamičnu prostornu kompoziciju. Dodatnu vrednost donosi i spratni nivo, projektovan kao radna soba i galerijski prostor, koji se delimično nadvija nad modulima prizemlja. Ovako oblikovan sprat uvodi dodatnu prostornu slojevitost, dok zastakljeni zid-zavesa i uvučena terasa obezbeđuju vizuelnu i funkcionalnu vezu sa spoljnim prostorom.
Konstrukcija kuće zasniva se na prefabrikovanim armirano-betonskim elementima.
Prozori, krovni prozori i vrata fabrički su integrisani u panele, čime se postiže brza montaža, precizno uklapanje i visoki standardi energetske efikasnosti. Na ovaj način, prefabrikovani modularni sistem ne samo da pojednostavljuje izgradnju, već i unapređuje kvalitet stanovanja, nudeći fleksibilna, savremena i održiva rešenja u skladu sa zahtevima savremene arhitekture.
Arhitektura nove generacije
Modularna kuća izvedena od prefabrikovanih armirano-betonskih elemenata pokazuje kako savremena arhitektura može istovremeno odgovoriti na zahteve funkcionalnosti, brzine gradnje i estetske raznolikosti.
Zahvaljujući unapred definisanim pravilima modularnog sistema, projektant dobija mogućnost da kombinuje prostore i forme na različite načine, pri čemu se postiže balans između standardizacije i kreativnosti.
Ovakav pristup ne samo da unapređuje proces gradnje, već i donosi održiva rešenja prilagodljiva potrebama korisnika i specifičnostima lokacije. Time modularna kuća prevazilazi granice tipičnih prefabrikovanih objekata i postaje fleksibilan, savremen i dugoročno održiv model stanovanja.



Odlično!Koliko košta m2?!