Na mestu železničke stanice podignuta zgrada sa stanovima koji imaju i kancelarije
Ovaj stambeni objekat u Parizu projektovan je tako da u isto vreme svojim stanarima nudi mogućnost da uz stan imaju i kancelarijski prostor.
Na mestu nekadašnje železničke stanice, u 18. pariskom okrugu na severoistoku grada, dve stambene kule sada su povezane bazom, koja funkcioniše kao mešoviti stambeni prostor. Višu kulu G2 projektovala je firma Jacques Moussafir, dok je studio Nicolas Hugoo bio zadužen za razvoj niže kule G1, piše Dezeen. Ono što je specifično za ovaj projekat jeste što se stanarima uz stanovanje nudi i prostor za rad.
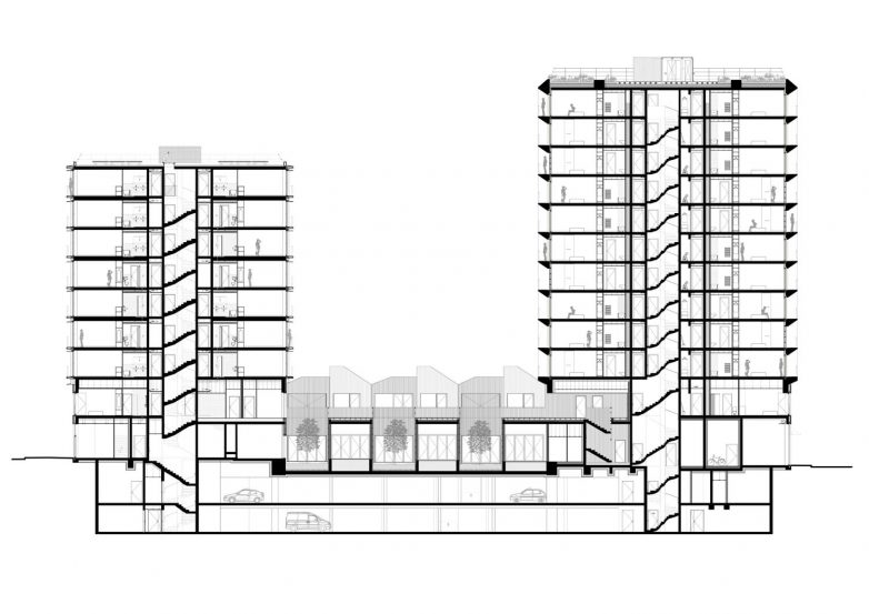
Dva tornja su međusobno povezana u bazi i imaju 105 stanova sa pripadajućim kancelarijama.
Tim arhitekata dizajnirao je dva međusobno povezana tornja, koristeći se primarno drvetom, staklom i betonom, a kao rezultat je realizovano ukupno 105 stanova.
Prema masterplanu La Chapelle International, koji zauzima okolnih sedam hektara površine, zahtevalo se uspostavljanje ujednačenog podijuma, koji su arhitekte osmislile kao bazu od dva nivoa iz koje izviru dve kule. Ovaj prostor sadrži 18 manjih prostora za rad „obmotanih“ transparentnom metalnom mrežom koja omogućava otvorenost prostora. Podijum na nivou ulice sadrži zajedničke prostore za obe kule kao i dve prodavnice.

Iako stambene kule predstavljaju nešto veću estetsku varijaciju u odnosu na bazu, istovremeno se dobro uklapaju s ostatkom programske šeme.
SOHO koncept za rad od kuće
Hibridne SOHO (Small Office Home Office) prostorije, koje pored stambenih prostora sadrže i male radne prostore, namenjene su svima onima koji žele da rade od kuće.
Cilj SOHO koncepta je objedinjavanje poslovnih i stambenih prostora. Svaka jedinica ima poslovni ulaz okrenut prema ulici i privatni pristup iz zajedničkog prostora u centralnom delu bloka. Na višim spratovima, SOHO jedinice su raspoređene oko šest polu-privatnih terasa, čime je omogućen protok dovoljne količine dnevne svetlosti.

Svaka jedinica ima poslovni ulaz okrenut prema ulici i privatni pristup iz zajedničkog prostora u centralnom delu bloka.
Arhitektonske reference
Dok su gusto organizovane stambene jedinice referencu pronašle u tradicionalnom pariskom uličnom pejzažu, sa druge strane kosi krovovi evociraju izgled obližnjih železničkih skladišta.
Peta fasada
Paleta materijala, koja pored drveta, stakla i betona, sadrži i čelične i aluminijumske površine stvara kohezivnu, industrijsku estetiku.
„Zamislili smo petu fasadu kao novi „metalni pokrivač“ napravljen od perforiranog, rebrastog aluminijuma koji mestimično kreira četvorovodne krovove ili se poništava, kako bi se kreirala dvorišta i terase obložene pocinkovanom čeličnom rešetkom.“
Paleta materijala sa čeličnim i aluminijumskim površinama stvara kohezivnu, industrijsku estetiku.
Stambeni objekat G1 dizajniran je sa idejom da se ophodi lagano i otvoreno ka gradskom okruženju, čemu doprinose istureni balkoni sa kojih se pružaju otvoreni pogledi.
Zgrada je organizovana oko kompaktnog cirkularnog jezgra, sa tehničkim prostorima organizovanim bliže centralnom delu, dok su obodni delovi ostavljeni za dnevne prostore i spavaće sobe.

Drugi toranj
Drugi toranj, nazvan G2 karakterišu kubične proporcije, a na svakom od spratova organizovano je šest apartmana.
Kako i kod kule G1, dnevni prostori su smešteni u obodnoj zoni, kako bi se obezbedila što veća količina prirodnog svetla i uspostavili čisti pogledi na okruženje.
Grafički prilozi
Foto: Herve Abbadie









