Na Zlatiboru niču brvnare koje izranjaju iz zemlje i upijaju prirodu
Najveći izazovi u ovom projektu bili su kako intervenisati u pejzažu, a ne narušiti ga, kao i na koji način prevazići ograničenja drvene kuće i stvoriti autentičan dizajn.
Nije tajna da je beg iz grada i pravljenje vikendica postalo veoma popularno u Srbiji, međutim malo je projekata koji se svojim savremenim pristupom arhitektonskom projektovanju ali i načinu izgradnje mogu izdvojiti. Međutim, ovo je drugačiji primer. Projektni zadatak za arhitekte iz biroa miuarhitekti iz Užica bio je da se privatnog investitora na Zlatiboru napravi grupacija od šest kuća, brvnara od 60 kvadrata, namenjene za kratke boravke, ali sa željom da budu u skladu sa potrebama savremenog čoveka i vremenom u kome živimo.
“Naše težište razmišljanja i koncepcija proistekli su iz potencijala lokacije, međuodnosa objekata i sinergije objekata i prirode. Težili smo da stvorimo autentične kuće – kabine, da iskoračimo iz ograničenja drvene gradnje i prevaziđemo uniformnost, i to što svi objekti liče jedni na druge.” – kaže Marija Gardić Lazić za naš portal.
Kuće niču iz zemlje, poput periskopa koji izranjaju iz vode i upijaju prirodu.
Projektni biro dizajnirao je pojedinačnu kuću s namerom da bude pojednostavljene forme, jer je ona element grupacije u specifičnom prirodnom okruženju. “To nije tipska kuća i grupacija kuća koja može da egzistira bilo gde, već je proizašla iz uticaja konkretnog lokaliteta.” – kaže Marija i dodaje da su to kuće koje izranjaju iz zemlje, kao periskopi koji izranjaju iz vode i upijaju prirodu. Koncipirane su u funkciji doživljaja prirode i velikim staklenim portalom orijentisane ka pejzažu i pogledu.
Na arhitekturu objekata nije uticala okolna arhitektura već okolni pejzaž, i kako ga što manje promeniti. “Ali dinarska brvnara sa kraja 19. i početka 20. veka jeste uticala” – kažu autori projekta. Kao i kod njih, ovo je u osnovi pravougaona kuća, postavljena na masivni temelj od betona, dok su zidovi drveni. Konstrukcija i obloga složeni su u horizontalni slog, što je reminiscencija na brvnare, ali savremena interpretacija. Krov je veliki, spušta se nisko, ali remodelovan u odnosu na tipičan krov dinarske brvnare.
Materijali iz prirode
Materijali iz prirode – drvo, kamen, metal. Fasada je pretežno sa oblogom od drveta u horizontalnom slogu. U nekim delovima se krov spušta preko fasade, tako da je tu završna obrada falcovani čelični lim. Za drvenu oblogu preporuka je bila da bude sibirski ariš ili termotretirano drvo (sa skrivenim kačenjem na potkonstrukciju) zbog dugotrajnosti, otpornosti na vremenske uticaje i slično. Ispuna spoljnih elemenata termičkog omotača je sa odgovarajućom termoizolacijom od kamene vune.
Krovnu konstrukciju čine rogovi oslonjeni preko „bondručnih“ ramova.
Konstrukcija objekta sastoji se od armiranobetonskog postamenta na koji se postavlja objekat od drvene konstrukcije – krov i zidovi. Krovnu konstrukciju čine rogovi oslonjeni preko „bondručnih“ ramova. Krov je jednovodni nagiba krovne ravni 20 stepeni. Ramovi se sastoje se od nosećih neprekinutih stubova, drvenih greda, kosnika i ispune. Međuspratna konstrukcija se sastoji od greda tavanjača koje su oslonjene na grede u ramovima. Pod se postavlja preko drvenih temeljnih greda i podnih greda.
Kako prevaziđi organičenja drvene kuće
“Kod ovakvih montažnih objekata nema značajne projektantske razlike pošto je u pitanju drvena kuća – to bi moglo predstavljati ograničenje u slučaju nekih većih objekata. Ali, da bi se ispoštovali zahtevi energetske efikasnosti i da bi objekat imao zadovoljavajući kvalitet i trajnost, sklopovi i izbor materijala moraju biti pažljivo odabrani i razrađeni, tako da je u tom smislu projektovanja i razrade zahtevnija od klasične gradnje.” – kaže Marija Gardić Lazić za naš portal i dodaje da su najveći izazovi bili kako intervenisati u pejzažu, a ne narušiti ga. “Kako prevazići ograničenja drvene kuće i stvoriti autentičan dizajn.” – kažu autori ovih kuća.
Komfor u 60 kvadrata
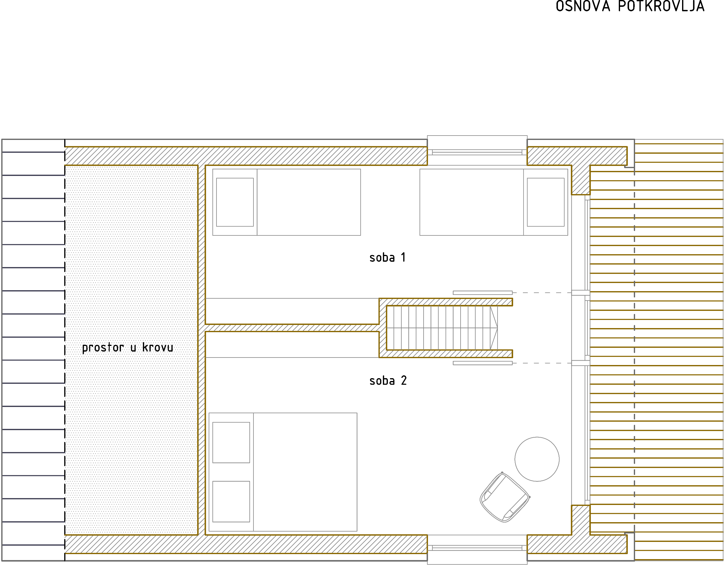
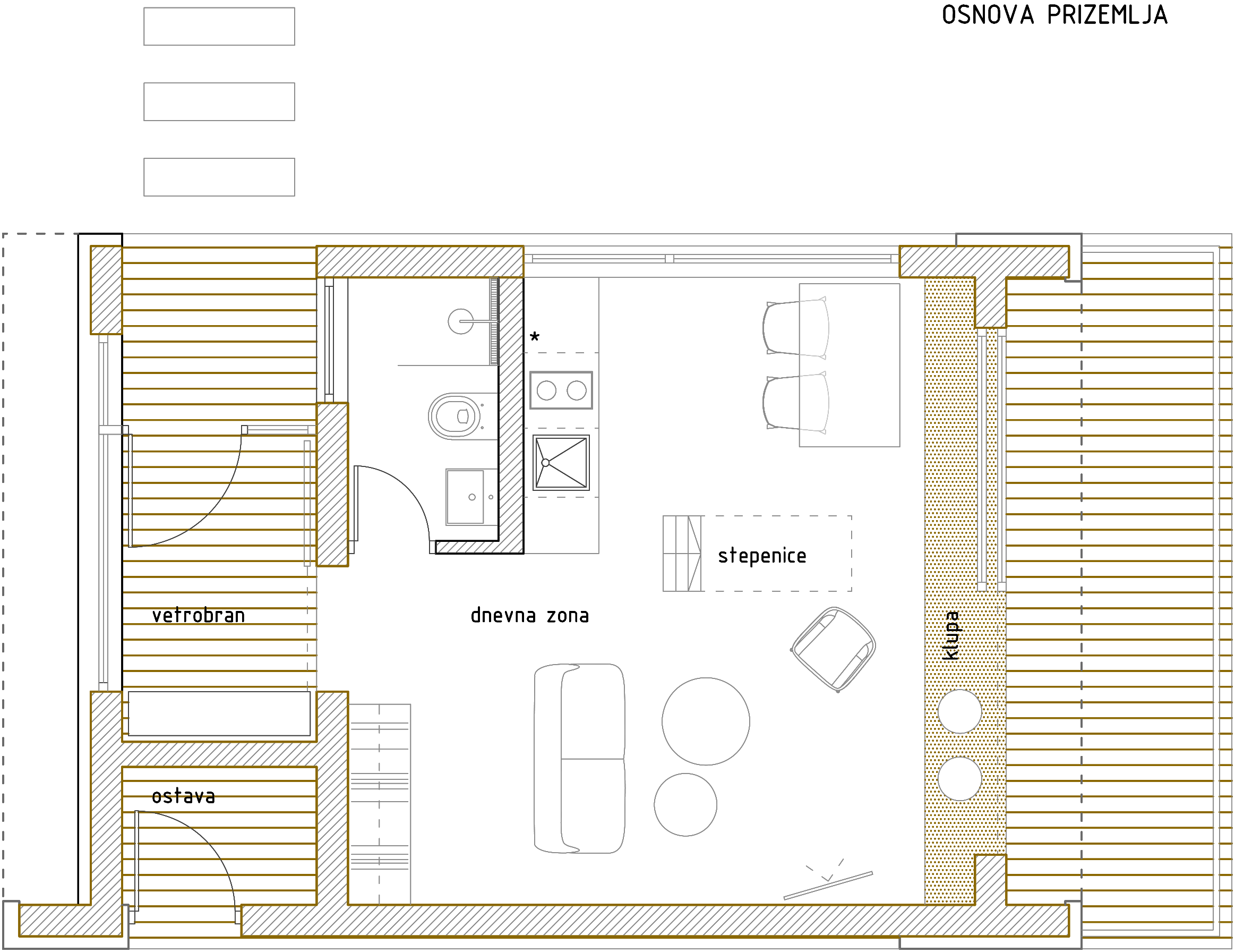
Prizemlje sadrži natkriveni ulazni trem, vetrobran, kupatilo, jednoprostornu dnevnu zonu (kuhinja, trpezarija, dnevna soba), i delimično natkrivenu terasu. Između dnevne zone i terase celom dužinom prozorskog portala projektovana je klupa za sedenje i relaksaciju. Brodskim stepenicama prizemlje je povezano sa potkrovljem gde su smeštene dve spavaće sobe. U prizemlju je projektovana i ostava u koju se ulazi spolja. Glavna orijentacija dnevne zone i noćne zone je prema istoku.
Neto korisna površina prizemlja iznosi 40, potkrovlja 20, ukupno 60 m2.
Faktografija:
- Naziv objekta: Grupacija savremenih mini kuća za odmor
- mesto: Zlatibor
- investitor: privatni
- autori projekta: miuarhitekti – Marija Gardić Lazić, dia i Uroš Lazić, dia
- godina projektovanja: 2020.
- godina izgradnje: 2020-2021.
- površina: 6 x 77m2
- spratnost: Pr+Pk
Kad ste već ovde…






I sta je ovde lepo???
Lepo je to sto je to jedno mesto na Zlatiboru gde je mir i tisina bez ikoga okolo da gradi zgrade ili puteve.
A sta nevalja kuce se nalaze u samoj prirodi i pogled im je prelep ocigledno niste bili al dobro kad budete otisli onda kmozete komentarisati do tad nemojte
apsolutno ništa milorade, srpska arhitektura koja u startu poništava vrednost vitruvija“ venustas“ eto to je! to se ne uči jednostavno na fakultetu!
Predivnoo! Moderno, skladno, drgacije, sjajno!
Napokon nesto drugacije na Zlatibor , autenticno I moderno
Pohvalna je upotreba drveta i u oblaganju i u konstrukciji, kao i fasada od kamena i jednovodni krov. Moglo je bez metala, ili da on bude na nivou nekakvih linijskih akcenata. Užasne proporcije. Kuće se ne slažu sa okruženjem nego vrlo napadno štrče iz njega.
Deaga Majo, u Vašem kontekstu autentično i moderno ne idu zajedno.
Video sam, nista posebno, kao i mesto, 100 metara od objekata ima vec naselje sa lepim drveni kucama.
Lepo izgleda,samo….velike staklene površine,grejanje. Kako je to rešeno?
по мени би тамно зелена била много прикладнија; све остало је лепо за оне који воле модернo.
Interesantno da su okrenute prema istoku a ne prema jugu ili zapadu…
Šta je pobogu autentično u okruglim prozorima? Ova forma je suprotna (da ne napišem „prst u oko“) građenju drvetom, a i u suprotnosti je i sa ambijentom.
Mene asocira na ‘star wars’ nastambe …na planeti, onoj….
-Ali zaista. Mozda bi bilo autenticno…..
(arh Lukas)
PS: Uprediti sa clankom od pre mesec dana: „U slovenačkim Alpima niče naselje od montažnih kuća“ i sve je veoma jasno odmah, za manje strucne, naravno, a kojima se ovo najsvidja.
https://www.gradnja.rs/u-slovenackim-alpima-nice-naselje-od-montaznih-kuca/
Slažem se sa „izranjaju iz zemlje“ ali ne i sa „upijaju prirodu“ – iz prostog razloga što neprirodno dominiraju pejzažom narušavajuči ga u svakom smislu. Takođe ugao nagiba krova je totalno nelogičan, umesto da je paralelan sa tlom i da pruža iskorišćavanje nivoa koji je ukopan u teren kao korisnog prostora, a ne „kamenog postamenta“.
Pprijedlog za arhitekte koji su dizajnirali ovu interesantnu kuću je da svakako docrtaju dimnjak -kamin u prostoru radi ambijenta, povećaju površinu terase… U renderima nije jasno s koje pozicije se izlazi na terasu jer ekran prozori ne idu do poda….i da ne zaboravim ja nisam arhitekt 🙂
Jos jedna arhitektonska rugoba i strasilo na Zlatiboru. Deluje morbidno, depresivno i zastrasujuce. Kao da je sa druge planete.
Mene zanima da li je izvodjac zavrsio ove kuce ili ih samo zapoceo i ako nije koji je razlog?? Ne znam koji je uslov za forsiranje izvodjaca napr. Garden Design, da li je on jedini, da li je ozbiljan, da li je vasa preporuka da se sa njim saradjuje?
Ovo he plahijat projejkra Crnih stena sa Zlatibora.