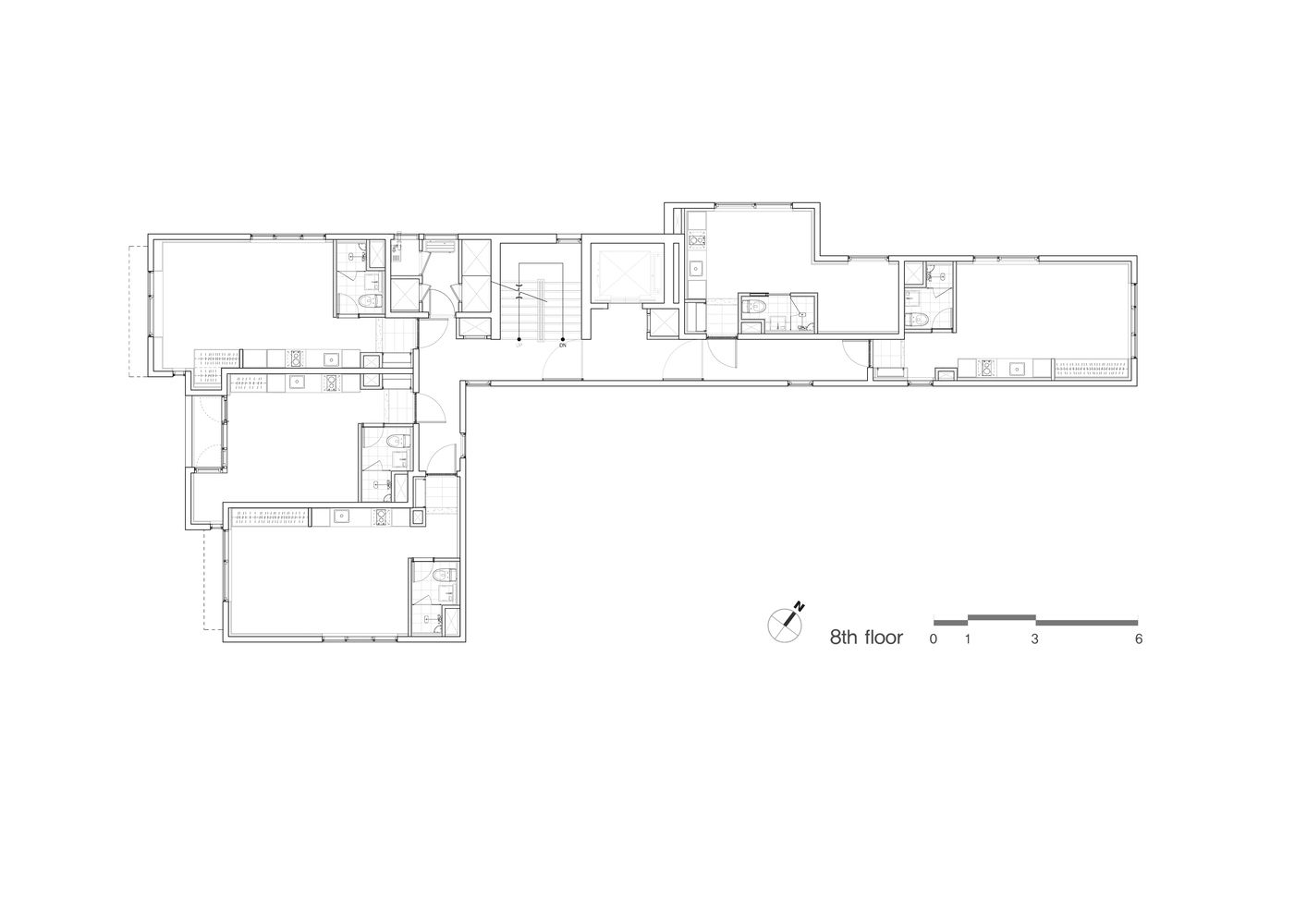
Smicanjem fasade u cik-cak raspored kreirani balkoni koji zaobilaze zakon
Kako bi se ispoštovao korejski zakon, jedinstvenom trouglastom strukturom dobijeni su preko potrebni balkoni koji funkciju stanovanja podižu na viši nivo.
Među novim trendovima u svetu nekretnina u Južnoj Koreji našao se i neologizam nazvan Young-kkel Generation, koji se odnosi na mlade ljude koji sve češće pozajmljuju novac od članova porodice ili banaka u očajničkoj želji za kupovinom sopstvene nekretnine.
Ova nova kovanica zapravo je izraz povezan sa anksioznošću koju stvara strah mladih generacija da neće moći da kupe sopstvenu nekretninu u budućnosti zbog naglog rasta cena kuća i stanova.
Pročitajte još na Gradnja.rs:

Balkoni kao zamena za seosko dvorište
U Južnoj Koreji, izraz „arhitektonski prostor“ danas je prepoznat samo kao nekretnina za komercijalni profit, dok odrednica „arhitektonski prostor za život“ zapravo nema nikakav značaj.
Ovakvi društveni trendovi dovode do stvaranja sumornog gradskog pejzaža i zbog toga je urbana arhitektura postala bezizražajna, piše ArchDaily.
Ipak, dizajneri iz firme Maaps Architects, koji potpisuju projekat stambeno-poslovnog objekta pod nazivom Ratio Building Tri_Poly, pokušali su da iniciraju novi vid urbane arhitekture koji će funkciju stanovanja podići na viši nivo.
Tako su se korejski arhitekti okrenuli vrednostima tradicionalnih sela u kojima su dvorišta i ceo pejzaž deo stanovanja, ali, budući da u vertikalnom gradu takvih dvorišta ne može biti, njihovu ulogu u zgradama preuzeli su balkoni.

Projekat je uspeo da ispoštuje zakone iskoristivši jedinstvenu trouglastu strukturu u konstrukciji zgrade kako bi obezbedio balkone.
Međutim, postojao je jedan veliki problem. Pošto ova zgrada ima i funkciju poslovanja, prema zvaničnim pravilima u Koreji, balkoni se ne mogu postavljati na poslovne objekte.
Ipak, arhitekte su uspele da ispoštuje zakone iskoristivši jedinstvenu trouglastu strukturu na fasadi zgrade kako bi obezbedili balkoni.
Vertikalni cik-cak obrasci stvaraju trouglaste prodore na fasadi objekta, koji su iskorišćeni kao prostori za balkone. Trouglasta struktura je takođe postala referentna linija i za ostale elemente objekta.

Produženo stanovanje
Kao rezultat, kreiran su stanovi sa dnevnim boravcima sa balkonima koji omogućavaju produženo stanovanje i na kom se ljudi mogu opustiti.
Tri_Poly pruža različite tipove prozora, te se svaki pojedinačni prostor susreće sa spoljašnjošću na sopstveni način. Stanovi orijentisani na dve li tri strane znatno su otvoreni ka okolnom pejzažu.

Umesto da se privatnost postavi na viši nivo, ideja je bila da ljudi komuniciraju i pomalo jedni drugima otkrivaju svoje priče.
Svrha stvaranja različitih prozora i terasa može ponuditi znatnu količinu prirodnog osvetljenja u unutrašnjosti, kao i omogućiti prijatne poglede na okruženje, ali primarna namena je bila da se otvaranjem prozora i terasa sa više strana okolina pomalo umeša u privatnost ljudi.
Umesto da se privatnost postavi na viši nivo, ideja je bila da ljudi komuniciraju i pomalo jedni drugima otkrivaju svoje priče – baš onako kako se i pre moglo raditi preko niskih plotova u susedstvu.
Grafički prilozi
Foto-galerija




Fotografije: Jongoh Kim



