Vranje ponovo ima hotele za ponos
Uz novoprojektovani Royal Putnik, biro Alterno inc. potpisuje i rekonstrukciju poznatog gradskog hotela čiji je originalni autor vranjski arhitekta Miomir Stojanović.
Vranje je najjužniji grad Srbije, koji i pored svoje odlične geografske pozicije, do pre par godina nije imao ni jedan hotel ili koji drugi ozbiljniji smeštaj za sve one koji poslom ili turistički prolaze kroz ovaj kraj. Gradski hotel “Vranje” bio je uveliko zatvoren, a motel “Vranje”, lociran na auto-putu, Komesarijat za izbeglice je otkupio kako bi isti pretvorio u smeštaj za migrante.
Zaista neprijatna situacija da grad od preko 50.000 stanovnika, koji se nalazi na putu za Severnu Makedoniju i Grčku, ali i sam poseduje neke kulturno-istorijske znamenitosti, ostane bez hotelskih kapaciteta. Srećom, pojavio se investitor koji je imao sluha za ove problem, ali i sluha da angažuje kvalitetan arhitektonski biro, koji bi na pravi način materijalizovao njegove zamisli.
Posao dobija niški biro Alterno inc., koji se nekoliko godina zadržao u Vranju, radeći na projektovanju novog i na rekonstrukciji starog hotela, čime je “grad žutog cveća” ponovo dobio vrhunski ugostiteljski smeštaj.
Pročitajte još na Gradnja.rs:

U slučaju hotela “Ambasador” izvršena je rekonstrukcija objekta iz 60-ih godina, dok je u slučaju odmarališta reč o kreiranju potpuno novog kompleksa.
Biro Alterno našao se u žiži javnosti kada je ponovo otvoren niški hotel “Ambasador”, ali i kada je nekoliko nagrada osvojio kompleks odmarališta na Staroj planini. Iako je za oba projekta zajednička namena (hotel/odmaralište), po prirodi projektovanja, oni su potpuno različiti.
U slučaju hotela “Ambasador” izvršena je rekonstrukcija objekta iz 60-ih godina, dok je u slučaju odmarališta reč o kreiranju potpuno novog kompleksa. Ovim projektima, ali i nekim ranijim, je tim Alterno inc. pokazao da je podjednako dorastao za oba pristupa, što ih je dalje preporučilo za poslove u Vranju.
Hotel Royal Putnik
Ovaj novoizgrađeni hotel, završen 2020. godine, nalazi se u ulici Todora Španca, ali svojom većom fasadom gleda ka Bulevaru AVNOJ-a, koji je ujedno i glavna ulazna saobraćajnica u grad Vranje. Okolina hotela je mešovita, sa pretežno stambenim zgradama, kao i rekreativno-edukativnim objektima.
Investitor je odlično iskoristio lokaciju parcele, koja omogućava gostima da sopstvenim prevozom na brz i jednostavan način dođu do hotela, bez ulaska u uži centar grada, sa obezbeđenim parkingom.
Sa druge strane, hotel je relativno blizu i glavnoj autobuskoj stanici, što pogoduje gostima koji putuju međugradskim prevozom. Lokacijski uslovi su postavili parametar zauzetosti parcele i spratnosti objekta, a investitor je imao i posebne zahteve po pitanju funkcionalnosti.
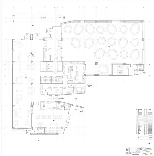
Odvojen zidnom pregradom, ali i sa posebnim spoljnim ulazom, kafe funkcioniše kao zasebni ugostiteljski objekat, bez mešanja gostiju sa gostima hotela.
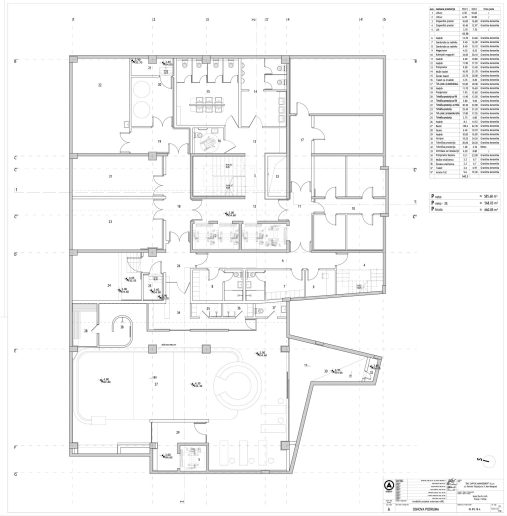
Za početak, objekat ima pet zasebnih ulaza, što omogućava funkcionisanje različitih sadržaja kao zasebnih celina. Glavni ulaz se nalazi na samom uglu koji gleda na ulice Todora Španca i Bulevar AVNOJ-a, odakle se ulazi u prostor recepcije i glavnog hotelskog foajea.
U nastavku ovog prostora, odvojen zidnom pregradom, ali i sa posebnim spoljnim ulazom, nalazi se kafe. Ovo omogućava kafeu da funkcioniše kao zasebni ugostiteljski objekat, bez mešanja gostiju sa gostima hotela.

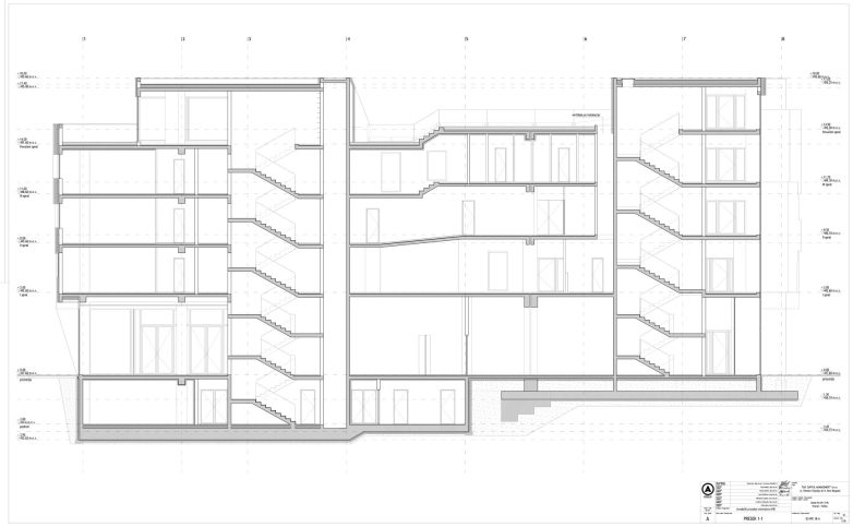
Vertikalne komunikacije, u vidu dva stepeništa i šest liftova, nalaze se na nekoliko pozicija unutar objekta i povezuju sve etaže.
Treća celina, koja se takođe nalazi u prizemlju i ima zasebni spoljni ulaz, predstavlja salu za proslave, čiji korisnici takođe ne moraju da dolaze u kontakt sa druga dva sadržaja.
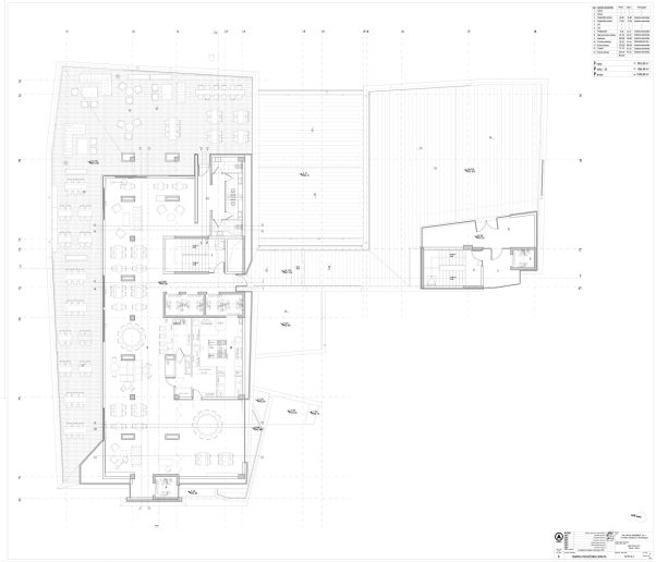
Vertikalne komunikacije, u vidu dva stepeništa i šest liftova, nalaze se na nekoliko pozicija unutar objekta i povezuju sve etaže, od podruma gde je smešten spa centar, preko prizemlja i tri sprata gde se nalaze sobe, do poslednje povučene etaže, na kojoj se nalazi restoran sa krovnom terasom.

Enterijer nimalo ne zaostaje sa arhitekturom, što jasno ukazuje njegova funkcionalnost, atraktivnost rasvete i obrade podnih, zidnih i plafonskih površina.
Arhitektura zgrade se odlično uklopila u svoje okruženje. U njoj se vide odjeci posleratne jugoslovenske moderne, kombinovani sa ekspresionističkom formom u vidu zatalasanog fasadnog platna i naglašenih detalja, poput ukrštenog stuba na glavnom ulazu ili neobičnih trakastih prozorskih otvora, na bočnoj fasadi objekta.
Enterijer nimalo ne zaostaje sa arhitekturom, što jasno ukazuje njegova funkcionalnost, atraktivnost rasvete i obrade podnih, zidnih i plafonskih površina. O tome koliko je hotel uveliko postao popularan, ne samo među turistima koji dolaze u Vranje, nego i među onima koji prave odmor na putu ili povratku sa letovanja, govori popunjenost kapaciteta.
Sa druge strane, hotel je postao i mesto za razne proslave ili neformalne izlaske, čime je postignuta i njegova uloga centra socijalizacije južnog kraja Vranja.

Hotel Vojvoda Putnik
Nakon odlično izvedenog projekta, tim Alterno inc. je bio pozvan od strane istog investitora da radi na još jednom objektu u Vranju. Ovaj put je u pitanju bio hotel “Vranje”, koji je izveden 1984. godine po projektu vranjskog arhitekte Miomira Stojanovića, a koji je od 2014. godine bio zatvoren. Nakon što ga otkupljuje isti investitor/vlasnik hotela Royal Putnik, projekat rekonstrukcije je mogao da počne.
Kako je u pitanju bio poznati gradski hotel, sa prepoznatljivom autorskom arhitekturom u žutoj opeci i kosim krovovima, tj. urbani prostor okupljanja nekoliko generacija Vranjanaca, novi vlasnik je, uz konsultacije sa arhitektama, odlučio da u najvećoj meri sačuva spoljni izgled zgrade, da ga osveži, a da veći akcenat bude stavljen na izmenama u enterijeru. Hotel je završen 2024. godine.

Sa tri strane zgrade sačuvan je pešački prilaz, sa denivelisanim terasama i stepeništima glavnog ulaza i posebnog ulaza u svečanu salu.
Sa tri strane zgrade sačuvan je pešački prilaz, sa denivelisanim terasama i stepeništima glavnog ulaza i posebnog ulaza u svečanu salu. Unutrašnjost hotela je pretrpela najviše izmena. Kako je u međuvremenu došlo do izmena propisa o kategorizaciji hotela, objekat je za potrebe protivpožarne evakuacije dobio još jedno stepenište i još jedan lift.
U prizemlju, pored atraktivno rešenog foajea sa recepcijom, došlo je da promena u javnom prostoru, pri čemu su srušene stare kancelarijske prostorije, pa je prostor spojen sa prolaznim holom, čime je dobijen veliki prostor restorana.

Kako je stari hotel daleko veći, arhitekte su imale više prostora za oblikovanje i opremanje enterijera, koji je rešen u sličnom estetskom izrazu kao i Royal Putnik.
Kuhinja i svečana sala u prizemlju su zadržane, dok je galerija na mezaninu prepravljena, čime je hotel dobio prostore za frizerski-kozmetički salon, omanji wellness i spa centar, kao i višenamensku galeriju sa zimskom terasom.
Sobe koje se nalaze na tri spratne etaže, takođe su doživele izvesne prepravke u prostoru, ponovo zbog kategorizacije i što boljeg rasporeda i iskorišćenosti smeštajnih kapaciteta. Kako je stari hotel daleko veći, arhitekte su imale više prostora za oblikovanje i opremanje enterijera, koji je rešen u sličnom estetskom izrazu kao i hotel Royal Putnik.

Celokupno rešenje ostavilo je pozitivan utisak na građane Vranja, ali i na arhitektu Stojanovića, koji je uputio čestitke mlađim kolegama iz biroa Alterno inc.
Hotelska zgrada je pretrpela i manje rušenje, ali isključivo tehničkih prostorija, koje više nisu imale svoju funkciju (ložionica, hladnjača za meso itd.), a na njihovom mestu, kao svojevrsni aneks između hotela i vranjskog pozorišta, isprojektovana je stambeno-poslovna zgrada.
Ova masivna struktura, takođe oblikovana u autorskom maniru, sa fasadnom opekom i ramovskim motivima koji uokviruju otvore i terase, u potpunosti se uklopila sa postojećom arhitekturom hotela.
Celokupno rešenje, rekonstrukcije i dogradnje, ostavilo je pozitivan utisak na građane Vranja, koji ponovo imaju svoje mesto okupljanja i druženja, ali i na arhitektu Stojanovića, koji je uputio čestitke mlađim kolegama iz biroa Alterno inc.










Upropascena velika sala hotela Vojvoda Putnik spustanjem plafona. Time je jedna od tri sale takvog kapaciteta u Srbiji ugusena. Imala je idealan odvod pusackog dima. Enterijer nema dodirnih tacaka sa Vranjem. Otimanje motela je zlocin prema Vranjancima jer je istrgnut iz duse Vranjanaca.
A sto ne napisete ko je vlasnik hotel, time ce sve biti jasno…Pravog vlasnika naravno, ne nekog menadzera koji se vodi kao vlasnil, direktor i slicno…
Mislim da nema svrhe. U svakom gradu je investitor neka osoba koja ulaže novac, čije poreklo najčešće nije poznato.