Zgrada na Pašinom brdu sa brižljivim odnosom prema susedstvu
Kroz nalaženje prikladne razmere, beogradske arhitekte su nastojale da u višeporodičnu stambenu tipologiju implementiraju vrednosti individualnog stanovanja.
Atelje Vladislav Lalicki (AVL), arhitektonska projektantska radionica osnovana 2008. godine u Beogradu, autorski potpisuje projekat oblikovanja stambene zgrade od 940 kvadratnh metara u Varvarinskoj ulici broj 10 na Pašinom brdu u opštini Voždovac, projektovane 2017. a izvedene tokom 2018. i 2019. godine.
Ovaj deo grada je u proteklom periodu doživeo intenzivnu promenu, iz nekadašnjeg predgrađa – četvrti porodičnih kuća srednjeg građanskog sloja – u zonu intenzivne komercijalne višeporodične stambene izgradnje, a arhitekta Vladislav Lalicki objasnio nam je kako su on i njegov tim u ovakav ambijent uneli nove kvalitete i standarde.
Pročitajte još na Gradnja.rs:
- Zgrada MBM 23 u Pančevu: Erkeri na fasadi kao interpretacija vojvođanskog kibic fenstera
- Novogradnja ne posustaje: Na Voždovcu planiran kompleks od preko 38.000 kvadrata

Afirmacija autentičnih ambijentalnih vrednosti
Kako navodi Lalicki, proces promene praćen je ne samo maksimalnim iskorišćenjem dozvoljenih, često prekomernih, urbanističkih parametara, već neretko i nedovoljno promišljenim i nedovoljno brižljivim odnosom prema susedstvu, orijentaciji, bližem i širem urbanom kontekstu, istorijskim i razvojnim slojevima pojedinih gradskih celina…
„Jedan od osnovnih ciljeva ovog projekta bio je upravo da se prepoznaju i afirmišu autentične ambijentalne vrednosti ovog kraja grada, kao i da se u transformisani urbani ambijent unesu novi kvaliteti i standardi“ – kaže beogradski arhitekta.
Autori su nastojali da u višeporodičnu stambenu tipologiju implementiraju vrednosti
individualnog stanovanja.
U tom smislu, napominje, posebna pažnja poklonjena je problemu razmere, njenog prilagođavanja meri čoveka, malim distancama sagledavanja, relativno uskom profilu ulice – i to kako u celini kompozicije, tako i u detaljima.
„Upravo kroz nalaženje prikladne razmere, koje je u velikoj meri opedelilo i odabir materijala kao i njihov uzajamni odnos, nastojali smo da u višeporodičnu stambenu tipologiju implementiramo vrednosti individualnog stanovanja, koje je temelj i osnovni memorijski ‘sediment’ gradotvornosti Pašinog brda“ – objašnjava Lalicki.

Niz natprosečnih tehničkih rešenja
Lalicki naglašava da je ovakvom pristupu pogodovala i činjenica da su se investitori odlučili za zgradu visokog komfora i kvaliteta stanovanja, u kojoj će i sami stanovati.
„U objektu je projektovano svega sedam komfornih stanova, što je ovaj postavljeni cilj učinilo realističnim i omogućilo primenu niza natprosečnih tehničkih rešenja, od dimenzionisanja stanova i pojedinih prostorija, preko odabira materijala i komponenti, pa do ugradnje infrastrukturnih i instalacionih sistema, posebno u pogledu grejanja, hlađenja i energetske efikasnosti objekta“ – navodi naš sagovornik.
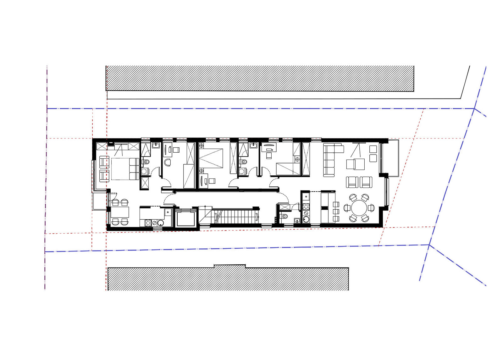
Osnova prizemlja
Prednja (ulična) fasada raščlanjena je i dinamizirana erkerom, koji postaje glavni oblikovni motiv.
Osnovni izazov u arhitektonskoj postavci ove zgrade predstavljala je uska lokacija, sa strogo propisanim udaljenjima od granica parcele, objašnjava dalje Lalicki.
„Poštujući sva ograničenja, zgrada je koncipirana kao jednostavan, izdužen slobodnostojeći kubični volumen. Prednja (ulična) fasada raščlanjena je i dinamizirana erkerom, koji postaje glavni oblikovni motiv“ – kaže arhitekta.
Prema ulici (severna ekspozicija) projektovani su manji stanovi, dok su prema dvorištu (južna ekspozicija) projektovani veliki stanovi, razvijene strukture.

Stanovi su dobro, višestrano prirodno osvetljeni i provetreni, sa logičnim i doslednim zoniranjem i orijentacijom prostora.
Celo potkrovlje zauzima jedan stan. Stanovi su dobro, višestrano prirodno osvetljeni i provetreni, sa logičnim i doslednim zoniranjem i orijentacijom prostora.
Uprkos uskom gabaritu, zajednički prostori u objektu (komunikacije) su veoma komforni. U podrumu zgrade projektovana je garaža propisnih kapaciteta, potrebne tehničke prostorije i stanarske ostave.

Natur beton i drvo u detaljima
U materijalizaciji fasade, kombinovana je fasadna opeka zemljanih tonova i metalne obloge od mikroliniranog lima u crnoj boji, kao i crna aluminijumska bravarija.
„Čovekomerne distance sa kojih se objekat realno sagledava, omogućile su potenciranje likovnog dijaloga ovih materijala, kontrastnih po svom poreklu, strukturi, teksturi, boji i taktilnim karakteristikama. U detaljima, naročito u ulaznoj zoni, primenjeni su natur beton i drvo“ – navodi Lalicki.
Dodaje na kraju da oblikovanje fasade blago referira na “industrijsku” arhitekturu ili, svojim uskim frontom, na stambene četvrti severnoevropskih gradova, ali ponajviše na iskustva beogradske moderne, što zgradu jasno smešta u kvalitetan lokalni kontekst i čini bliskom, prepoznatljivom i komunikativnom.
Foto-galerija






Faktografija
Stambena zgrada u Varvarinskoj ulici
Voždovac, Beograd
P+2+Pk
Slobodnostojeća stambena zgrada
„Zidarac“ doo, Ivanjica
2017.
2018–2019.
940 m²
Atelje Vladislav Lalicki
Vladislav Lalicki, Nenad Lužanin, Marijana Poljovka i Tijana Miljić
Relja Ivanić


Svaka cast!
Projekat i izvedba za 10!
strava! zamisli probudiš se i prvo što ugledaš je ne sunce, plavo nebo, život na ulici ili cvetanje drveta nego zid na metar i po od tebe i osetiš mirise klonje susednog objekta iz 50 malih prozora pa koliko vidim zid još u sivoj boji koju u srbiji obožavaju! na pinterestu imate bar 50 miliona rešenja za ovakve uzane parcele koje su japanci fantastično rešili! osnove katastrofa sklepane, naročito prizemlje, ne znam čemu ovaj minijaturni studio, garsonjerica šta li je? osim opeke koja je fantastična sve je živi očaj!
Pa et, okej 1-2 sprata, šarena cigla i biljaka što može šarenolisni bršljan. Okej je. Za ograničavajući zadatak, dosta fina izvedba.
Korektno, pismene fasade, zanimljiv odabir materijala iako, za moj ukus, malo prešarena fasadna opeka, ali to su nijanse. Tuš kabinu u ćošku u većini kupatila teško da možemo nazvati komforom, kao i stan u prizemlju ka ulici.