Porodična kuća u Beogradu zaštićena od pogleda
U ulici Koste Vojinovića nikla je kuća koja svojim izgledom i arhitektonskim oblikovanjem privlači poglede prolaznika… od kojih je prilično dobro sakrivena.
Na veoma maloj parceli (332 metara kvadratnih), između dva postojeća devastirana i prilično naglašena objekta, trebalo je podići novu kuću. Zato je MITarh studio, na čelu s arhitektom Branislavom Mitrovićem, imao zadatak da novom arhitektonskom formom ne donese novi prostorni konflikt.

Izbor arhitektonike, teksture i forme novog objekta morao je da bude prilog dematerijalizaciji artefakta.
– kaže arhitekta Branislav Mitrović, iz MITarh studija.
Kuća je projektovana 2010. godine, završena dve godine kasnije. Autori objekta su pored Branislava Mitrovića i Jelena Kuzmanović, dok je glavni projektant bio Siniša Tatalović.
Kuća je potpuno ušuškana u drvenu fasadu.
Potrošena zelena površina parcele (pokrivena objektom) nadoknađuje se na petoj fasadi objekta koja obezbeđuje korisnicima novu baštu: zaštićenu od pogleda ulice i eksponiranu do nivoa novog kvaliteta vizure.
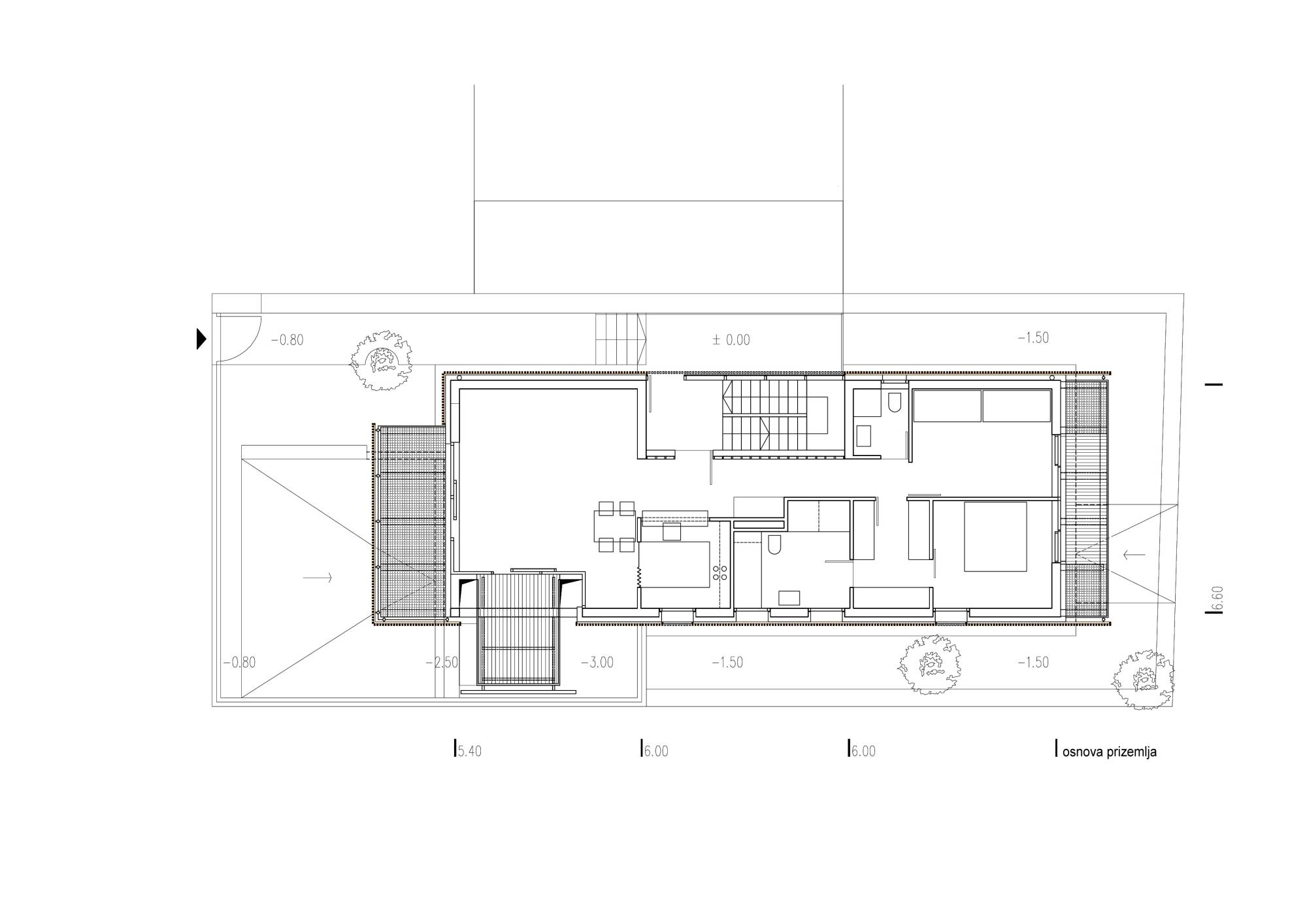
Osnove i preseci
Fotografije: Relja Ivanić
Pogledajte i projekat upravne zgrade hidroelektrane na Drini, takođe delo Branislava Mitrovića.
















