Solarna vinarija s prijatnom klimom zahvaljujući krovnoj izolaciji od plute
Osim što sunčevu energiju koriste za zrenje grožđa, ova španska vinarija ga koristi i kako bi njeni objekti funkcionisali na održiv način.
Lokalna arhitektonska firma Munarq Arquitectes projektovala je vinariju Son Juliana, smeštenu na ostrvu Majorka. Osim što potpunu električnu energiju dobija od sunčeve energije, montažna betonska konstrukcija izgrađena je za samo petnaest dana i to korišćenjem prirodnih lokalnih materijala.
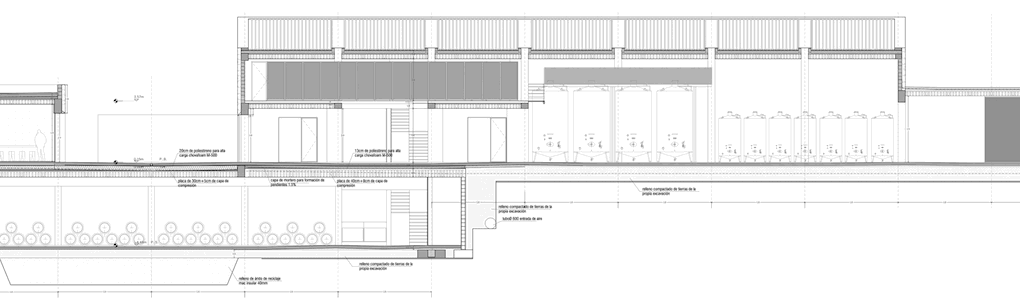
Ulaz zrelog grožđa iz vinograda obavlja se na istočnom delu objekta, odakle prolazi kroz nekoliko pocesa obrade, dok ne dođe do prostorije za flaširanje i konačno stiže do zapadnog dela objekta u kom je smeštena prostorija za testiranje vina.
Projekat površine 1.300 kvadratnih metara može proizvesti 40.000 litara vina godišnje, piše Inhabitat.
Prefabrikovana betonska konstrukcija objekta obložena je lokalnim kamenom marisom, dok su u enterijeru korišćeni i blokovi.
Objekat se hladi preko pasivne ventilacije, a zahvaljujući betonskim i kamenim zidovima, kao i krovnoj izolaciji od plute zadržava prijatnu temperaturu u unutrašnjosti.
Crteži
Foto: Munarq Arquitectes










