Svaki stan ima svoju baštu: Primer kolektivnog stanovanja na koji bi mogli da se ugledamo
Natkrivene garaže, prirodno osvetljena stepeništa, dvostruka orijentacija stanova: Ove jednostavne stambene zgrade vraćaju nas na osnovne principe projektovanja.
U francuskom Tuluzu, u oblasti Saint Martin du Touch, realizovan je projekat kolektivnog stanovanja, sa 78 stambenih jedinica raspoređenih u 20 vila okruženih vrtovima.
Arhitekte firme Taillandier Architectes Associes smestile su kompleks zvani Source de Lilhac u bujno zeleno okruženje na obali reke Tuš, a u blizini bitnih gradskih saobraćajnica.
Srodni članci na portalu Gradnja:

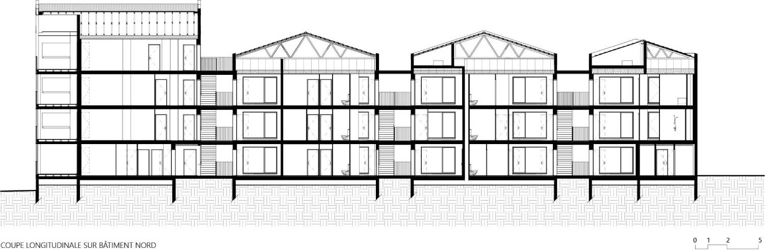
Svi objekti se maksimalno uzdižu do tri nivoa iznad prizemlja, a svi stanovi su dvostruko orijentisani.
Čak i pored značajne urbanističke intervencije, lokacija i dalje nosi osobine koje je vezuju za njenu vinogradarsku i poljoprivrednu prošlost, te se blago spušta do reke i čini prelepu pozadinu za svoje neposredno okruženje.
Kompleks je realizovan kroz tri bloka, gde je svaki od njih malo drugačije veličine, ali istih dizajnerskih kvaliteta.
Svi objekti se maksimalno uzdižu do tri nivoa iznad prizemlja, a svi stanovi su dvostruko orijentisani, pišu arhitekte za Architizer.

Organizacija blokova oko dvorišta
Svi stanovi koji su na poslednjem spratu su okrenuti ka reci i imaju terase duple spratne visine.
Blokovi su organizovani su oko dvorišta, koje konceptom reinterpretira dvorište „tulužana“, koje okuplja sve sadržaje i pristupe stepeništima, glavnom holu, parkingu i prikupljanju smeća.

Svakom od stanova se pristupa preko otvorenih steneništa, koja su tokom dana preplavljena prirodnim svetlom.
Blokovi su organizovani upravno na glavnu ulicu, poput tradicionalnih poljoprivrednih kuća, što je omogućilo i dvostranu orijentaciju stanova, u pravcu istok-zapad.
Svakom od stanova se pristupa preko otvorenih steneništa, koja su tokom dana preplavljena prirodnim svetlom, a svojim gabaritom dele izgrađene zapremine na manje blokove.
Prostori stepeništa su na ovaj način i prolazi između dvorišta i zajedničkih vrtova.

Svaki apartman ima privatnu baštu sa povrćem
Između svakog bloka nalaze se i prostrane bašte koje se šire ka obali reke, dok su zone oko stanova na prizemlju posebno uređene kako bi se obezbedila potrebna privatnost.
Svaki apartman ima i privatnu baštu sa povrćem, kojima se može pristupiti ili iz zajedničkih vrtova između svakog bloka ili iz zajedničkih bašti duž obale.
Osim pukog ukazivanja na poljoprivrednu prošlost projekta, bašte na parceli stvaraju i osećaj zajedništva, a namerno su locirane u blizini drugih javnih površina na kojima se može provoditi slobodno vreme, poput igrališta i staza za šetanje uz reku.

Jednostavnost fasada
Sve fasade projektovane su po istom, jednostavnom principu, gde dvorišne fasade imaju metalnu završnu oblogu, a spojašnje fasade su završene belim malterom.
Svetlosive obloge korišćene su na spoljašnjim stranama lođe, a ista obloga, samo perforirana, korišćena je za izradu ograda za lođe.

Svaki objekat definiše beli betonski okvir koji naglašava zapreminu konstrukcije sa dvovodnim krovom.
Svaki objekat definiše beli betonski okvir koji naglašava zapreminu konstrukcije sa dvovodnim krovom.
Iza ovog okvira nastavlja se krov od crepa, te takva celokupna estetika predstavlja reinterpretaciju tradicionalnog tulužanskog poljoprivrednog arhetipa, što je posebno prikladno za ovaj lokalitet, koji još uvek nosi tragove svoje poljoprivredne prošlosti.

Dva tipa gradskih kuća sa četiri spavaće sobe kreiraju poseban ritam fasade, a u unutrašnjosti su dvostrano orijentisane sa terasom okrenutom ka jugu.
Unutrašnjost je organizovana na način da prostorija namenjena za kućnu kancelariju može da se pretvori u petu spavaću sobu.

Grafički prilozi
Foto-galerija


















Faktografija
Source de Lilhac
Tuluz, Francuska
2021.



Bezveze im je kvart, previse praznog prostora za decu i previse zelenila. To bi nase gradske vlasi i preduzimaci (sprega) popunili soliterima za godinu dana
Bah, letargični evropljani. Fali im preduzetničkog duha.