Zemunska novogradnja: Preko puta Gardoša planirana zgrada sa 13 stanova
Na javnom uvidu našao se objekat površine od 1.732 kvadrata sa 17 parking mesta smeštenih u dve garaže u podrumu.
Grad Beograd oglasio je javnu prezentaciju urbanističkog projekta za izgradnju stambeno-poslovnog objekta spratnosti Po+P+2+Ps, koji investitor Juligo 1205 iz Nove Pazove planira na adresi Cara Dušana 45 u Zemunu, odnosno preko puta Gardoša.
Nosilac izrade predmetnog urbanističkog projekta je preduzeće Dalmak iz Beograda, kao odgovorni urbanista potpisana je Aleksandra Stanojević, dia, a kao odgovorni projektant idejnog rešenja Zorica Đorđević, dia.
Pročitajte još na Gradnja.rs:

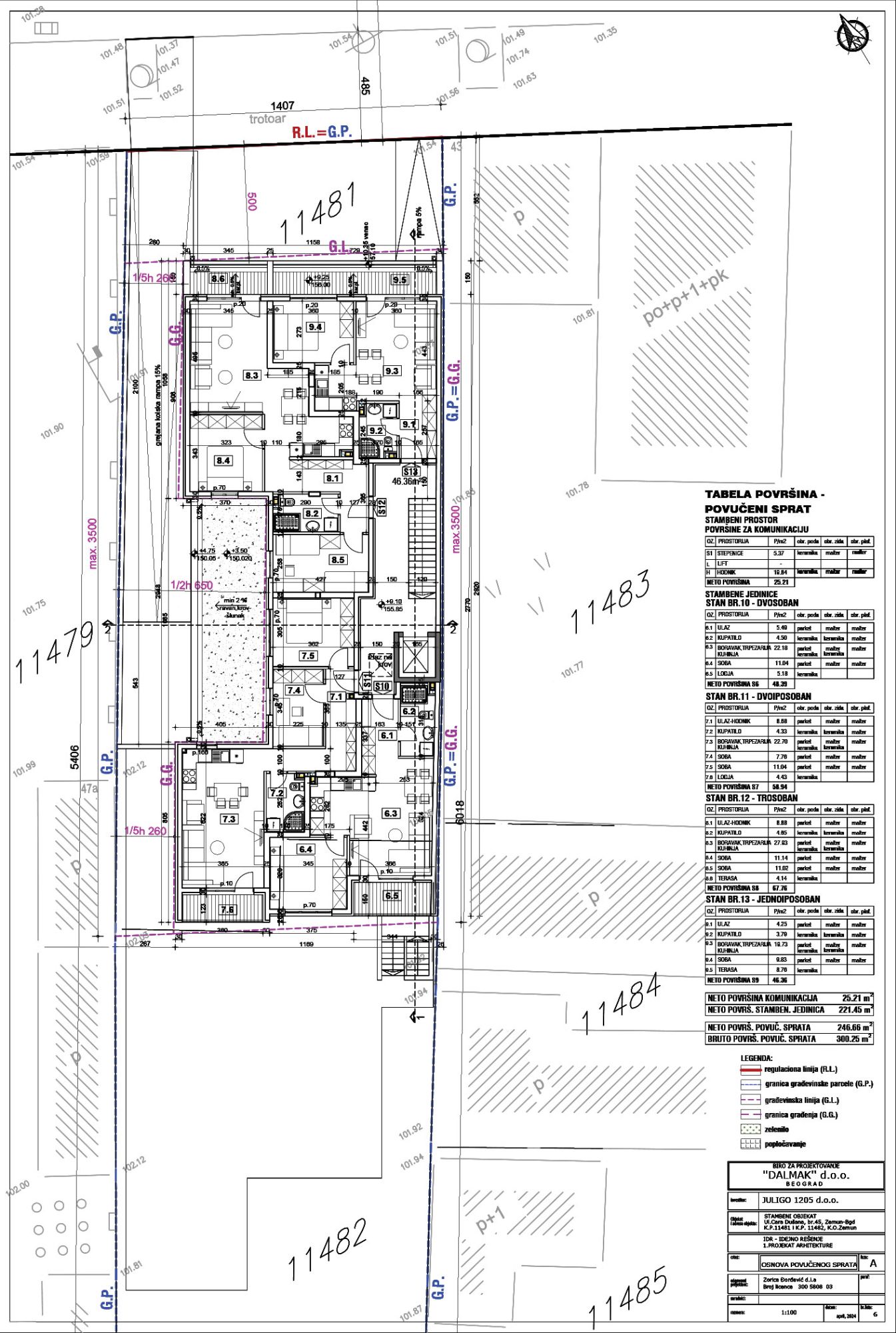
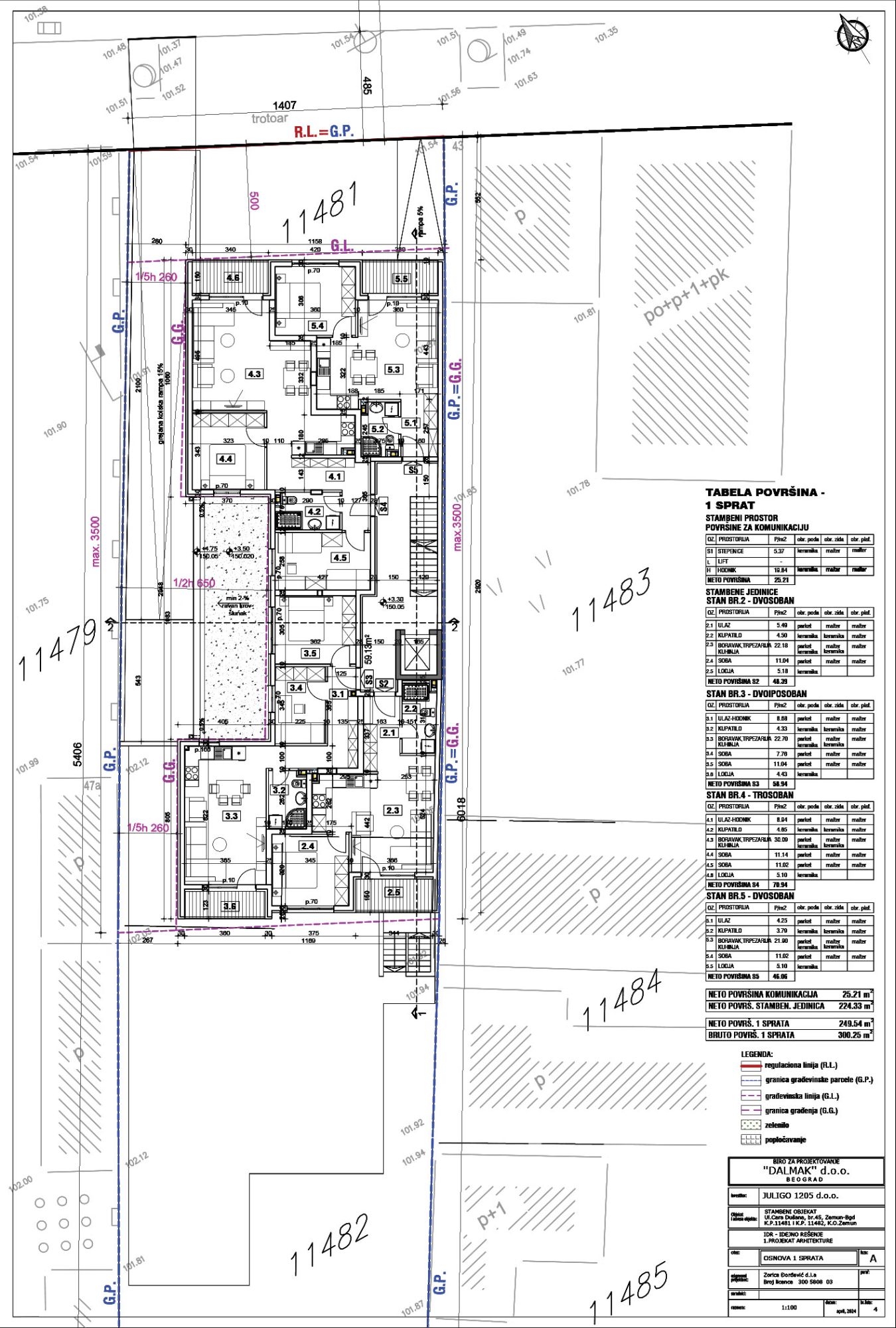
Projektovano 13 stanova
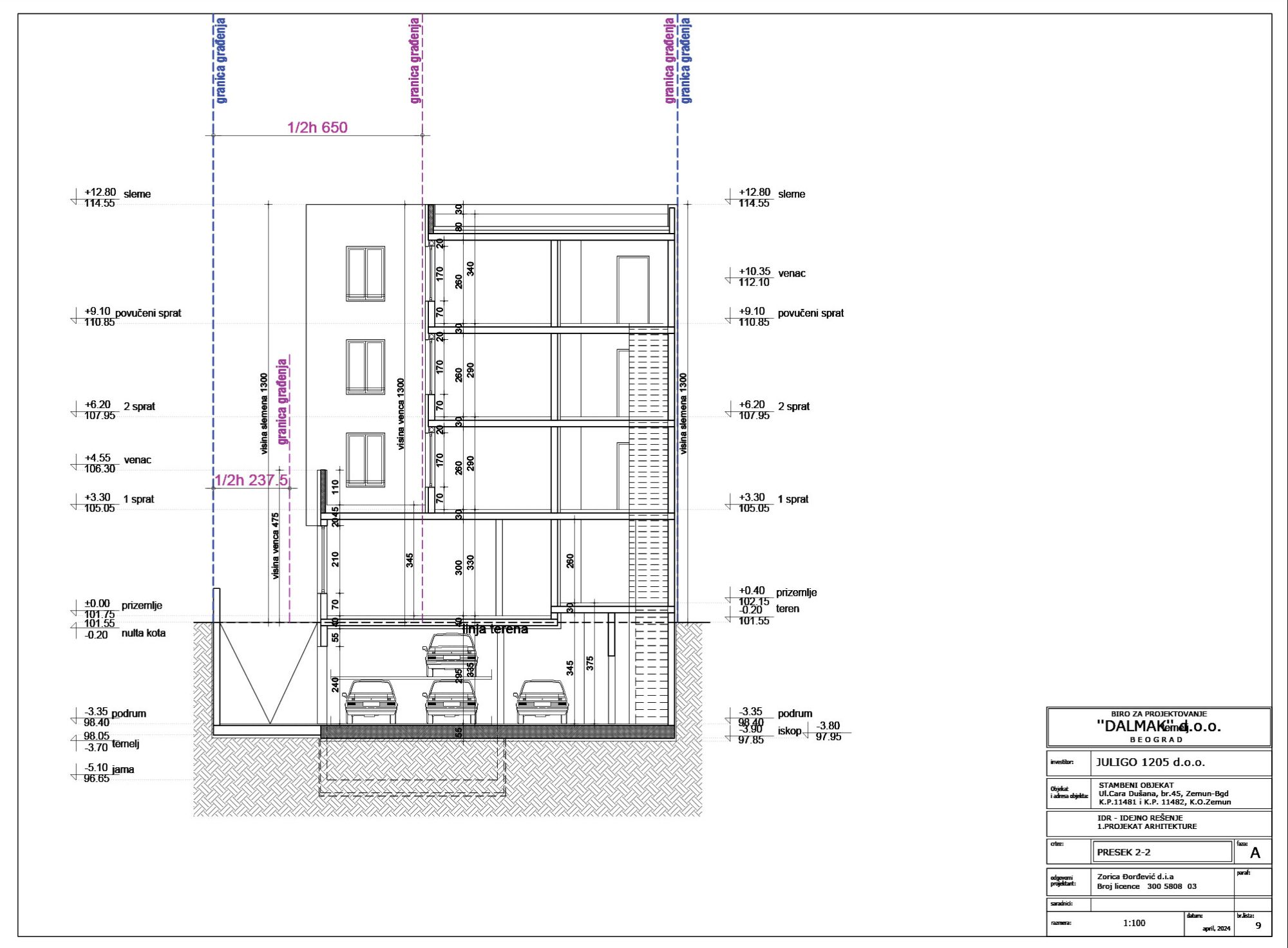
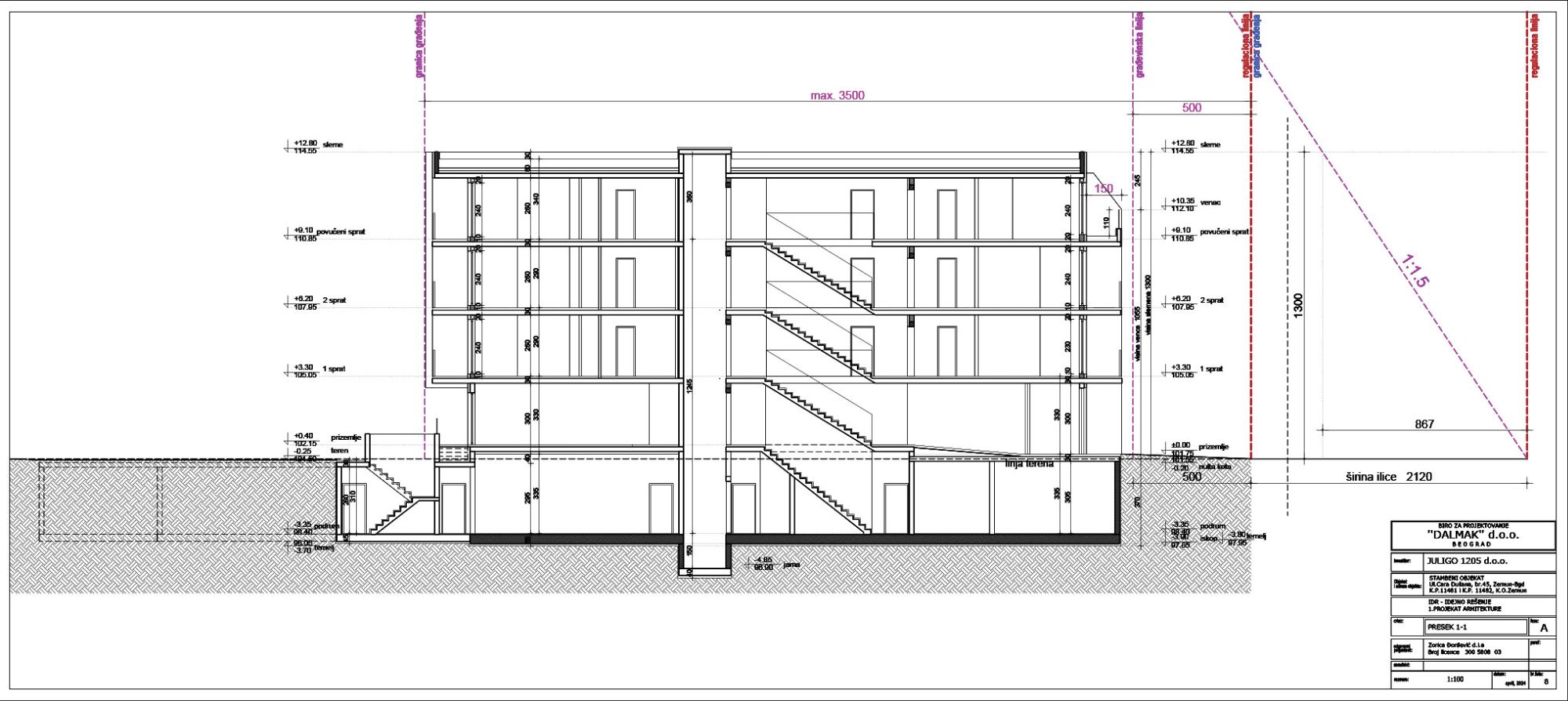
Granicom UP-a obuhvaćena je parcela ukupne površina iznosi 855 m². Na predmetnoj građevinskoj parceli projektovan je jedan stambeno-poslovni objekat, po položaju jednostrano uzidan, ostvarene spratnosti Po+P+2+Ps.
U okviru objekta projektovano je 13 stanova, jedan poslovni prostor i dve garaže sa ukupno 17 parking mesta.
Ostvareni indeks zauzetosti je 39,37%, dok ostvareni procenat zelenih površina u direktnom kontaktu sa tlom iznosi 23,29%.

Jedan stan i poslovni prostor smešteni su u prizemlju, dok su na prvom, drugom i povučenom spratu projektovana po 4 stana.
Kolski i pešački pristup obezbeđen je direktno sa ulice Cara Dušana, dok je parkiranje rešeno u okviru dve garaže u podrumu planiranog objekta.
U garaži 1 smešteno je 11 PM, a u drugoj garaži 6 PM, od čega je 1 PM namenjeno za osobe sa invaliditetom. Jedna prostorija u podrumu predviđena je kao ostava za bicikle.
Od ukupno projektovanih 13 stanova, jedan stan smešten je u prizemlju, dok su na prvom, drugom i povučenom spratu projektovana po 4 stana. Poslovni prostor predviđen je u prizemlju.
Po SRPS-u, bruto površina objekta iznosi 517 m² podzemno i 1.215 m² nadzemno, čime dolazimo do ukupne bruto površine od 1.732 kvadratna metra.

Na javnom uvidu do 14. januara
Kao i uvek, podsećamo da zainteresovani mogu tokom javne prezentacije da izvrše uvid u urbanistički projekat, kao i da svoje primedbe i sugestije na planirana rešenja u pisanoj formi dostave na pisarnicu Sekretarijata za urbanizam i građevinske poslove, Kraljice Marije br. 1, najkasnije do 14. januara 2025. godine.
Grafički prilozi









