U Slavonskoj ulici u Zemunu planirana zgrada sa 12 stanova
Na javnom uvidu našao se objekat od 1.664 kvadrata sa podzemnom garažom u koji investira beogradska firma Paladin 011.
Novi stambeno-poslovni objekat, spratnosti Po+P+3+Pk, mogao bi uskoro da nikne u Slavonskoj ulici u Zemunu, a urbanistički projekat za njegovu izgradnju nalazi se na javnom uvidu do 18. jula.
Nosilac izrade urbanističkog projekta je beogradsko preduzeće Dalmak, kao odgovorni projektant idejnog rešenja potpisana je Zorica Đorđević, dia, dok je investitor firma Paladin 011, takođe iz Beograda.
Pročitajte još na Gradnja.rs:

Parcela od 448 kvadrata
Katastarska parcela 11236 smeštena je u KO Zemun i ima površinu od 448 m².
Parcela je približno pravougaonog oblika, ima orijentaciju severozapad-jugoistok, a teren je ravan.
Na parceli po Listu nepokretnosti postoji izgrađen objekat površine od 142 m².
Kolski i pešački pristup je iz ulice Slavonske, sa severozapadne strane.

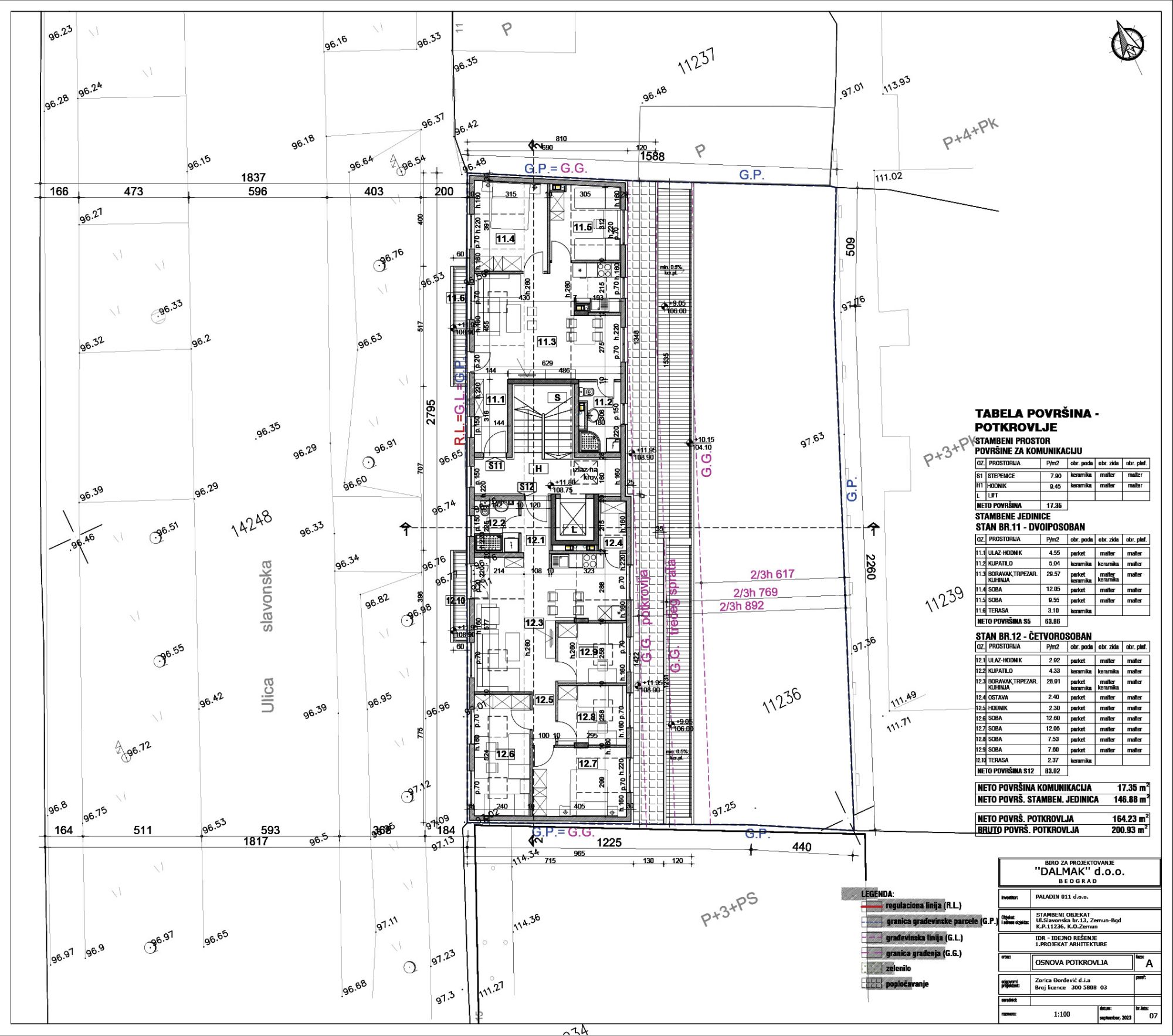
Dva poslovna prostora i 12 stanova
Na parceli se projektuje objekat koji je po nameni stambeno-poslovni, po tipu dvostrano uzidan, spratnosti Po+P+3+Pk.
Ukupna bruto površina objekta iznosi 1.664 m², od čega na nadzemni deo otpada 1.284 m², a na podzemni preostalih 380 metara kvadratnih.
Dva poslovna prostora projektovana su u prizemlju, dok je stambeni prostor predviđen od prvog sprata do potkrovlja, sa ukupno 12 stanova.

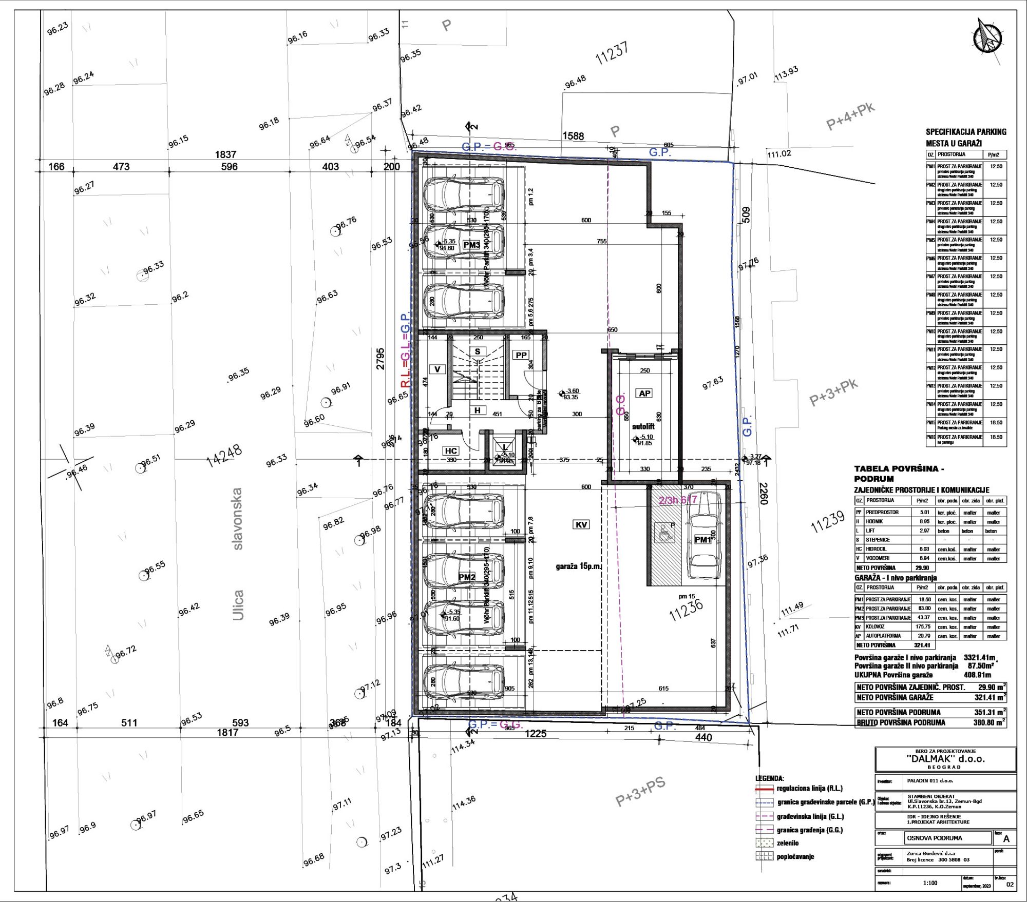
Auto-platformom pristupa se podrumu u kom je smeštena garaža sa 15 parking mesta.
Kolski pristup objektu predviđen je sa severozapadne strane, odnosno pristup sa javne saobraćajne površine – Slavonske ulice.
Kroz pasaž se kolima pristup dvorištu u kom se nalazi jedno parking mesto i auto-platforma kojom se pristupa podrumu, gde je smeštena garaža sa 15 parking mesta.
Predviđeno je parkiranje u dva nivoa parking sistemom Wohr Parklift 340 (ukupno 14 parking mesta) i jedno parking mesto za invalide.
U dvorištu je predviđen parking za bicikle kapaciteta 5 bicikala, kao i jedan kontejner za smeće.
Grafički prilozi












Do kad će ovakvi projekti dobijati saglasnosti, dozvole i sl? Neko tu treba da kaže – nisu ispoštovani osnovni principi projektovanja, popravite ovo pa dođite ponovo. Navešću samo neke od mnogo: jedno kupatilo u stanu sa ČETIRI spacaće sobe, ulaz u kupatilo iz trpezarije, fasada….šta tu reći?!? Možda bi ovakvi tekstovi mogli imati i neki kritički osvrt, pa tako i dovedu do kakvog takvog pozitivnog pomaka u ovoj našoj napaćenoj arhitekturi.