Zgrade zamenjuju kuće u Vojvode Petka na Vračaru: Planiran novi objekat sa 11 stanova
Novogradnja od 2.479 bruto kvadrata imaće i 18 mesta za parkiranje na tri podzemne etaže kao i jedan poslovni prostor u prizemlju.
Na broju 5 u uskoj jednosmernoj ulici Vojvode Petka na Vračaru uskoro bi mogao da nikne stambeno-poslovni objekat spratnosti 3Po+P+5+Ps, za čiju izgradnju je izrađen urbanistički projekat koji se do 5. jula nalazi na javnom uvidu na sajtu Grada Breograda.
Investitor je preduzeće „Knjiga komerc”, sa sedištem na navedenoj adresi, nosilac izrade UP-a je „Studio Linus” iz Beograda, odgovorni projektant arhitekture je Goranka Trivanović, dia, dok je kao autor objekta potpisana Aleksandra Keković Mladenović, dia.
Pročitajte još na Gradnja.rs:

Rušenje postojećeg objekta
Ovaj monovolumenski stambeno-poslovni objekat, spratnosti Po-3+Po-2+Po-1+Pr+5+Ps, planiran je na parceli od 349 metara kvadratnih, a svi postojeći objekti na njoj predviđeni su za rušenje.
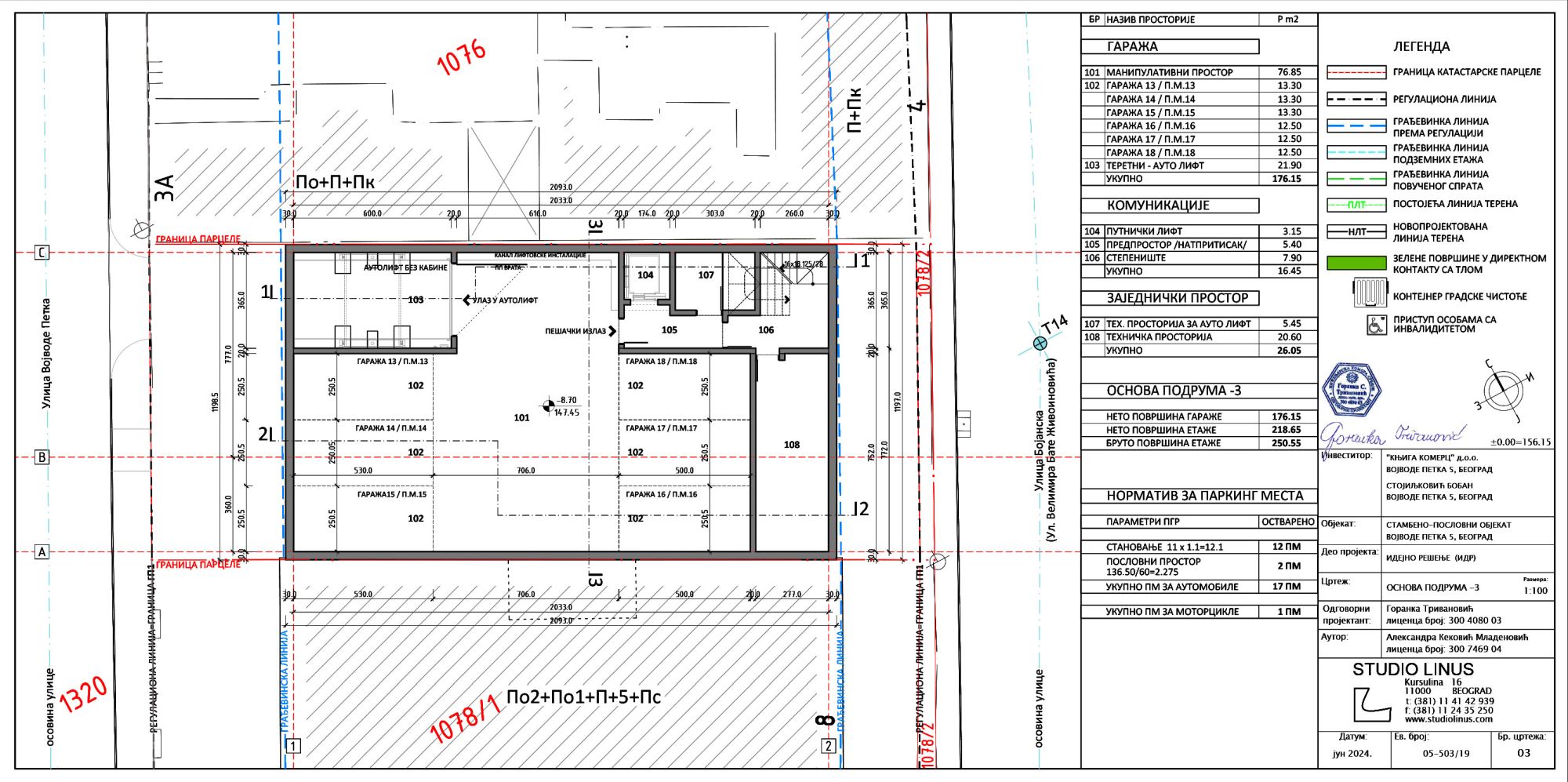
Lokacija je sa severozapadne strane definisana ulicom Vojvode Petka, odnosno KP 1720, sa jugoistočne strane planiranom saobraćajnicom Velimira Bate Živojinovića, sa severoistočne strane KP 1076 i sa jugozapadne strane KP 1078/1 na Vračaru.

Projektovano 11 stambenih jedinica
Funkciji stanovanja su namenjene sve etaže osim dela objekta koji je namenjen poslovanju u prizemlju i garaža koja se nalazi od podrumske etaže -3.
U okviru etaža podruma -3, -2 i podruma -1 smešteni su parking prostori, tehničke prostorije, prostorije sa vertikalnim komunikacijama i stanarske ostave namenjene rezidencijalnim korisnicima.
Ukupno je projektovano 11 stambenih jedinica, jedan poslovni prostor u prizemlju i 18 (17+1) parking mesta na tri podzemne etaže. Objekat je predviđen za 40 korisnika.
Na prvom spratu projektovana su 2 trosobna stana, na tipskim etažama od drugog do petog sprata po dva takođe trosobna stana, dok je na nivou povučenog sprata projektovan jedan petosoban stan.

Ukupna neto površina objekta je 2.023 m², neto površina poslovnog prostora 137 m², dok neto površina stanova iznosi 1.142 m².
Predviđena je niska živa ograda prema ulici Velimira Bate Živojinovića (ranije Bojanska), a prema ulici Vojvode Petka su predviđeni niski betonski stubići visine, u skladu sa parternim uređenjem.
Ukupna BRGP nadzemno iznosi 1.727 m², a ukupna bruto izgrađena površina 2.479 m². Ukupna neto površina objekta je 2.023 m², neto površina poslovnog prostora 137 m², dok neto površina stanova iznosi 1.142 m².













Razocaravajuc projekat