Zavod za gluve i nagluve u Ljubljani ušuškan u opeku i drvenu konstrukciju
Stari objekat zasijao je u novom sjaju sa školskim prostorijama koje su svetle, pune topline i napravljene od prirodnih materijala.
Deo kompleksa Zavoda za gluve i nagluve (ZGNL) u Ljubljani renoviran je 2019. godine, a iza njegovog sadašnjeg izgleda stoje Ana Merklin, Uroš Rustja, Martina Tepina i Maruša Zorec iz biroa ARREA Arhitektura.
Kako za naš portal navode autori, renoviranje kompleksa proizašlo je iz potrebe da se za školu i vrtić ove ustanove obezbede nove učionice i igraonice.
Pročitajte još na Gradnja.rs:
- Ovako će nakon renoviranja izgledati Pilotska akademija u Vršcu
- Osnovna škola u Belegišu inspirisana uticajem Dunava

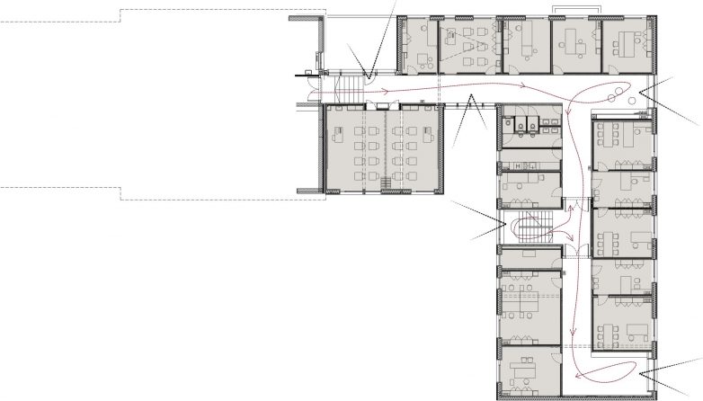
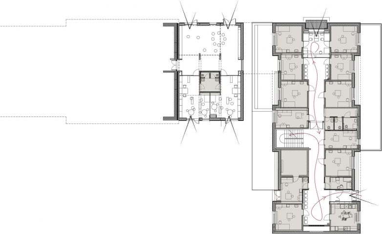
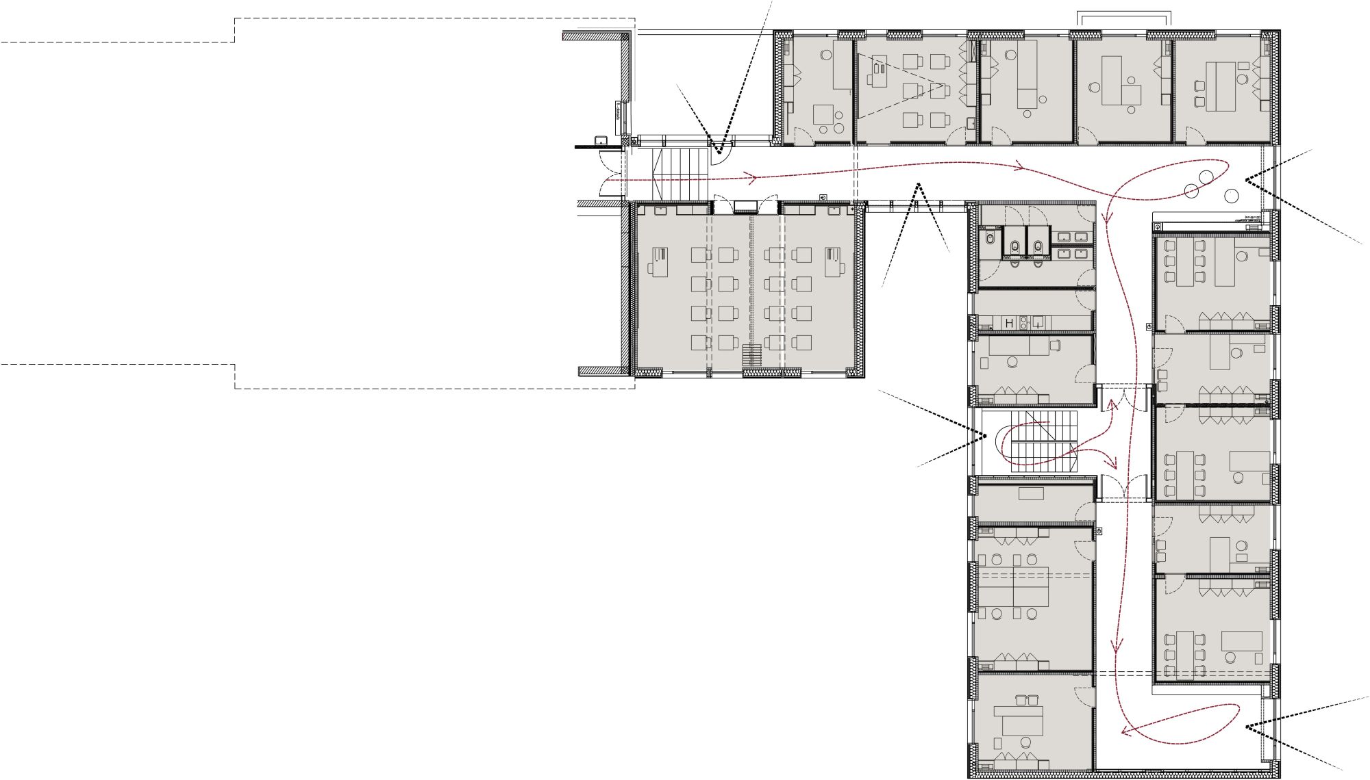
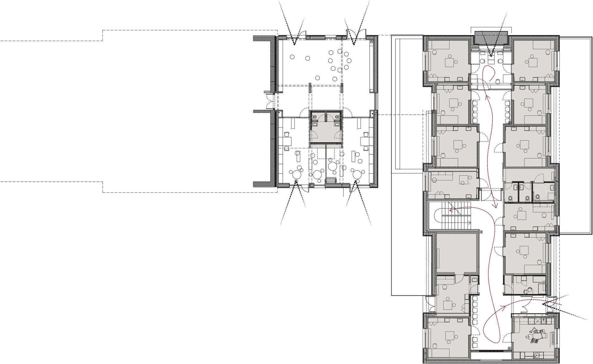
Jasna programska čitljivost
Nova intervencija sprovedena je kao dogradnja i proširenje postojećih traktova, sa idejom da učionice budu smeštene što bliže centralnom holu.
Arhitektonski projekat prati logiku grananja postojećeg kompleksa ZGNL, čime se održava njegova jasna programska čitljivost.
Spoljna fasadna obloga od opeke postavlja objekat u postojeći urbanistički kontekst.

Spoljna fasadna obloga od sečene cigle postavlja objekat u postojeći urbanistički kontekst.
Nove intervencije su izvedene od čvrste drvene konstrukcije (KLH), koja omogućava statičku stabilnost objekta nakon renoviranja.
Vidljiva drvena konstrukcija, drvena stolarija i podovi stvaraju prirodan ambijent enterijera. Spoljna fasadna obloga od sečene cigle postavlja objekat u postojeći urbanistički kontekst.
„Sa drvenom arhitekturom, gde vas svetlost vodi kroz prostor, želeli smo da stvorimo okruženje prilagođeno deci i vaspitačima, gde će svako moći da razvije svoje posebne talente što je više moguće“, napominju autori.
Kako dodaju, važno je bilo da školske prostorije budu svetle, pune topline, sagrađene od prirodnih materijala i neutralne, da u njima zažive deca, vaspitači i dečji crteži, svako pojedinačno i svi zajedno u svojoj različitosti.

Prvi korak do potpunog renoviranja
Kako saznajemo, nove prostorije ZGNL-a su prvi korak na putu potpunog renoviranja školskog kompleksa.
Autori žele da zajednički lobi postane centar predškolskog i školskog programa kako bi prostori bili svetli, a staze čiste.
Zbog toga su upravu i sanitet najpre preselili u nove i renovirane prostorije na istočnoj ivici celine i dogradili nedostajuće učionice i igraonice.
U sledećoj fazi na redu su učionice za osnovce a potom i zajednički prostori cele škole.

Grafički prilozi
Foto-galerija
Faktografija
- naziv objekta: Zavod za gluhe in naglušne, Ljubljana, Slovenia
- autori: Ana Merklin, Uroš Rustja, Martina Tepina i Maruša Zorec
- arhitektonski biro: ARREA arhitecture
- klijenti: Ministarstvo obrazovanja, nauke i sporta, ZGNL, Eco Fund
- površina: 1.166 m²
- godina projektovanja: 2019.
- godina izgradnje: 2019.
- troškovi: 1,20 miliona evra
- fotografije: Tadej Bolta, arhiva ARREA













blaga je reč odvratno! kao da je ludnica a ne objekat za ljude bez ili oštećenog sluha, ponižavajuće…. muka mi je od kopiranja švedskog načina gradnje kako spolja tako i iznutra!
@miki
Mogli bi birati reči, prilikom komentarisanja, jel one vise govore o VAMA nego o onome što zelite komentarisati….
postavlja se pitanje VAMA? u kom svojstvu ste na ovim stranicama ? ako vam je dosadno twit.i insta su na drugoj strani gde možete da raspravljate sa ljudima o kulturi,politici, ovde je isključivo stvar inženjera i dobrih i loših projekata , veliki poz