U Kornelija Stankovića na Vračaru planirana trospratnica sa pet stanova
U objektu od 876 kvadrata projektovano je pet stambenih jedinica, kao i sedam parking mesta u podzemnoj garaži.
Grad Beograd oglasio je krajem prošle sedmice javnu prezentaciju urbanističkog projekta za izgradnju stambenog objekta spratnosti Po+P+2+PS, koji se planira na adresi Kornelija Stankovića br. 5 u opštini Vračar.
Nosilac izrade UP-a je preduzeće Markom project line, a kao odgovorni urbanista potpisana je Vesna Nikolić, dia. Autori idejnog rešena su Sanja Stanojević, mia (Markom project line), Vesna Nikolić, dia (Markom project line) i Marko Matejić, mia (MAIN architects). Investitor je fizičko lice iz Požarevca.
Pročitajte još na Gradnja.rs:

Parcela od 340 kvadrata
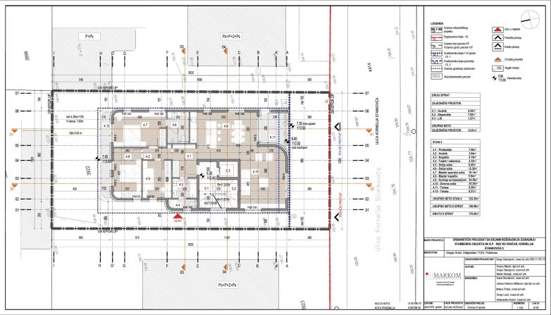
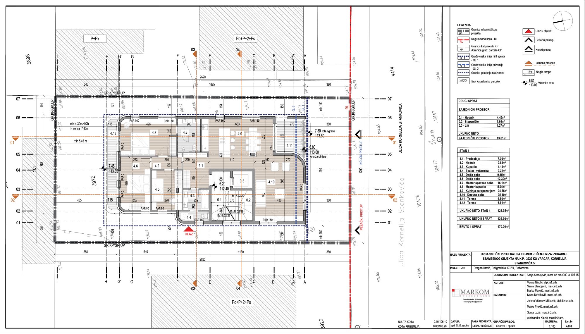
Urbanističkim projektom obuhvaćena je KP 3922 u KO Vračar, smeštena u bloku oivičenom ulicama: Lamartinova, Braničevska, Kornelija Stankovića i Đorđa Vajferta. U postojećem stanju, na parceli nema izgrađenih objekata.
Predmetna parcela, površine od 340 m², ima neposredan pristup Ulici Kornelija Stankovića i graniči se sa susednim katastarskim parcelama 3920 i 3923 u KO Vračar, na kojima su izgrađeni višeporodični stambeni objekti.

Projektovano pet stambenih jedinica
Predmet projekta je idejno rešenje višeporodičnog stambenog objekta, spratnosti Po+Pr+2+Ps. Ukupna BRGP objekta je 876 m², od čega je nadzemno 653 m², a podzemno preostala 223 metra kvadratna.
Objekat ima pet stambenih jedinica i sedam parking mesta koja su smeštena u podzemnoj garaži. Kolski i pešački pristupi parceli obezbeđeni su iz Ulice Kornelija Stankovića, navodi se u projektnoj dokumentaciji.

Na javnom uvidu do 2. juna
Zainteresovana lica mogu tokom javne prezentacije da izvrše uvid u urbanistički projekat, kao i da svoje primedbe i sugestije na planirana rešenja u pisanoj formi dostave na pisarnicu Sekretarijatu za urbanizam i građevinske poslove, Kraljice Marije br. 1, najkasnije do 2. juna 2025. godine.
Grafički prilozi












Dobar projekat.