Zgrada u Kralja Bodina: Reinterpretacija duha beogradske škole stambene arhitekture
U fokusu oblikovanja je čovekomerna razmera, hijerarhija elemenata i kontrast između crvene ručno rađene opeke i crnih kompozitnih panela.
Stambena zgrada u Ulici Kralja Bodina 12, na beogradskom Pašinom brdu, predstavlja još jednu u nizu od nekoliko realizacija biroa Atelje Vladislav Lalicki (AVL) u ovom delu grada, koji u poslednje dve decenije obeležava transformacija iz zone individualnog stanovanja u višeporodično stanovanje nižih i srednjih spratnosti.
Ta promena praćena je značajnim povećanjem zauzetosti, indeksa izgrađenosti, gustine stanovanja i drugih urbanističkih parametara, uz zadržavanje postojeće parcele (po pravilu skromnih dimenzija), bloka i uličnog profila.
Nažalost, novi građeni fond pored maksimalne iskorišćenosti parcele neretko obeležava i odsustvo ambicije za fizionomijom i karakterom, koji bi, u taj, nastajući ambijent, uneli nove vrednosti ili u njemu sačuvali neke od zatečenih.
Pročitajte još na Gradnja.rs:

Pronalaženje čovekomerne razmere
Tako se, kao i na drugim projektima studija AVL na ovoj lokaciji, u središtu pažnje sa aspekta oblikovanja našlo pronalaženje čovekomerne razmere i hijerarhije arhitektonskih elemenata, prave mere raščlanjivanja fasadnog fronta, taktilnih i likovnih kvaliteta dominantnog materijala (u ovom slučaju, crvena, ručno rađena opeka) i njegovog kontrasta sa sekundarnim (crni, glatki kompozitni paneli), odnosa punog i praznog.
Ukratko, svega onoga što stanarima jedne male stambene zgrade sa nekoliko stanova treba da pruži osećaj identiteta i personalnosti, a u susedstvu, bar u nekoj meri, očuva nekadašnji duh individualnosti i komunikativnosti kuća i prepoznatljivosti javnog prostora.
„U tom smislu, forma zgrade je ukorenjena u tradiciji beogradske škole višeporodične stambene arhitekture, o čijoj ranoj modernoj epohi i dalje postoje svedočanstva u širem okruženju, i čiji smo duh, u nekoj meri, ovde pokušali da reinterpretiramo,“ navode iz beogradskog biroa.

Forma zgrade ukorenjena je u tradiciji beogradske škole višeporodične stambene arhitekture.
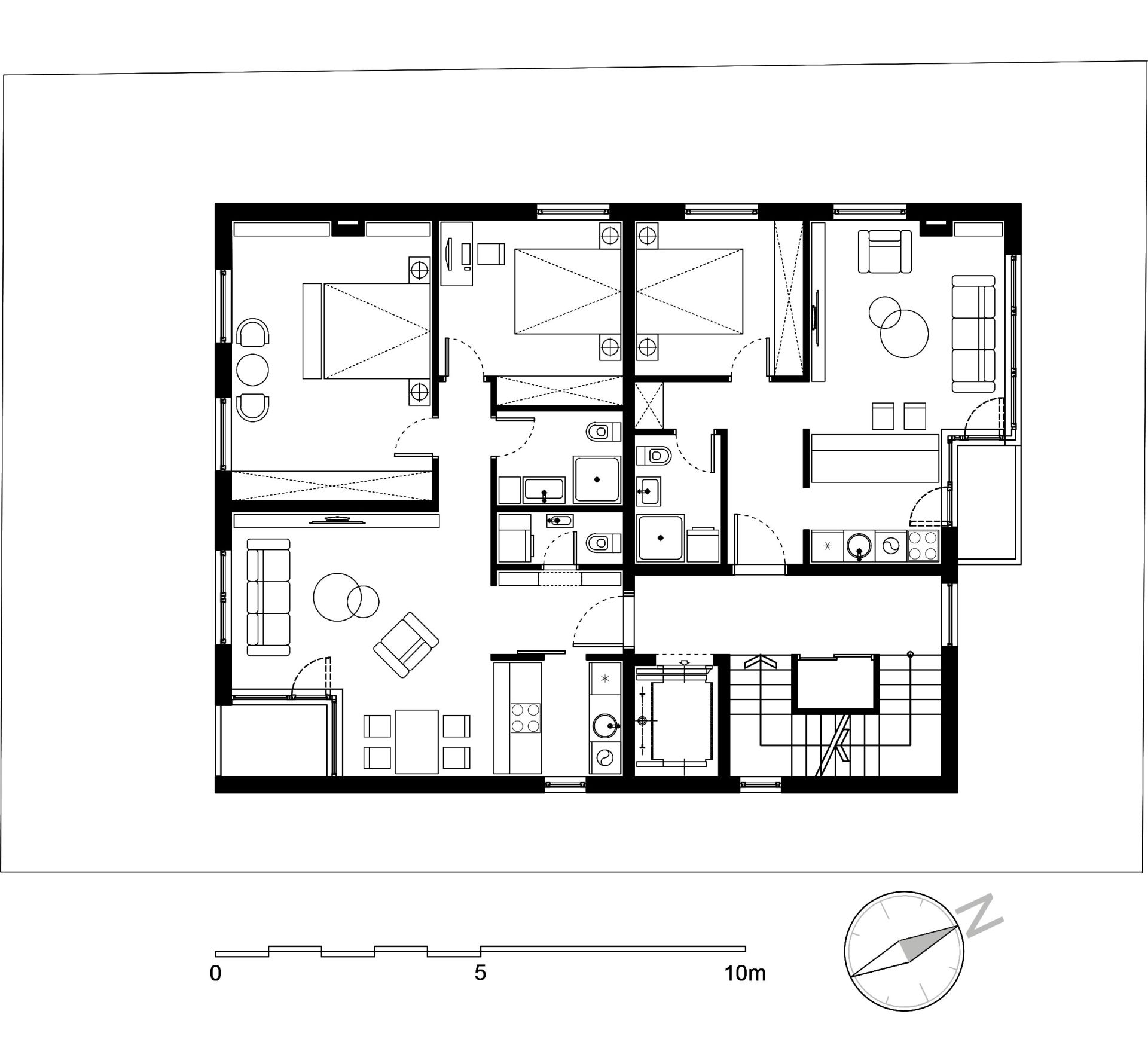
Objekat je po svojoj tipologiji slobodnostojeći. „Uslovljena oblikom parcele i urbanističkim propisima o udaljenosti od granica, dobijena je kompaktna pravougaona osnova, unutar koje je, projektnim zadatkom, predviđeno organizovanje po dva stana na etaži“ – kažu iz AVL.
Komunikaciono jezgro orijentisano je ka ulici (severno). Na spratovima, ka ulici je orijentisan jedan manji stan, dok je drugi, veći, orijentisan ka dvorištu (južno).
„Formiranje ulaza u zgradu impliciralo je nešto drugačiju organizaciju prizemlja, sa malim studio-stanom orijentisanim ka dvorištu, i većim stanom razvijene strukture, koji je podužno organizovan“, navode arhitekte.

Osvetljeno i provetreno
Dnevne zone svih stanova okrenute su ka ulici i zadnjem dvorištu, dok su ka bočnoj, zapadnoj strani, generalno orijentisane noćne zone stanova.
Stanovi se odlikuju veoma dobrom dnevnom osvetljenošću i provetrenošću, po pravilu dvostrano (preko otvora na frontalnoj i bočnoj fasadi). Kuća sadrži ukupno osam stanova.
U podzemnoj garaži, kojoj se prilazi preko kolske rampe duž zapadne granice parcele, obezbeđeno je propisno parkiranje putničkih vozila.

Termička izolacija sprovedena je strogo prema propisima, čime je dobijena energetski nezahtevna zgrada.
Konstrukcija objekta je armiranobetonska sa zidanim ispunama. Termička izolacija sprovedena je strogo prema propisima, čime je dobijena energetski nezahtevna zgrada.
Primenjeni su završni materijali i komponente visokog kvaliteta. „Infrastrutkurni i instalacioni sistemi realizovani su prema važećim standardima za ovu vrstu objekata, omogućavajući visoki komfor stanovanja“ – navode iz AVL.
Pomenimo na kraju da projekat kao autori potpisuju Vladislav Lalicki i Milena Stojković, dok je sa projektnim timom AVL sarađivao arhitektonski studio Lark Project d.o.o. iz Beograda.
Grafički prilozi
Faktografija
Stambena zgrada u Ulici Kralja Bodina br. 12
Voždovac, Beograd
A-D Kvadratlux sistem d.o.o., Beograd
2021.
2024.
960 m²
Atelje Vladislav Lalicki d.o.o. (u saradnji sa Lark Project d.o.o.)
Vladislav Lalicki, Milena Stojković
AVL




Lalicki ima dobre zgradice
Kao poslovna zgrada JKP Lisje.
Imam par pitanja, ako neko može da pojasni. Zar udaljavanje objekta od bočne ivice parcele ne treba da bude najmanje 2,5m ukoliko su na toj strani otvori tehničkih prostorija u pitanju, a 4m ukoliko su u pitanju sobe, dnevni boravak i trpezarija?
Takođe, ukoliko je rađena parcelacija, i ukoliko će se to zemljište, van građevinske parcele, pripojiti javnoj površini, zar ne bi trebalo da tu ne budu spoljna parking mesta?
Samo pitam, ukoliko neko iz struke moźe da mi odgovori.
Stanovi su krš, zaista ulaz na hodnik, svaka prostorija tesna, stepeniste i lift na istoku nema spavacih sa prirosnom orijentacijom jutarnjeg sunca, o zelenilu na parceli da ne pricamo. I naravno parking koji zauzima deo trotoara
Kakva crna beogradska skola stanovanja….Ko pise ove tekstove? Pa ljudi pogledajte samo osnove….
jezivo izgleda, neko se loše igrao arhitekturom! jadne ciglice, pardon opeke