Porodična vila u Zaklopači inspirisana narodnim graditeljstvom Šumadije
Ova kuća u Grockoj pozajmljuje elemente narodnog neimarstva i transponuje ih na nove stilove života i nove materijale.
Kuća za višečlanu porodicu, čiji projekat potpisuje Atelje Vladislav Lalicki (AVL), smeštena je na porodičnom imanju, na blagoj uzvisini u zatalasanom krajoliku sela Zaklopača u Grockoj, nadomak Beograda.
Iako nema neke tradicionalne elemente kao što su trem ili ognjište, u velikoj meri ova vila pripada grupi kuća projektovanih u šumadijskom stilu.
Pročitajte još na Gradnja.rs:
- Tradicionalna srpska kuća: Vol. 1 – Istoričari i teoretičari
- Tradicionalna srpska kuća: Vol. 2 – Projektanti

Igra svetla i senke
Prepoznatljiv izgled kući daju ugaoni zastakljeni portali. Njihovim postavljanjem na ključnim mestima su kubične mase objekta “olakšane”, dok su glavni pravci vizura dodatno naglašeni.
Plitki viševodni krov sa naglašenim strehama predstavlja jedan od glavnih oblikovnih motiva. On je ekspresivno prepušten sa prednje strane kuće. Rezultat ovog arhitektonskog gesta je igra svetla i senke.
Pozicioniranjem terasa je proširen dnevni boravak i omogućen neposredan kontakt zajedničkih sadržaja sa okruženjem.
Na oba nivoa nalaze se prostrane terase koje se otvaraju ka šumadijskom predelu. One predstavljaju produžetak dnevnog boravka koji pruža mogućnost neposredne veze zajedničkih sadržaja sa okruženjem.
Njihovim pozicioniranjem je proširen dnevni boravak i omogućen neposredan kontakt zajedničkih sadržaja sa okruženjem i širokim vizurama.

Dobro izolovana i energetski efikasna
Kompoziciju kuće čine jednostavne kubične forme u dinamičnom, ali uravnoteženom rasporedu.
U materijalizaciji dominira opeka, karakteristične “pikselizovane” teksture bez spojnica, kao i bojene malterisane površine.
Zahvaljujući primenjenim visokoselektivnim staklima, leti nije potrebno koristiti dodatnu zaštitu od sunčevog zračenja.
Primenjena bravarija i staklo-paketi na kući su izuzetno kvalitetni, što doprinosi veoma dobrom ponašanju objekta i u zimskom i u letnjem režimu korišćenja – dobroj izolovanosti i energetskoj efikasnosti.
„Zahvaljujući primenjenim visokoselektivnim staklima, leti nije potrebno koristiti dodatnu zaštitu od sunčevog zračenja“ – kaže za Gradnju arhitetka Vladislav Lalicki.

Naglašen centralni plan
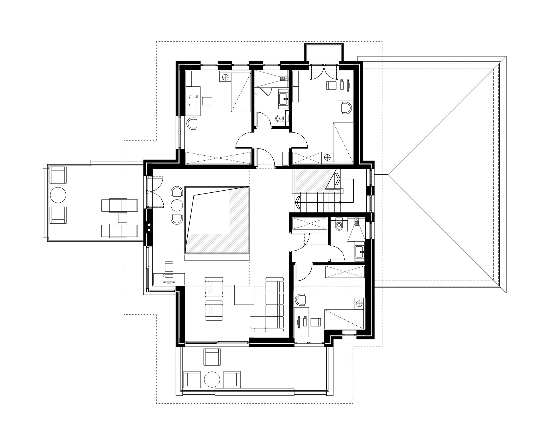
Po ugledu na orijentalne primere, porodična vila ima naglašen centralni plan. U njenom središtu se nalazi dvovisinski prostor oko koga se nižu različite grupe sadržaja.
Prizemlje je opredeljeno za prostran dnevni boravak, sa trpezarijom i kuhinjom rešenim u otvorenom planu. Osnova prizemlja je tako organizovana da se otvara u više pravaca istovremeno.

U prizemlju je smeštena i garaža za čak četiri automobila, kao i blok glavne spavaće sobe.
Garaža za čak četiri automobila je, takođe, našla svoje mesto u prizemlju, kao i blok glavne spavaće sobe, a koji se sastoji iz više prostorija grupisanih oko malog hodnika.
Na spratu su projektovane dečije sobe sa zajedničkim kupatilom i dodatnim prostorom zajednički boravak na galeriji. Pomoćne i tehničke prostorije se nalaze u podrumu, u koji se ulazi direktno iz garaže.
Grafički prilozi
Foto-galerija












Faktografija
Selo Zaklopača, Grocka
P+1
2018.
2019–2020.
580 m²
Atelje Vladislav Lalicki
Vladislav T. Lalicki (autor i odgovorni projektant), Jelena Milenković, Marijana Poljovka i Milena Stojković
Relja Ivanić





Koji elementi ovo cine „šumadijskim stilom uopste? Ovaj objekat poseduje vise karakteristika koje ga mogu svrstati blize Prerijskim kucama Frenka Lojda Rajta (ciste mase materijala – polja opeke, boje i stakla; siroko izbacene strehe, krov plitkog nagiba, istaknut dimnjak u opeci…), naravno u novijoj interpretaciji, skromnijoj osnovi i sa vise stakla.
Poredjenjem ovog objekta sa karakteristicnim primerima novih „šumadijskih kuća“ zaista se ne uocavaju slicnosti
u potpunosti se slažem, da ne mračim stalno muka mi je od krađe, svaka čast na komentaru, veliki pozdrav
Upravo tako, FLW – s kilometra, a Šumadija s milion km.
Pe eto komentatori su vec rekli.
Po meni kuca je sjajna i volim takvu arhitekturu ali vise mi lici na skandinavsku nego srpsku kucu.