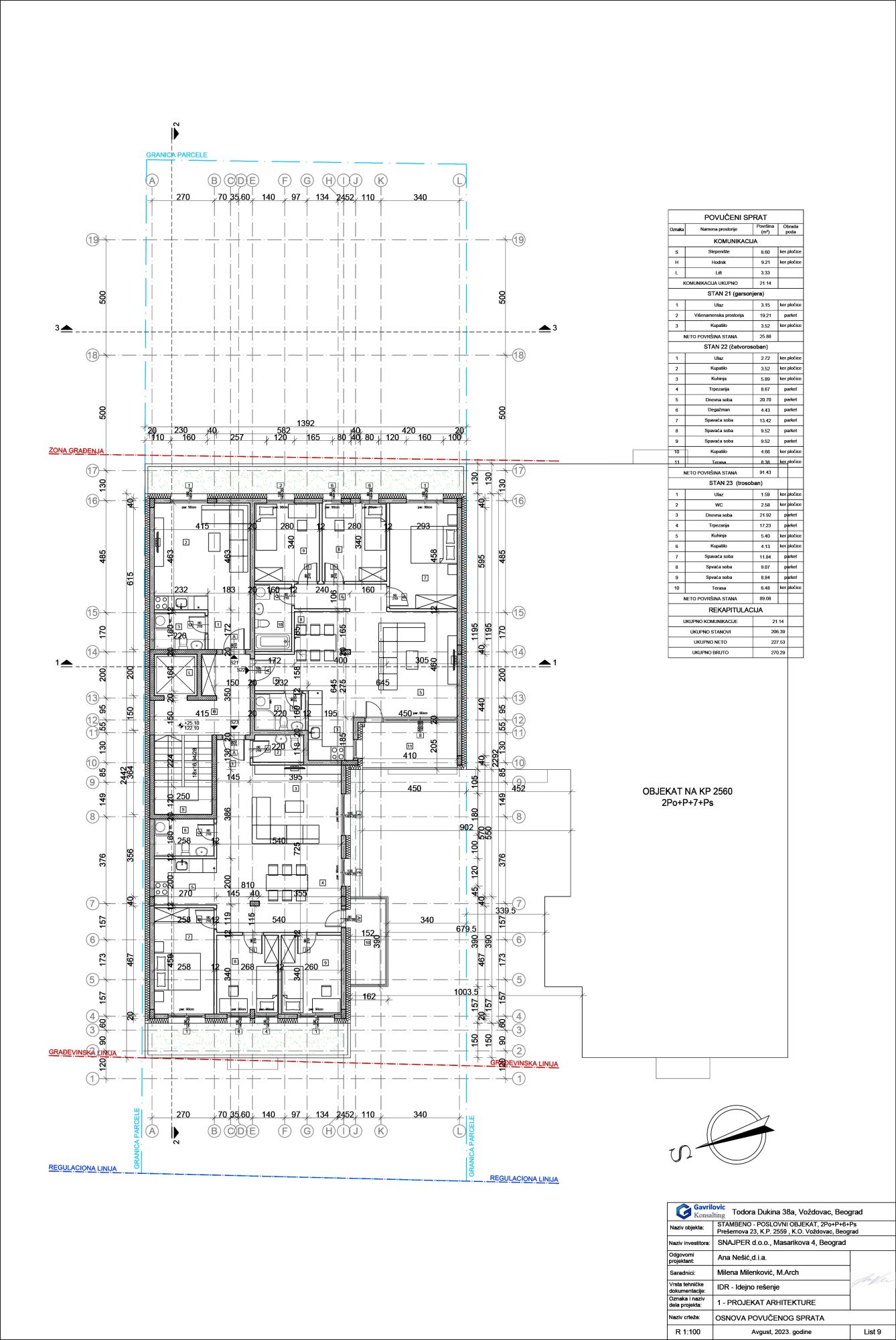
U Prešernovoj na Voždovcu u planu zgrada sa 23 stana i 12 poslovnih apartmana
Snajper d.o.o. iz Beograda planira izgradnju stambeno-poslovnog objekta sa lokalima u prizemlju i 30 parking meta smeštenih u dve podzemne etaže.
Beogradska opština Voždovac mogla bi uskoro da dobije novi stambeno-poslovni objekat u Ulici Prešernovoj br. 23, a za čiju izgradnju je izrađen urbanistički projekat koji se do 30. avgusta nalazi na javnom uvidu.
Investitor je beogradsko preduzeće Snajper d.o.o., nosilac izrade projekta, te ujedno autor arhitekture i projektant je firma Gavrilović Konsalting iz Beograda, dok je kao odgovorni projektant potpisana Ana Nešić, dia.
Pročitajte još na Gradnja.rs:
- Novogradnja ne posustaje: Na Voždovcu planiran kompleks od preko 38.000 kvadrata
- Stambeno-poslovni kompleks od preko 10.000 kvadrata planiran u Novom Sadu

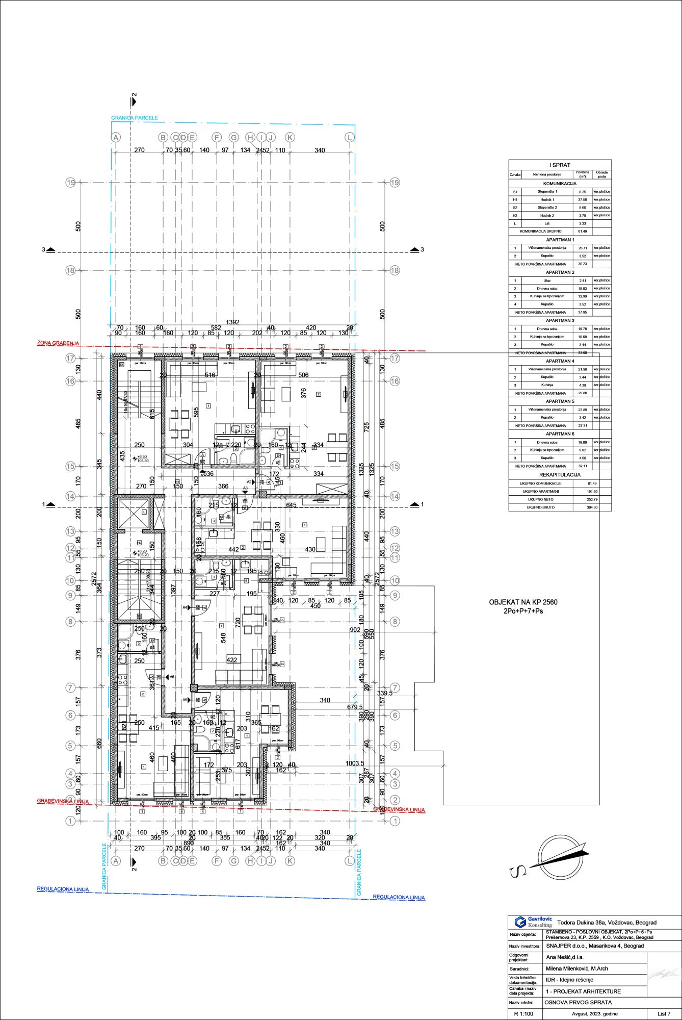
Ukupno 36 mesta za parkiranje
Novoplanirani stambeni objekat je po karakteru dvostrano uzidan, spratnosti 2Po+P+7+Ps, a građevinska parcela je površine 611 m2.
Ukupna bruto površina svih etaža po SRPS-u je 3.355 m², od čega na nadzeme etaža otpada 2.400 m², a na podzemne preostalih 955 m².
Prema projektu, objekat sadrži 23 stambene jedinice, 3 lokala, 12 poslovnih apartmana i ukupno 36 mesta za parkiranje.

Na prvom i drugom spratu projektovani su poslovni apartmani, a na spratovima od trećeg do povučenog 23 stambene jedinice.
Direktan pristup i ulaz u objekat mogući su sa saobraćajnice Prešernova, a potrebe za parkiranjem rešene su na slobodnom delu parcele i u dvoetažnoj podzemnoj garaži.
U prizemlju objekta sa galerijom projektovani su lokali, dok su na parceli obezbeđeni pešački i kolski pristupi objektu.
Na prvom i drugom spratu projektovani su poslovni apartmani, a na spratovima od trećeg do povučenog sprata projektovane su 23 stambene jedinice različitih struktura.

Zasebni ulazi u poslovni prostor
Objekat ima zaseban ulaz u podzemnu garažu auto-liftom i zasebne ulaze u stepenišne vertikale ka stanovima, kao i zasebne ulaze u poslovni prostor.
Ulaz u stambeni deo objekta formiran je sa bočne strane, dok je ulaz u poslovni deo objekta, odnosno poslovne apartmane na prvom spratu, formiran sa zadnje strane objekta.
U dve podzemne etaže smešteno je 30 parking mesta – 13 na etaži -1 i 17 na etaži -2, dok je na slobodom delu parcele, iza samog objekta, predviđen parking prostor za još šest vozila.







dal je moguće da se neko zove snajper hahahahah…. o bože
Verujem da nisam jedini koji se zapitao zbog kog kvaliteta je ovaj projekat prikazan?
Zato što je javni uvid u pitanju pa možete da reagujete ako vam se nešto ne sviđa.
Klasična grobnica-parižanka. Ne razumem čemu više ovakve zgrade kada izgledaju kao da nisu prošle pored arhitektonskih studija. O zelenoj površini više ne vredi trošiti reči.